Bildegalleri

Sentrum
Lys & trivelig selveier midt i byen! Garasje, heis & balkong mot syd/vest
Prisantydning3 290 000 kr
Nøkkelinfo
- Boligtype
- Leilighet
- Eieform
- Eier (Selveier)
- Soverom
- 1
- Internt bruksareal
- 69 m² (BRA-i)
- Bruksareal
- 74 m²
- Eksternt bruksareal
- 5 m² (BRA-e)
- Balkong/Terrasse
- 10 m² (TBA)
- Etasje
- 3
- Byggeår
- 2004
- Energimerking
- C - Lysegrønn
- Rom
- 2
- Tomteareal
- 1 786 m² (eiet)
Fasiliteter
Barnevennlig
Balkong/Terrasse
Garasje/P-plass
Kabel-TV
Heis
Offentlig vann/kloakk
Parkett
Utsikt
Vaktmester-/vektertjeneste
Sentralt
Moderne
Balansert ventilasjon
Om boligen
Velkommen til en attraktiv selveierleilighet midt i byen - med heis og garasjeplass! Her bor du sentralt med gangavstand til butikker, kollektivtransport, restauranter og øvrige servicetilbud, samtidig som du har en rolig og komfortabel base å komme hjem til.
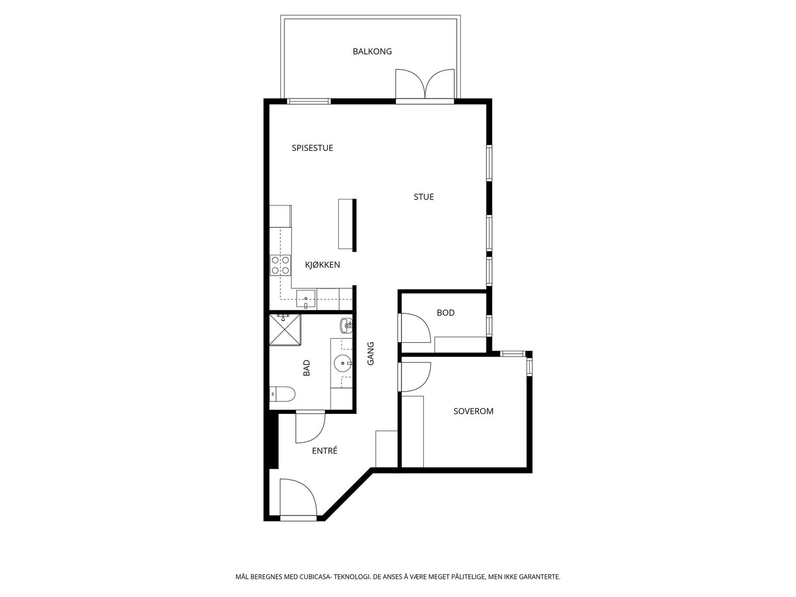
Leiligheten har en smart og arealeffektiv planløsning med lys stue, åpen kjøkkenløsning, romslig soverom, flislagt bad og entré med gode oppbevaringsmuligheter. Fra stuen er det utgang til balkong som gir et hyggelig uteområde - og godt med naturlig lys.
Heis i bygget gir enkel adkomst, og fast parkeringsplass i lukket garasjeanlegg er et stort pluss i sentrum. I tillegg disponeres bod for ekstra lagring.
En perfekt bolig for førstegangskjøper, par eller pendler som ønsker en lettstelt leilighet med sentral beliggenhet og praktiske fasiliteter.
Velkommen på visning! Ta gjerne kontakt for privatvisning - jeg jobber i nabokvartalet!
Leiligheten har en smart og arealeffektiv planløsning med lys stue, åpen kjøkkenløsning, romslig soverom, flislagt bad og entré med gode oppbevaringsmuligheter. Fra stuen er det utgang til balkong som gir et hyggelig uteområde - og godt med naturlig lys.
Heis i bygget gir enkel adkomst, og fast parkeringsplass i lukket garasjeanlegg er et stort pluss i sentrum. I tillegg disponeres bod for ekstra lagring.
En perfekt bolig for førstegangskjøper, par eller pendler som ønsker en lettstelt leilighet med sentral beliggenhet og praktiske fasiliteter.
Velkommen på visning! Ta gjerne kontakt for privatvisning - jeg jobber i nabokvartalet!
NB: Knappen for å vise hele beskrivelsen har kun en visuell effekt.
NB: Knappen for å vise hele beskrivelsen har kun en visuell effekt.
Salgsoppgaven beskriver vesentlig og lovpålagt informasjon om eiendommen
Se komplett salgsoppgaveNærområdet
Holmskau & Partners
Verdien av lokalkunnskap
Annonseinformasjon
| FINN-kode | 451755294 |
|---|---|
| Sist endret | 02. mars 2026 17:39 |
| Referanse | 194251002 |
Annonsene kan være mangelfulle i forhold til lovpålagt opplysningsplikt. Før bindende avtale inngås oppfordres interessenter til å innhente komplett informasjon fra meglerforetaket, selger eller utleier.


























