Bildegalleri

Leiligheten fra 2022 har et stilrent Epoq-kjøkken med integrerte hvitevarer som medfølger.
Tvedestrand
Nyere 4-roms fra 2022 i rolig og sentrumsnært nabolag - Veranda på 13 m² - Utsyn og parkering
Prisantydning2 590 000 kr
Nøkkelinfo
- Boligtype
- Leilighet
- Eieform
- Eier (Selveier)
- Soverom
- 3
- Internt bruksareal
- 76 m² (BRA-i)
- Bruksareal
- 81 m²
- Eksternt bruksareal
- 5 m² (BRA-e)
- Balkong/Terrasse
- 13 m² (TBA)
- Etasje
- 2
- Byggeår
- 2022
- Energimerking
- C - Lysegrønn
- Rom
- 4
- Tomteareal
- 1 546 m² (eiet)
Fasiliteter
Balkong/Terrasse
Barnevennlig
Bredbåndstilknytning
Garasje/P-plass
Golfbane
Kjæledyr tillatt
Offentlig vann/kloakk
Rolig
Sentralt
Bademulighet
Turterreng
Balansert ventilasjon
Visning
mandag, 23. mars
17:00 – 18:00
For å delta på visning, ber vi om at du melder deg på. Da sikrer vi at du får nødvendig informasjon og at det er satt av tilstrekkelig med tid. Kontakt megler dersom annet tidspunkt ønskes. Husk å lese salgsoppgaven før visningen, så du stiller forberedt. NB. Visning utgår dersom det ikke er noen påmeldte.
Ønsker du kun å bli holdt orientert, kan du fra eiendommens hjemmeside få varsel om solgtpris, eller kontakte megler.
VisningspåmeldingOm boligen
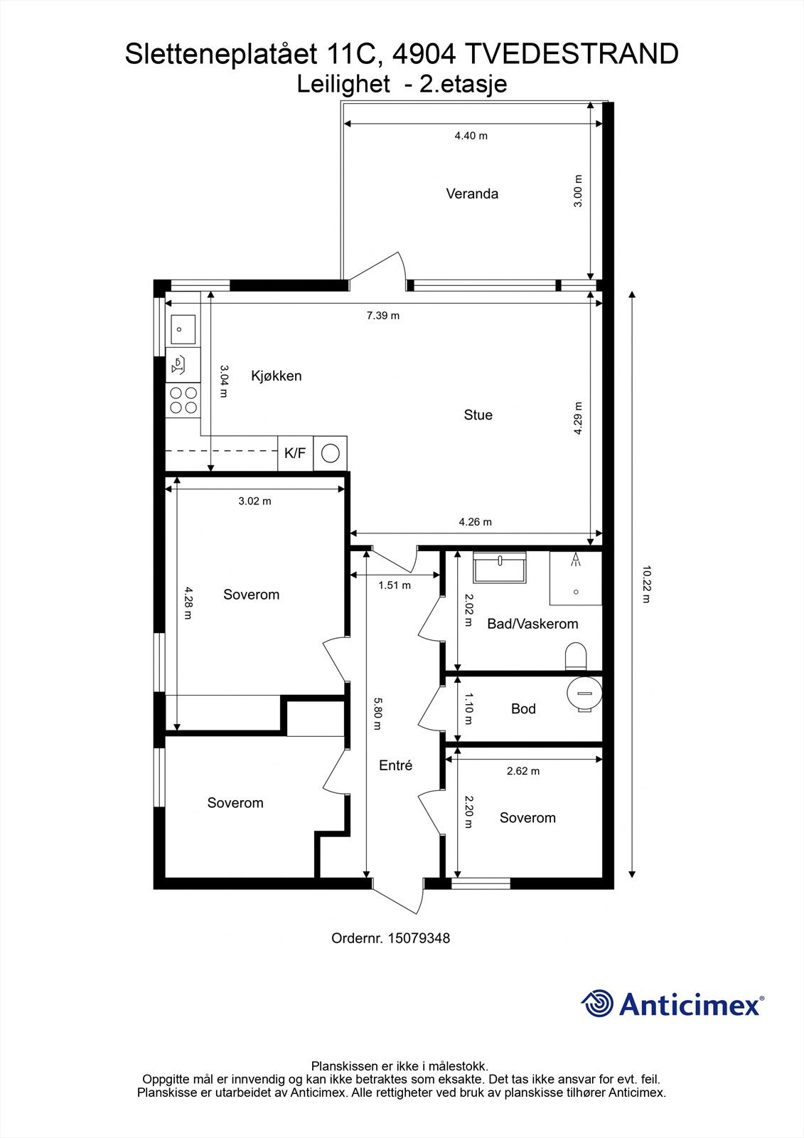
Velkommen til Sletteneplatået 11C! En nyere 4-roms selveierleilighet i et rolig og sentrumsnært nabolag.
Denne leiligheten fra 2022 byr på tre soverom, bad/vaskerom, bod, entré og kjøkken/stue i åpen løsning. Her bor du med kort vei til alt Tvedestrand har å by på, fra dagligvare og skoler til turområder og badeplasser. Sjøen er få minutter unna og det er gangfelt/snarvei til sentrum fra området.
Høydepunkter:
Denne leiligheten fra 2022 byr på tre soverom, bad/vaskerom, bod, entré og kjøkken/stue i åpen løsning. Her bor du med kort vei til alt Tvedestrand har å by på, fra dagligvare og skoler til turområder og badeplasser. Sjøen er få minutter unna og det er gangfelt/snarvei til sentrum fra området.
Høydepunkter:
- Byggeår 2022
- Tre soverom og åpen stue- og kjøkkenløsning
- Integrerte hvitevarer medfølger
- Veranda på 13 m²
- Varmekabler i entré og på bad
- Lave fellesutgifter på 700 kr/mnd.
- Ekstern bod og romslig fellesareal
NB: Knappen for å vise hele beskrivelsen har kun en visuell effekt.
NB: Knappen for å vise hele beskrivelsen har kun en visuell effekt.
Salgsoppgaven beskriver vesentlig og lovpålagt informasjon om eiendommen
Se komplett salgsoppgaveNyttige lenker
Nærområdet
Krogsveen Arendal
Verdien av en god megler.
Annonseinformasjon
| FINN-kode | 451671127 |
|---|---|
| Sist endret | 13. mars 2026 10:39 |
| Referanse | KR47.2610 |
Annonsene kan være mangelfulle i forhold til lovpålagt opplysningsplikt. Før bindende avtale inngås oppfordres interessenter til å innhente komplett informasjon fra meglerforetaket, selger eller utleier.
































