Bildegalleri

Velkommen til Barliveien 3B, presentert av kristin Strømme Dnb Eiendom:
NORDBERG
Unik arkitekttegnet halvpart av tomannsbolig med luftige romvolumer, solrik hage og garasje. Nær T-bane, skoler og marka
Prisantydning14 000 000 kr
Nøkkelinfo
- Boligtype
- Tomannsbolig
- Eieform
- Eier (Selveier)
- Soverom
- 3
- Internt bruksareal
- 161 m² (BRA-i)
- Bruksareal
- 183 m²
- Eksternt bruksareal
- 22 m² (BRA-e)
- Balkong/Terrasse
- 2 m² (TBA)
- Etasje
- 3
- Byggeår
- 1992
- Energimerking
- D - Oransje
- Tomteareal
- 423 m² (eiet)
Fasiliteter
Balkong/Terrasse
Barnevennlig
Garasje/P-plass
Hage
Kjæledyr tillatt
Kabel-TV
Offentlig vann/kloakk
Peis/Ildsted
Rolig
Sentralt
Turterreng
Visning
onsdag, 25. februar
17:00 – 18:00
Velkommen til visning! Meld deg på ved å trykke "visningspåmelding" i våre boligannonser. Ta gjerne kontakt med megler i forkant av visningen om du har spørsmål.
VisningspåmeldingOm boligen
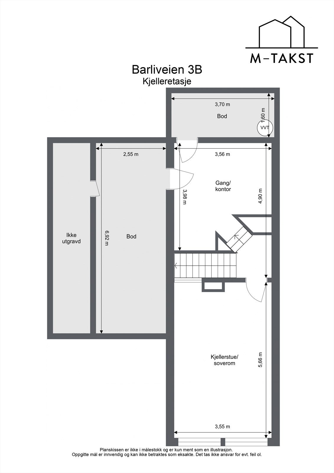
Unik halvpart av vertikaldelt tomannsbolig med tydelig arkitektonisk identitet og solrik, flat hage. Boligen strekker seg over tre plan med spennende romkomposisjoner og flotte lysforhold. Stuen imponerer med takhøyde opp til 3,3 m, store vindusflater og peis som skaper et luftig og moderne uttrykk. Romslig kjøkken med Unoform-innredning og spisestue med skyvedør mot terrasse og hage. Hovedsoverom med bad en suite og egen balkong. Stor kjellerstue/soverom(som kan bygges om til to soverom)og et fleksibelt rom til kontor/arbeidsrom (evt. treningsrom) To bad, vaskerom, gode boder og garasje.
Kort gangavstand til lysløype, Nordmarka, Korsvoll skole, idrettshall, T-bane, buss og dagligvare.
Kort gangavstand til lysløype, Nordmarka, Korsvoll skole, idrettshall, T-bane, buss og dagligvare.
NB: Knappen for å vise hele beskrivelsen har kun en visuell effekt.
NB: Knappen for å vise hele beskrivelsen har kun en visuell effekt.
Salgsoppgaven beskriver vesentlig og lovpålagt informasjon om eiendommen
Se komplett salgsoppgaveNyttige lenker
Nærområdet
DNB Eiendom AS
Verdifulle salg
Annonseinformasjon
| FINN-kode | 451664053 |
|---|---|
| Sist endret | 19. feb. 2026 12:52 |
| Referanse | 404260020 |
Annonsene kan være mangelfulle i forhold til lovpålagt opplysningsplikt. Før bindende avtale inngås oppfordres interessenter til å innhente komplett informasjon fra meglerforetaket, selger eller utleier.






















































