Bildegalleri

Velkommen til Gamleveien 87A!
Lørenskog sentrum
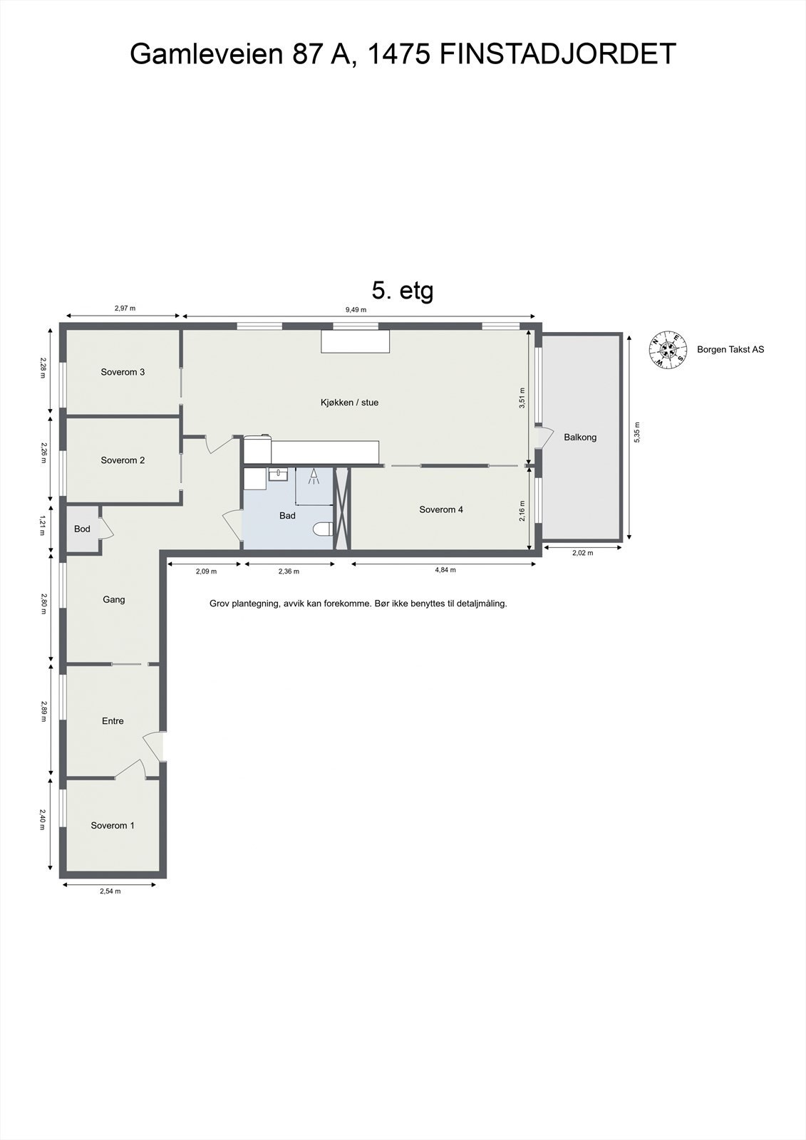
Lys og moderne 5-roms i 5. etg. fra 2024 - Balkong på hele 11 m² - Vannbåren gulvvarme - Heis - IN-ordning - Sentralt!
Prisantydning1 850 000 kr
Nøkkelinfo
- Boligtype
- Leilighet
- Eieform
- Andel
- Soverom
- 4
- Internt bruksareal
- 95 m² (BRA-i)
- Bruksareal
- 100 m²
- Eksternt bruksareal
- 5 m² (BRA-e)
- Balkong/Terrasse
- 11 m² (TBA)
- Etasje
- 5
- Byggeår
- 2024
- Energimerking
- B - Lysegrønn
- Rom
- 5
- Tomteareal
- 2 173 m² (eiet)
Fasiliteter
Takterrasse
Balkong/Terrasse
Barnevennlig
Bredbåndstilknytning
Heis
Kabel-TV
Offentlig vann/kloakk
Parkett
Rolig
Sentralt
Utsikt
Turterreng
Balansert ventilasjon
Visning
Ønsker du å delta på visningen ber vi deg melde deg på slik at vi vet at du kommer. Da kan vi bistå alle best mulig og gi deg tiden du trenger på visningen. Ta gjerne kontakt med megler før visning hvis du har noen spørsmål. Velkommen!
VisningspåmeldingOm boligen
Velkommen til Gamleveien 87A! En ny og familievennlig 5-roms andelsleilighet med heisadkomst.
Flytt rett inn i en nybygd bolig fra 2024, perfekt for familien som ønsker en enklere hverdag. Med fire soverom og en arealeffektiv planløsning er alt tilrettelagt. Her bor du sentralt med Triaden storsenter, skoler, barnehager og buss kun minutter unna, samtidig som marka og flotte turmuligheter venter rett utenfor døren.
Høydepunkter:
- Ny 5-roms leilighet i 5. etasje (2024)
- Balkong på 11 m² med utgang fra stuen
- Vannbåren gulvvarme og balansert ventilasjon
- IN-ordning på fellesgjeld gir fleksibilitet
- TV og internett er inkludert
- Ekstern bod på 5 m² i kjeller
- Mulighet for kjøp eller leie av garasjeplass(er)
Velkommen til visning!
Flytt rett inn i en nybygd bolig fra 2024, perfekt for familien som ønsker en enklere hverdag. Med fire soverom og en arealeffektiv planløsning er alt tilrettelagt. Her bor du sentralt med Triaden storsenter, skoler, barnehager og buss kun minutter unna, samtidig som marka og flotte turmuligheter venter rett utenfor døren.
Høydepunkter:
- Ny 5-roms leilighet i 5. etasje (2024)
- Balkong på 11 m² med utgang fra stuen
- Vannbåren gulvvarme og balansert ventilasjon
- IN-ordning på fellesgjeld gir fleksibilitet
- TV og internett er inkludert
- Ekstern bod på 5 m² i kjeller
- Mulighet for kjøp eller leie av garasjeplass(er)
Velkommen til visning!
NB: Knappen for å vise hele beskrivelsen har kun en visuell effekt.
NB: Knappen for å vise hele beskrivelsen har kun en visuell effekt.
Salgsoppgaven beskriver vesentlig og lovpålagt informasjon om eiendommen
Se komplett salgsoppgaveNyttige lenker
Nærområdet
EiendomsMegler 1 Lørenskog
Vi loser deg trygt gjennom hele boligsalget
Annonseinformasjon
| FINN-kode | 451643339 |
|---|---|
| Sist endret | 18. feb. 2026 14:56 |
| Referanse | 6029260230 |
Annonsene kan være mangelfulle i forhold til lovpålagt opplysningsplikt. Før bindende avtale inngås oppfordres interessenter til å innhente komplett informasjon fra meglerforetaket, selger eller utleier.







































