Bildegalleri

Ølen
Flott beliggende eiendom med god standard - Garasje
Prisantydning2 790 000 kr
Nøkkelinfo
- Boligtype
- Enebolig
- Eieform
- Eier (Selveier)
- Soverom
- 3
- Internt bruksareal
- 126 m² (BRA-i)
- Bruksareal
- 160 m²
- Eksternt bruksareal
- 34 m² (BRA-e)
- Balkong/Terrasse
- 39 m² (TBA)
- Byggeår
- 1955
- Rom
- 5
- Tomteareal
- 414 m² (eiet)
Fasiliteter
Balkong/Terrasse
Barnevennlig
Garasje/P-plass
Hage
Peis/Ildsted
Rolig
Sentralt
Utsikt
Turterreng
Visning
tirsdag, 03. mars
16:15 – 17:00
Ønsker du å delta på visningen ber vi deg melde deg på slik at vi vet at du kommer. Da kan vi bistå alle best mulig og gi deg tiden du trenger på visningen. Kontakt gjerne megler før visning hvis du har spørsmål. Visningen avholdes bare dersom det er påmeldte. Hvis det ikke er oppsatt visningstidspunkt eller tidspunkt ikke passer, kontakt megler.
VisningspåmeldingOm boligen
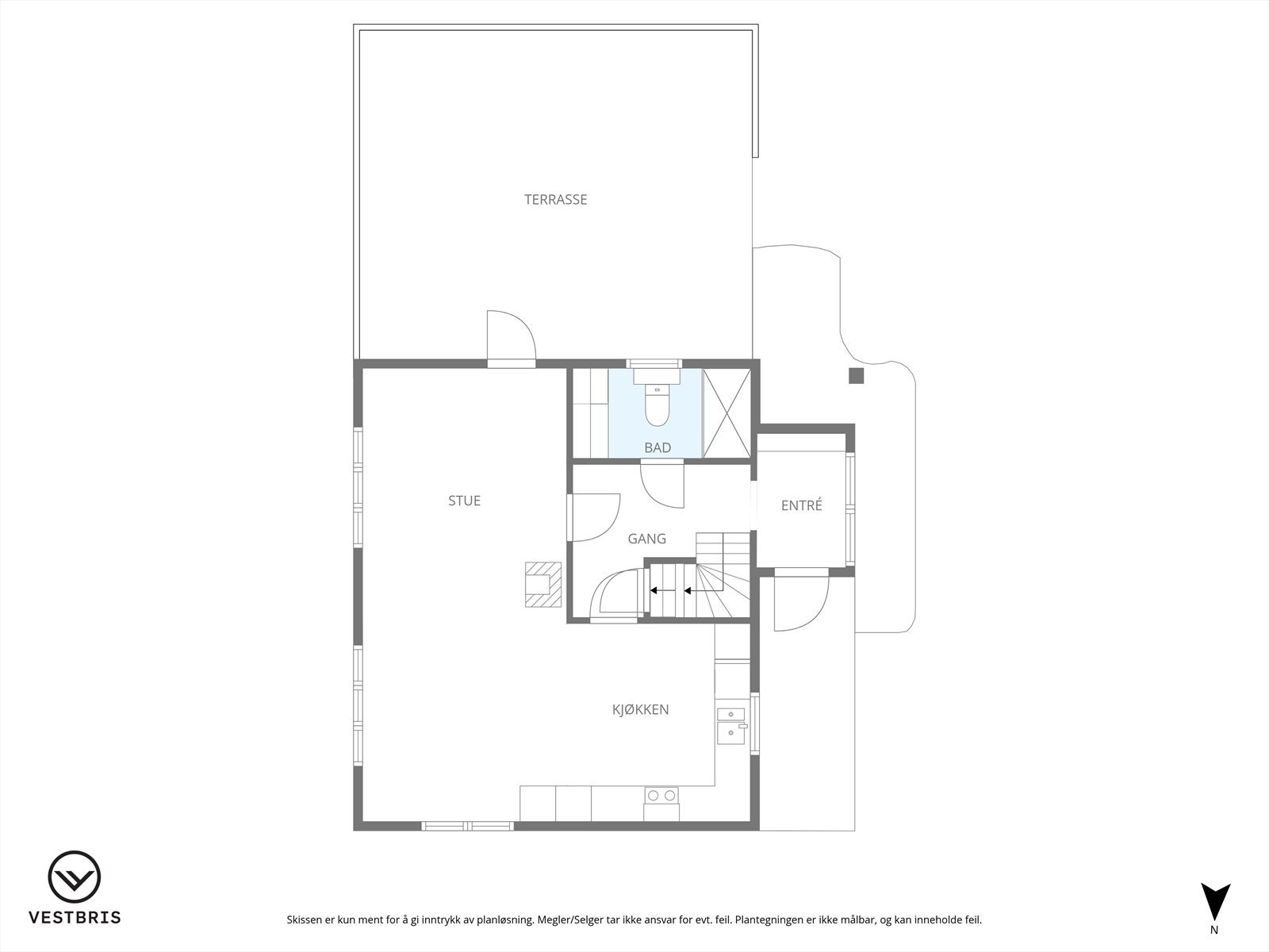
Velkommen til Nerheimsvegen 35 en innbydende og praktisk enebolig som passer både for familier og de som ønsker godt med plass og fleksible løsninger. Boligen har god standard, opparbeidet tomt og garasje.
Boligen inneholder blant annet en lys og lekker stue med peisovn, et moderne kjøkken med integrerte hvitevarer og en stor, usjenert terrasse for de som elsker å nyte late dager utendørs. Med tre soverom på loftet og en kjellerstue med "hybelkjøkken" og egen inngang, legger huset til rette for både praktiske og sosiale behov.
Eiendommen ligger i et etablert og rolig boligfelt som byr på fredelige omgivelser, samtidig som du har gangavstand til Ølen sentrum. Her finner du et godt utvalg av dagligvarebutikker, kaféer, skoler og andre servicetilbud m.m.
Boligen inneholder blant annet en lys og lekker stue med peisovn, et moderne kjøkken med integrerte hvitevarer og en stor, usjenert terrasse for de som elsker å nyte late dager utendørs. Med tre soverom på loftet og en kjellerstue med "hybelkjøkken" og egen inngang, legger huset til rette for både praktiske og sosiale behov.
Eiendommen ligger i et etablert og rolig boligfelt som byr på fredelige omgivelser, samtidig som du har gangavstand til Ølen sentrum. Her finner du et godt utvalg av dagligvarebutikker, kaféer, skoler og andre servicetilbud m.m.
NB: Knappen for å vise hele beskrivelsen har kun en visuell effekt.
NB: Knappen for å vise hele beskrivelsen har kun en visuell effekt.
Salgsoppgaven beskriver vesentlig og lovpålagt informasjon om eiendommen
Se komplett salgsoppgaveNyttige lenker
Nærområdet
Eiendomsmegler 1 avd Tysvær
En del av Sparebank 1 Sør-Norge
Annonseinformasjon
| FINN-kode | 451628350 |
|---|---|
| Sist endret | 19. feb. 2026 07:56 |
| Referanse | 2503260013 |
Annonsene kan være mangelfulle i forhold til lovpålagt opplysningsplikt. Før bindende avtale inngås oppfordres interessenter til å innhente komplett informasjon fra meglerforetaket, selger eller utleier.
























































