Bildegalleri

Velkommen til Karolinerveien 4B, presentert av EiendomsMegler 1 ved Ivar Lindrupsen.
Havstad
LYS OG FIN 3-ROMS LEILIGHET SENTRALT PÅ HAVSTAD. Bad og kjøkken oppgradert i 2021. To boder. Nærhet til Bymarka.
Prisantydning3 790 000 kr
Nøkkelinfo
- Boligtype
- Leilighet
- Eieform
- Andel
- Soverom
- 2
- Internt bruksareal
- 82 m² (BRA-i)
- Bruksareal
- 89 m²
- Eksternt bruksareal
- 7 m² (BRA-e)
- Balkong/Terrasse
- 7 m² (TBA)
- Etasje
- 1
- Byggeår
- 1967
- Energimerking
- Rom
- 3
- Tomteareal
- 44 327 m² (eiet)
Visning
onsdag, 08. april
16:00 – 16:45
Våre visninger har påmelding. Dette gjør vi for å kunne yte bedre service for våre kunder. Verdifullt for boligkjøper og for oss. Vi anbefaler at salgsoppgaven lastes ned digitalt før visning, og ring oss gjerne på forhånd for spørsmål om boligen. Passer ikke angitt tidspunkt, ta kontakt så finner vi en løsning. Skulle det mot formodning ikke være påmeldte til angitt visningstidspunkt vil ikke visning bli gjennomført.
Om boligen
Velkommen til Karolinerveien 4 B, presentert av EiendomsMegler 1 v/Ivar Lindrupsen.
Her er en suveren anledning til å sikre seg en 3-roms i et attraktivt borettslag sentralt på Havstad. Leiligheten ble gjennomgående oppgradert i 2021/2022 og holder en moderne standard. Karolinerveien borettslag har store grøntareal, samt umiddelbar nærhet til dagligvare og kollektivtransport.
Av kvaliteter vil jeg trekke frem følgende:
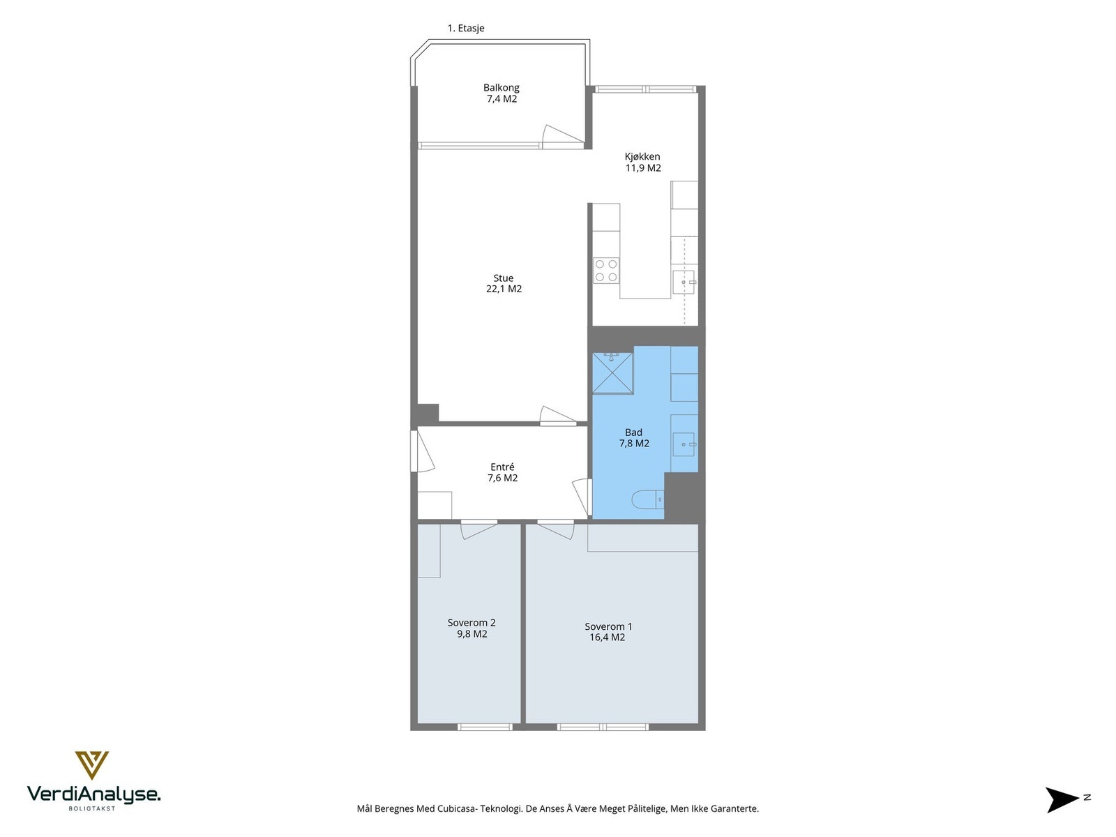
- To romslige soverom på 16,4 m² og 9,8 m²
- Stor entré på 7,6 m²
- To boder i kjeller
- Stor stue på 22,1 m² med god plass til sofaseksjon og TV-møblement
- Adskilt kjøkken på 11,9 m² oppgradert i 2021
- Pent flislagt bad oppgradert i 2021
- Stor balkong på 7,4 m²
Velkommen til hyggelig visning!
Her er en suveren anledning til å sikre seg en 3-roms i et attraktivt borettslag sentralt på Havstad. Leiligheten ble gjennomgående oppgradert i 2021/2022 og holder en moderne standard. Karolinerveien borettslag har store grøntareal, samt umiddelbar nærhet til dagligvare og kollektivtransport.
Av kvaliteter vil jeg trekke frem følgende:
- To romslige soverom på 16,4 m² og 9,8 m²
- Stor entré på 7,6 m²
- To boder i kjeller
- Stor stue på 22,1 m² med god plass til sofaseksjon og TV-møblement
- Adskilt kjøkken på 11,9 m² oppgradert i 2021
- Pent flislagt bad oppgradert i 2021
- Stor balkong på 7,4 m²
Velkommen til hyggelig visning!
NB: Knappen for å vise hele beskrivelsen har kun en visuell effekt.
NB: Knappen for å vise hele beskrivelsen har kun en visuell effekt.
Salgsoppgaven beskriver vesentlig og lovpålagt informasjon om eiendommen
Se komplett salgsoppgaveNyttige lenker
Nærområdet
EiendomsMegler 1 Byåsen
Vi loser deg trygt gjennom hele boligsalget
Annonseinformasjon
| FINN-kode | 451620084 |
|---|---|
| Sist endret | 27. mars 2026 13:31 |
| Referanse | 35260025 |
Annonsene kan være mangelfulle i forhold til lovpålagt opplysningsplikt. Før bindende avtale inngås oppfordres interessenter til å innhente komplett informasjon fra meglerforetaket, selger eller utleier.





























