Bildegalleri

EiendomsMegler 1 ved June Marie Brovold har gleden av å presentere Nedre Flatåsveg 352. Foto: Ekaterina Krokstad (Krokstad & Nervik).
Flatåsen
Svært lekkert og oppgradert rekkehus over to plan. Tilbaketrukket beliggenhet med solrike uteområder. Vedfyring.
Prisantydning4 290 000 kr
Nøkkelinfo
- Boligtype
- Rekkehus
- Eieform
- Andel
- Soverom
- 2
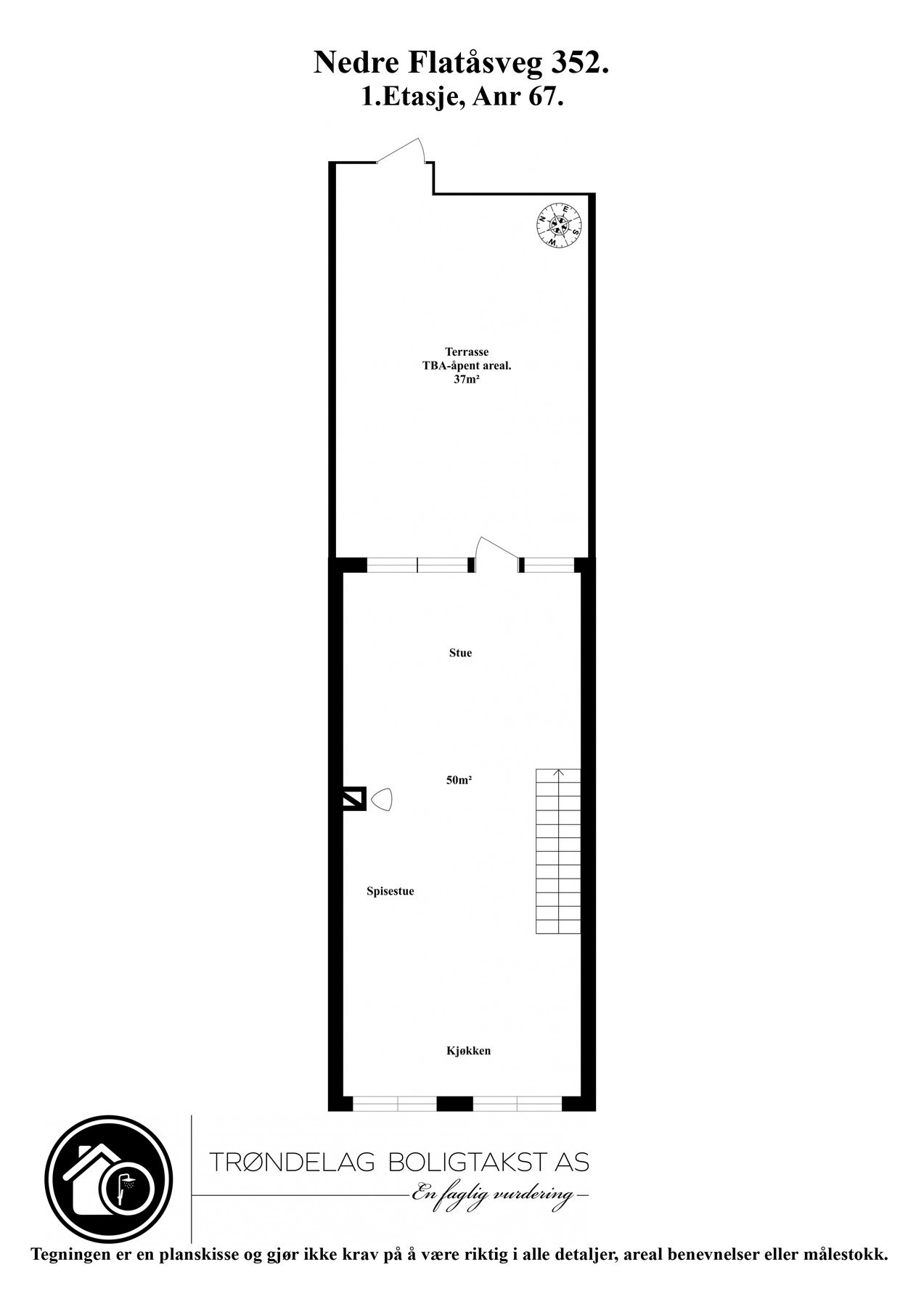
- Internt bruksareal
- 112 m² (BRA-i)
- Bruksareal
- 119 m²
- Eksternt bruksareal
- 7 m² (BRA-e)
- Balkong/Terrasse
- 37 m² (TBA)
- Byggeår
- 1980
- Energimerking
- E - Oransje
- Rom
- 3
- Tomteareal
- 18 800 m² (eiet)
Fasiliteter
Barnevennlig
Balkong/Terrasse
Garasje/P-plass
Kabel-TV
Offentlig vann/kloakk
Parkett
Peis/Ildsted
Turterreng
Vaktmester-/vektertjeneste
Bredbåndstilknytning
Moderne
Rolig
Lademulighet
Visning
mandag, 02. mars
16:00 – 17:00
Våre visninger har påmelding. Dette gjør vi for å kunne yte bedre service for våre kunder. Verdifullt for boligkjøper og for oss. Vi anbefaler at salgsoppgaven lastes ned digitalt før visning, og ring oss gjerne på forhånd for spørsmål om boligen. Passer ikke angitt tidspunkt, ta kontakt så finner vi en løsning. Skulle det mot formodning ikke være påmeldte til angitt visningstidspunkt vil ikke visning bli gjennomført.
Om boligen
Velkommen til Nedre Flatåsveg 352.
EiendomsMegler 1 ved June Marie Brovold har gleden av å presentere et særdeles flott og innholdsrikt rekkehus over to plan. Boligen har en attraktiv og tilbaketrukket beliggenhet i borettslaget med solrike uteområder. Fra boligen er det gangavstand til alt man behøver i hverdagen som dagligvare, skole, bussforbindelser og gode turmuligheter året rundt.
Kvaliteter verdt å nevne:
EiendomsMegler 1 ved June Marie Brovold har gleden av å presentere et særdeles flott og innholdsrikt rekkehus over to plan. Boligen har en attraktiv og tilbaketrukket beliggenhet i borettslaget med solrike uteområder. Fra boligen er det gangavstand til alt man behøver i hverdagen som dagligvare, skole, bussforbindelser og gode turmuligheter året rundt.
Kvaliteter verdt å nevne:
- Betydelig oppgradert rekkehus med moderne materialvalg
- Bruksareal på 120 kvm med god planløsning og store oppholdsrom
- Solrik, vestvendt terrasse på 37 kvm vendt mot friområde
- Romslig stue med gode møbleringsmuligheter og vedfyring
- Lekkert kjøkken fra 2017 med integrerte hvitevarer, som er vurdert til tilstandsgrad 1 av takstmann
- To soverom av god størrelse
- Pent baderom oppusset i 2016, vurdert til tilstandsgrad 1 av takstmann
- Praktisk vaskerom oppgradert i 2017
- Godt med lagringsplass i boligen, på loft og i utvendig bod
- Veldrevet borettslag
- Internett og kabel-TV inkludert i felleskostnadene
- Parkering på borettslagets eiendom, samt mulighet for tildelig av plass i felles garasje
- Flotte fellesarealer og oppgraderte lekeplasser i borettslaget
- Tak skiftet i perioden 2021-23 i regi av borettslaget
Velkommen til en hyggelig visning!
NB: Knappen for å vise hele beskrivelsen har kun en visuell effekt.
NB: Knappen for å vise hele beskrivelsen har kun en visuell effekt.
Salgsoppgaven beskriver vesentlig og lovpålagt informasjon om eiendommen
Se komplett salgsoppgaveNærområdet
EiendomsMegler 1 Heimdal
Vi loser deg trygt gjennom hele boligsalget
Annonseinformasjon
| FINN-kode | 451529900 |
|---|---|
| Sist endret | 19. feb. 2026 11:47 |
| Referanse | 31260086 |
Annonsene kan være mangelfulle i forhold til lovpålagt opplysningsplikt. Før bindende avtale inngås oppfordres interessenter til å innhente komplett informasjon fra meglerforetaket, selger eller utleier.
































