Bildegalleri

Velkommen til Alfheimvegen 36 - eldre enebolig i sentralt og attraktivt boligområde.
Alfheim
Eldre enebolig med utleiemulighet - solrikt og skjermet uteområde. Sentral beliggenhet med gangavstand til sentrum.
Prisantydning5 900 000 kr
Nøkkelinfo
- Boligtype
- Enebolig
- Eieform
- Eier (Selveier)
- Soverom
- 5
- Internt bruksareal
- 159 m² (BRA-i)
- Bruksareal
- 159 m²
- Balkong/Terrasse
- 11 m² (TBA)
- Etasje
- 3
- Byggeår
- 1923
- Energimerking
- G
- Rom
- 6
- Tomteareal
- 323 m² (eiet)
Fasiliteter
Balkong/Terrasse
Garasje/P-plass
Hage
Kjæledyr tillatt
Offentlig vann/kloakk
Peis/Ildsted
Sentralt
Visning
torsdag, 12. mars
18:30 – 19:15
Vi ønsker visninger med høyest mulig servicegrad og forutsigbarhet. Derfor har vi alltid påmelding til visning. Meld deg på visning via lenken Visningspåmelding eller kontakt meg på tlf. eller e-post for å avtale tidspunkt. Visninger uten påmeldte deltagere vil bli avlyst.
VisningspåmeldingOm boligen
Koselig enebolig med sentral beliggenhet.
Gangavstand til sentrum, skoler og friområder på Tromsøya. Kort vei til Alfheim, Romssa arena og Elverhøy med butikk og skiløype.
Boligen er opprinnelig oppført 1923, og er senere påbygd. Boligen har vært jevnlig vedlikeholdt, men en del oppussing og oppgradering må likevel påregnes
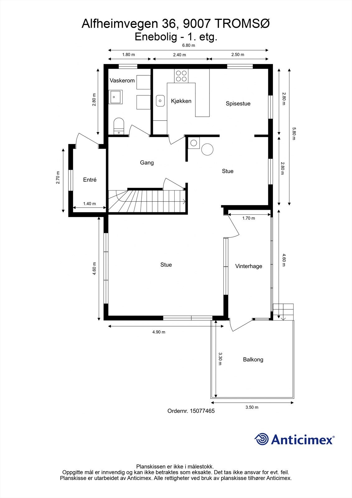
Svært innholdsrik bolig; hoveddel (1. og 2. etasje) med 3 soverom, to stuer, eget vaskerom og utgang til stor skjermet veranda fra vinterhage.
Kjeller med egen inngang - innredet med stue, kjøkken, bad/wc og 2 soverom (ikke godkjent).
Hjørnetomt som er opparbeidet med grus i innkjørsel, plen og beplantninger.
Gangavstand til sentrum, skoler og friområder på Tromsøya. Kort vei til Alfheim, Romssa arena og Elverhøy med butikk og skiløype.
Boligen er opprinnelig oppført 1923, og er senere påbygd. Boligen har vært jevnlig vedlikeholdt, men en del oppussing og oppgradering må likevel påregnes
Svært innholdsrik bolig; hoveddel (1. og 2. etasje) med 3 soverom, to stuer, eget vaskerom og utgang til stor skjermet veranda fra vinterhage.
Kjeller med egen inngang - innredet med stue, kjøkken, bad/wc og 2 soverom (ikke godkjent).
Hjørnetomt som er opparbeidet med grus i innkjørsel, plen og beplantninger.
NB: Knappen for å vise hele beskrivelsen har kun en visuell effekt.
NB: Knappen for å vise hele beskrivelsen har kun en visuell effekt.
Salgsoppgaven beskriver vesentlig og lovpålagt informasjon om eiendommen
Se komplett salgsoppgaveNærområdet
Hjem Eiendomsmegling
Annonseinformasjon
| FINN-kode | 451516713 |
|---|---|
| Sist endret | 03. mars 2026 08:30 |
| Referanse | 1-0356/25 |
Annonsene kan være mangelfulle i forhold til lovpålagt opplysningsplikt. Før bindende avtale inngås oppfordres interessenter til å innhente komplett informasjon fra meglerforetaket, selger eller utleier.




































