Bildegalleri

Ellen Celine Heireth v/EIE eiendomsmegling har gleden av å presentere Ringvollveien 2K! Foto: Fredrik Hansson.
Pen og moderne 3-roms selveier fra 2022 | Stor vestvendt balkong på 12 m² | Carport | Sentralt og barnevennlig
Prisantydning3 250 000 kr
Nøkkelinfo
- Boligtype
- Leilighet
- Eieform
- Eier (Selveier)
- Soverom
- 2
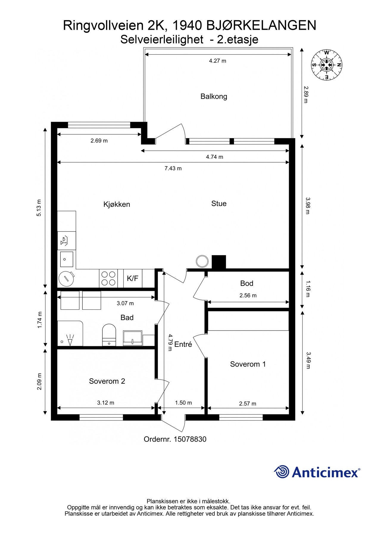
- Internt bruksareal
- 68 m² (BRA-i)
- Bruksareal
- 73 m²
- Eksternt bruksareal
- 5 m² (BRA-e)
- Balkong/Terrasse
- 12 m² (TBA)
- Etasje
- 2
- Byggeår
- 2022
- Energimerking
- - Gul
- Rom
- 3
- Tomteareal
- 1 996 m² (eiet)
Fasiliteter
Barnevennlig
Balkong/Terrasse
Garasje/P-plass
Fiskemulighet
Offentlig vann/kloakk
Ingen gjenboere
Peis/Ildsted
Turterreng
Utsikt
Sentralt
Bredbåndstilknytning
Moderne
Rolig
Om boligen
Ellen Celine Heireth v/EIE eiendomsmegling har gleden av å presentere Ringvollveien 2K!
En pen og moderne 3-roms leilighet beliggende i byggets andre etasje. Boligen har en flott beliggenhet med kort vei til offentlig kommunikasjon, skoler, barnehager og daglige servicetilbud. Leiligheten fremstår som lys og innbydende med moderne materialvalg fra byggeåret 2022 og en praktisk planløsning. Fra stuen er det utgang til en romslig vestvendt balkong på ca. 12 m² som gir gode solforhold og fin plass til utemøbler. Boligen har også overbygget svalgang ved inngangspartiet.
Høydepunkter:
En pen og moderne 3-roms leilighet beliggende i byggets andre etasje. Boligen har en flott beliggenhet med kort vei til offentlig kommunikasjon, skoler, barnehager og daglige servicetilbud. Leiligheten fremstår som lys og innbydende med moderne materialvalg fra byggeåret 2022 og en praktisk planløsning. Fra stuen er det utgang til en romslig vestvendt balkong på ca. 12 m² som gir gode solforhold og fin plass til utemøbler. Boligen har også overbygget svalgang ved inngangspartiet.
Høydepunkter:
- Moderne leilighet fra byggeår 2022
- To romslige soverom
- Luftig stue med moderne peisovn
- Vestvendt balkong på ca. 12 m²
- Delikat flislagt baderom
- Carportparkering
- Innvendig og utvendig, isolert bod
- Pent uteområder med lekeplass
- Kort vei til det meste
Mangler du egenkapital? Kjøp med Finit Deleie!
NB: Knappen for å vise hele beskrivelsen har kun en visuell effekt.
NB: Knappen for å vise hele beskrivelsen har kun en visuell effekt.
Salgsoppgaven beskriver vesentlig og lovpålagt informasjon om eiendommen
Se komplett salgsoppgaveNyttige lenker
Nærområdet
EIE eiendomsmegling Lørenskog
Annonseinformasjon
| FINN-kode | 451515623 |
|---|---|
| Sist endret | 27. feb. 2026 05:02 |
| Referanse | 32260034 |
Annonsene kan være mangelfulle i forhold til lovpålagt opplysningsplikt. Før bindende avtale inngås oppfordres interessenter til å innhente komplett informasjon fra meglerforetaket, selger eller utleier.




























