Bildegalleri

Velkommen til Olav Magnussons veg 6!
Valentinlyst
MODERNE OG STILFULL 3-ROMS LEILIGHET|SØRVESTVENDT BALKONG|P-PLASS I P-KJELLER| FJERNVARME| HEIS
Prisantydning3 400 000 kr
Nøkkelinfo
- Boligtype
- Leilighet
- Eieform
- Andel
- Soverom
- 2
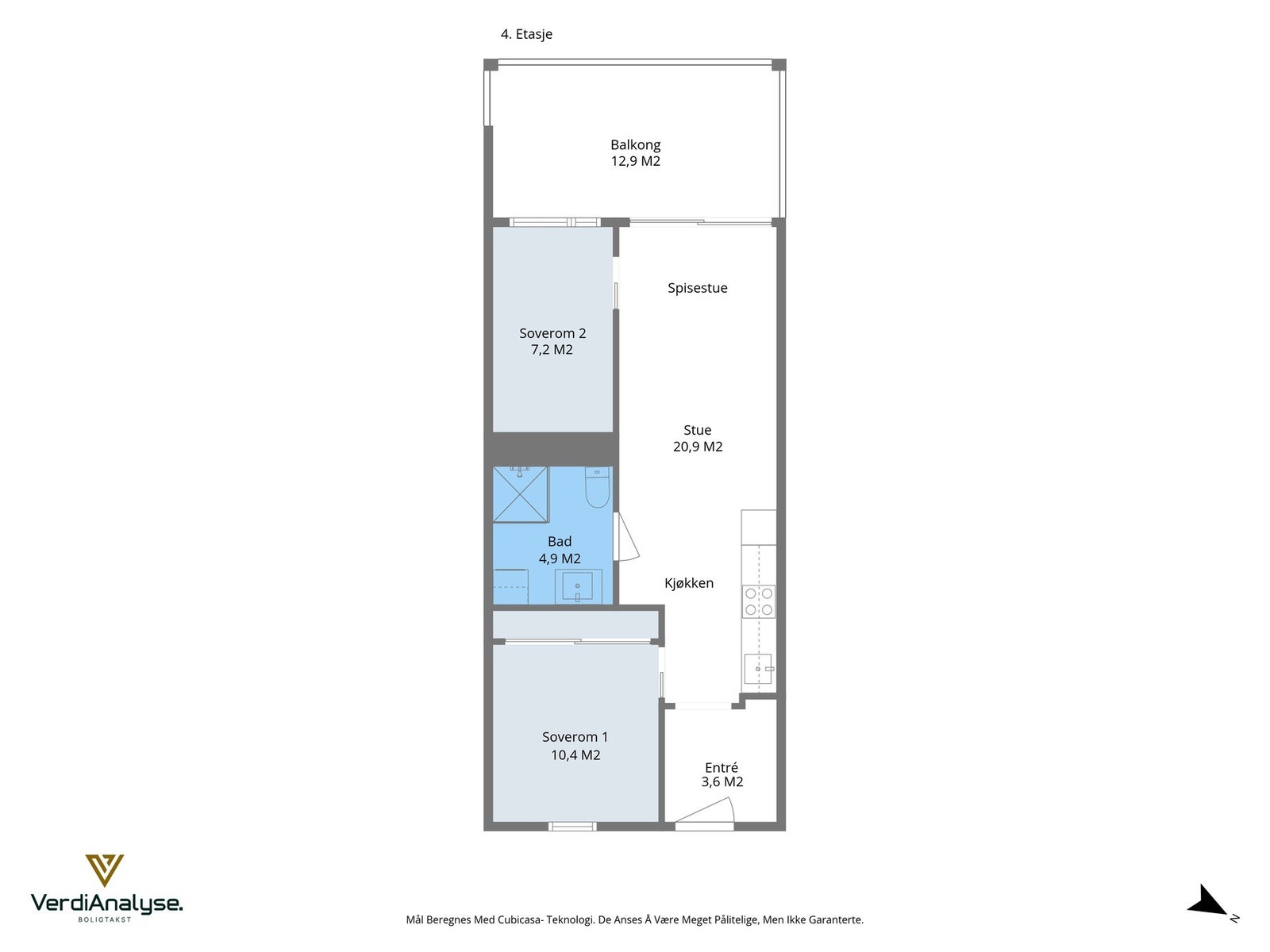
- Internt bruksareal
- 51 m² (BRA-i)
- Bruksareal
- 56 m²
- Eksternt bruksareal
- 5 m² (BRA-e)
- Balkong/Terrasse
- 13 m² (TBA)
- Etasje
- 4
- Byggeår
- 2022
- Energimerking
- G - Mørkegrønn
- Rom
- 4
- Tomteareal
- 4 074 m² (eiet)
Fasiliteter
Barnevennlig
Balkong/Terrasse
Garasje/P-plass
Heis
Offentlig vann/kloakk
Parkett
Turterreng
Utsikt
Sentralt
Bredbåndstilknytning
Moderne
Lademulighet
Balansert ventilasjon
Visning
tirsdag, 19. mai
15:30 – 16:15
Våre visninger har påmelding. Dette gjør vi for å kunne yte bedre service for våre kunder. Verdifullt for boligkjøper og for oss. Vi anbefaler at salgsoppgaven lastes ned digitalt før visning, og ring oss gjerne på forhånd for spørsmål om boligen. Passer ikke angitt tidspunkt, ta kontakt så finner vi en løsning. Skulle det mot formodning ikke være påmeldte til angitt visningstidspunkt vil ikke visning bli gjennomført.
Om boligen
Velkommen til Olav Magnussons veg 6! - En moderne og stilfull 3-roms leilighet. Boligblokken sto ferdig 2022, og leiligheten ligger i byggets 4.etasje. Gjennomgående god standard og planløsning.
Leiligheten kan by på bl.a. følgende kvaliteter:
- TG0-TG1 på alle punkter ifølge takstmann
- Parkeringsplass i parkeringskjeller med mulighet for elbillader
- God planløsning, samt en god takhøyde på stue og soverom
- Romslig og sørvestvendt balkong
- Varmtvann/varme, kommunale avgifter, husforsikring, Kabel-TV/internett og driftskostnader inkludert i felleskostnadene
- En ekstern bod i underetasje
- Gode bussforbindelser like i nærheten av leiligheten
- Kort vei til dagligvare, apotek, vinmonopol, legesenter for å nevne noe
Velkommen til en hyggelig visning!
Leiligheten kan by på bl.a. følgende kvaliteter:
- TG0-TG1 på alle punkter ifølge takstmann
- Parkeringsplass i parkeringskjeller med mulighet for elbillader
- God planløsning, samt en god takhøyde på stue og soverom
- Romslig og sørvestvendt balkong
- Varmtvann/varme, kommunale avgifter, husforsikring, Kabel-TV/internett og driftskostnader inkludert i felleskostnadene
- En ekstern bod i underetasje
- Gode bussforbindelser like i nærheten av leiligheten
- Kort vei til dagligvare, apotek, vinmonopol, legesenter for å nevne noe
Velkommen til en hyggelig visning!
NB: Knappen for å vise hele beskrivelsen har kun en visuell effekt.
NB: Knappen for å vise hele beskrivelsen har kun en visuell effekt.
Salgsoppgaven beskriver vesentlig og lovpålagt informasjon om eiendommen
Se komplett salgsoppgaveNyttige lenker
Nærområdet
EiendomsMegler 1 Valentinlyst
Vi loser deg trygt gjennom hele boligsalget
Annonsene kan være mangelfulle i forhold til lovpålagt opplysningsplikt. Før bindende avtale inngås oppfordres interessenter til å innhente komplett informasjon fra meglerforetaket, selger eller utleier.

























