Bildegalleri

Velkommen til et attraktivt og godt vedlikeholdt rekkehus i et veletablert og familievennlig bomiljø på Høyenhall (Foto: Kevin Fauske v/ Fotostallen)
Solgt
Høyenhall
Attraktivt og familievennlig rekkehus med flott uteplass | 3 soverom på samme plan | Garasjeplass | Svært barnevennlig
Prisantydning8 750 000 kr
Nøkkelinfo
- Boligtype
- Rekkehus
- Eieform
- Eier (Selveier)
- Soverom
- 3
- Internt bruksareal
- 126 m² (BRA-i)
- Bruksareal
- 126 m²
- Balkong/Terrasse
- 22 m² (TBA)
- Byggeår
- 1967
- Tomteareal
- 14 070 m² (eiet)
Fasiliteter
Barnevennlig
Balkong/Terrasse
Garasje/P-plass
Offentlig vann/kloakk
Parkett
Peis/Ildsted
Turterreng
Bredbåndstilknytning
Moderne
Rolig
Lademulighet
Om boligen
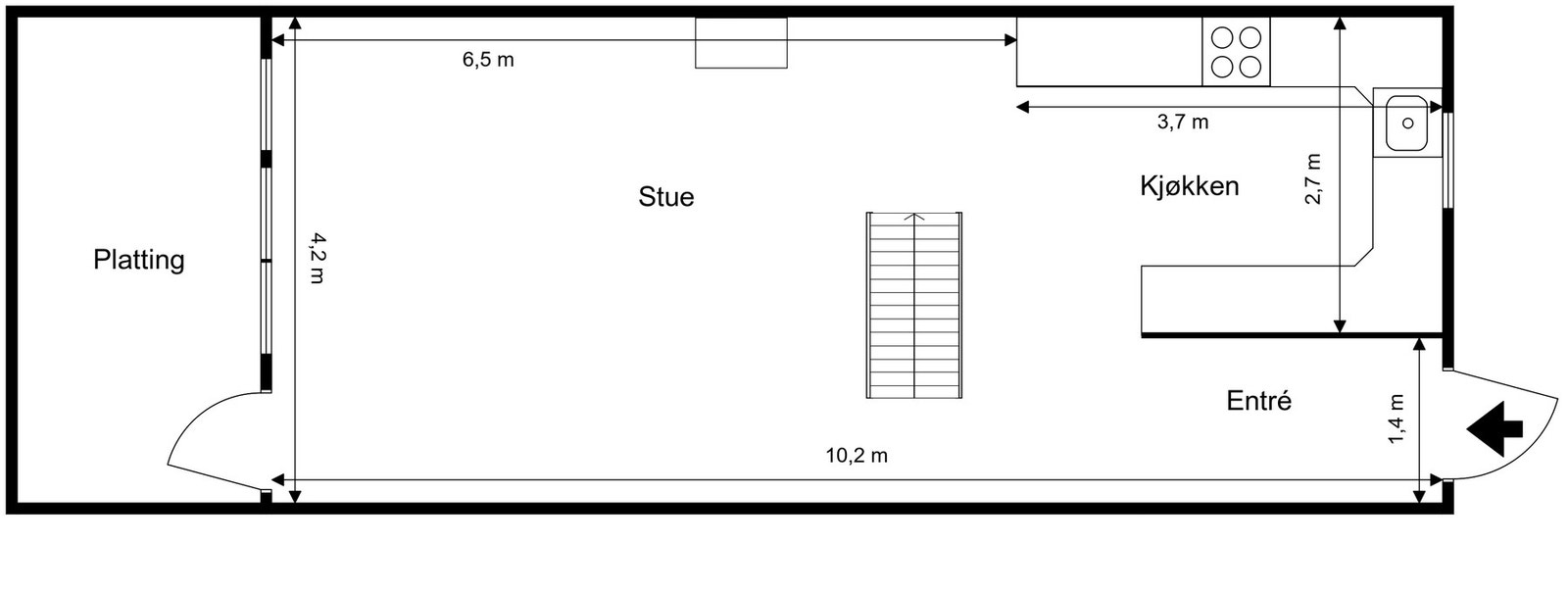
Velkommen til et trivelig og godt vedlikeholdt rekkehus i et veletablert og familievennlig bomiljø på Høyenhall. Boligen går over tre plan og har en innholdsrik, gjennomtenkt planløsning med gode oppholdsrom, tre soverom samlet i samme etasje og et hyggelig uteområde som inviterer til lange sommerdager.
- 3 soverom på samme plan - ideelt for barnefamilier
- 2 bad
- Utgang fra stue til terrasse på ca. 22 m²
- Egen parkeringsplass i garasje med lademulighet på sameiets tomt
- Peisovn i stue
- Kjøkken fra Kvik
- Elektrisk markise og solskjerming
- Disponibelt rom og gode oppbevaringsmuligheter i kjeller
Her bor du med kort vei til barnehager, skole, idrettsanlegg og servicetilbud, i tillegg til flotte tur- og friluftsområder. Et perfekt utgangspunkt for en enkel og aktiv hverdag - i rolige omgivelser, men med god forbindelse til resten av byen.
NB: Knappen for å vise hele beskrivelsen har kun en visuell effekt.
NB: Knappen for å vise hele beskrivelsen har kun en visuell effekt.
Salgsoppgaven beskriver vesentlig og lovpålagt informasjon om eiendommen
Se komplett salgsoppgaveNyttige lenker
Nærområdet

PrivatMegleren Allé
Kun det beste på dine vegne
Annonseinformasjon
| FINN-kode | 451307675 |
|---|---|
| Sist endret | 06. mars 2026 14:24 |
| Referanse | 186260038 |
Annonsene kan være mangelfulle i forhold til lovpålagt opplysningsplikt. Før bindende avtale inngås oppfordres interessenter til å innhente komplett informasjon fra meglerforetaket, selger eller utleier.




































