Bildegalleri

Velkommen til en lekker og romslig tomannsbolig med solrik hage og balkong. Foto: Chris Borowiak
ULSRUD
Halvpart av 2-mannsbolig | Stor sørvestvendt hage | 3 sov, 2 bad | Meget barnevennlig | Attraktivt nabolag
Prisantydning9 200 000 kr
Nøkkelinfo
- Boligtype
- Tomannsbolig
- Eieform
- Eier (Selveier)
- Soverom
- 3
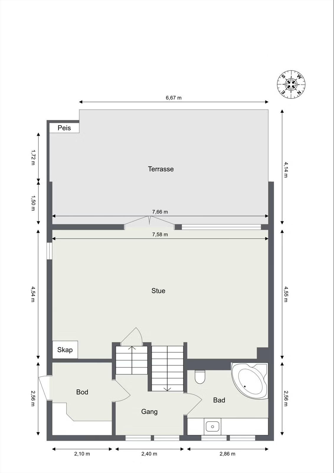
- Internt bruksareal
- 114 m² (BRA-i)
- Bruksareal
- 114 m²
- Balkong/Terrasse
- 39 m² (TBA)
- Etasje
- 4
- Byggeår
- 1967
- Rom
- 4
- Tomteareal
- 499 m² (eiet)
Fasiliteter
Balkong/Terrasse
Barnevennlig
Bredbåndstilknytning
Garasje/P-plass
Hage
Kjæledyr tillatt
Ingen gjenboere
Kabel-TV
Offentlig vann/kloakk
Parkett
Peis/Ildsted
Rolig
Sentralt
Turterreng
Lademulighet
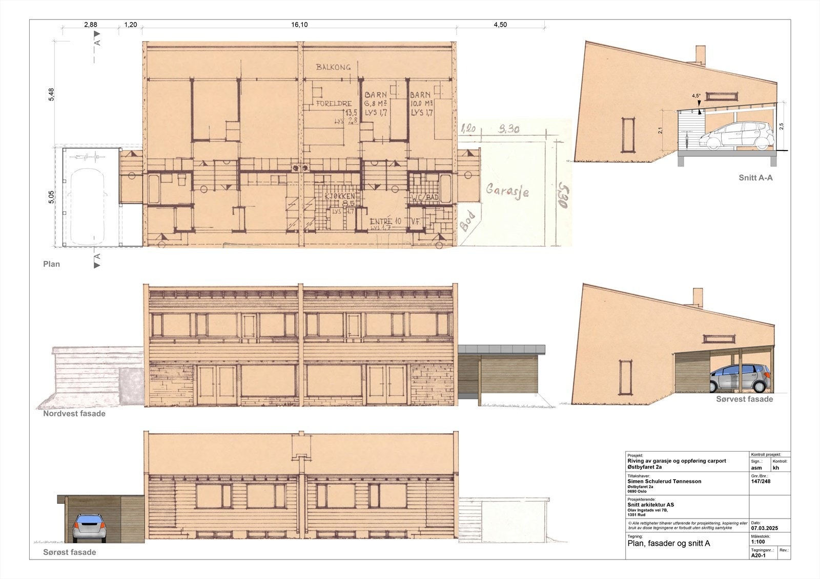
Om boligen
Meget attraktiv halvpart av en vertikaldelt 2-mannsbolig. Dette er en perfekt familiebolig i et veletablert boligområde på Ulsrud. Her bor man i rolige omgivelser, men samtidig sentral beliggenhet med kun et par minutters gange til off. komm., dagligvarebutikk og skole. Boligen sogner til Bøler skolekrets og det er flere barnehager i nærområdet. Vakre Østmarka ligger innen gangavstand og legger til rette for flotte naturopplevelser. Selve huset er delt opp i 4 delplan som gjør at huset oppleves større enn de meterne det har fått utdelt.
- Meget god planløsning, fordelt over 4 delplan
- Stor, inngjerdet hage
- Meget solrik tomt i et rolig nabolag
- Drenerte nordveggen 2025
- 3 soverom, 2 bad
- 200 meter til T-bane/buss
- Kort vei til skole og barnehager
- Nærhet til marka
- Meget god planløsning, fordelt over 4 delplan
- Stor, inngjerdet hage
- Meget solrik tomt i et rolig nabolag
- Drenerte nordveggen 2025
- 3 soverom, 2 bad
- 200 meter til T-bane/buss
- Kort vei til skole og barnehager
- Nærhet til marka
NB: Knappen for å vise hele beskrivelsen har kun en visuell effekt.
NB: Knappen for å vise hele beskrivelsen har kun en visuell effekt.
Salgsoppgaven beskriver vesentlig og lovpålagt informasjon om eiendommen
Se komplett salgsoppgaveNyttige lenker
Nærområdet
Nordvik Ullevål
Annonseinformasjon
| FINN-kode | 450922108 |
|---|---|
| Sist endret | 16. feb. 2026 16:52 |
| Referanse | 23-0023/26 |
Annonsene kan være mangelfulle i forhold til lovpålagt opplysningsplikt. Før bindende avtale inngås oppfordres interessenter til å innhente komplett informasjon fra meglerforetaket, selger eller utleier.












































































