Bildegalleri

Velkommen til en romslig og gjennomgående 3-roms med sydvestvendt balkong. Oppussingsobjekt med potensial. Foto: Peter Futo
Sandaker / Storo
Romslig og gjennomgående 3-roms med sydvestvendt balkong. Oppussingsobjekt med potensial. Sentral beliggenhet
Prisantydning5 800 000 kr
Nøkkelinfo
- Boligtype
- Leilighet
- Eieform
- Andel
- Soverom
- 2
- Internt bruksareal
- 75 m² (BRA-i)
- Bruksareal
- 79 m²
- Eksternt bruksareal
- 4 m² (BRA-e)
- Balkong/Terrasse
- 29 m² (TBA)
- Etasje
- 1
- Byggeår
- 1980
- Energimerking
- E - Oransje
- Rom
- 3
- Tomteareal
- 1 771 m² (eiet)
Fasiliteter
Balkong/Terrasse
Barnevennlig
Bredbåndstilknytning
Hage
Heis
Offentlig vann/kloakk
Sentralt
Visning
søndag, 22. februar
15:00 – 16:00
mandag, 23. februar
17:00 – 18:00
Meld deg på visning ved å trykke på lenken visningspåmelding.
VisningspåmeldingOm boligen
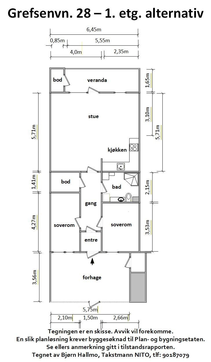
Velkommen til Grefsenveien 28. Dette er en romslig og gjennomgående 3-roms med sydvestvendt balkong. Boligen har behov for oppussing/modernisering og innehar et stort potensial.
Meget sentral beliggenhet med gangavstand til Torshov, Lillo, Bjølsen, Storo og Handelshøyskolen BI.
Umiddelbar nærhet til trikk, T-bane og buss.
Kort fortalt:
- Romslig 3-roms med behov for oppussing
- Solrik balkong på ca. 9 kvm.
- I tillegg til balkong disponerer boligen en inngjerdet forhage på ca. 20 kvm, som gir fine muligheter for både utendørs opphold og lek
- Garasjeleie etter venteliste
- Praktisk beliggenhet med enkel adkomst.
- Lave kjøpsomkostninger
- Varmtvann inkludert
- Attraktiv beliggenhet med kort vei til "alt"
Meget sentral beliggenhet med gangavstand til Torshov, Lillo, Bjølsen, Storo og Handelshøyskolen BI.
Umiddelbar nærhet til trikk, T-bane og buss.
Kort fortalt:
- Romslig 3-roms med behov for oppussing
- Solrik balkong på ca. 9 kvm.
- I tillegg til balkong disponerer boligen en inngjerdet forhage på ca. 20 kvm, som gir fine muligheter for både utendørs opphold og lek
- Garasjeleie etter venteliste
- Praktisk beliggenhet med enkel adkomst.
- Lave kjøpsomkostninger
- Varmtvann inkludert
- Attraktiv beliggenhet med kort vei til "alt"
NB: Knappen for å vise hele beskrivelsen har kun en visuell effekt.
NB: Knappen for å vise hele beskrivelsen har kun en visuell effekt.
Salgsoppgaven beskriver vesentlig og lovpålagt informasjon om eiendommen
Se komplett salgsoppgaveNyttige lenker
Nærområdet
Nordvik Løren
Annonseinformasjon
| FINN-kode | 450888113 |
|---|---|
| Sist endret | 16. feb. 2026 12:26 |
| Referanse | 21-0022/26 |
Annonsene kan være mangelfulle i forhold til lovpålagt opplysningsplikt. Før bindende avtale inngås oppfordres interessenter til å innhente komplett informasjon fra meglerforetaket, selger eller utleier.




































