Bildegalleri

Velkommen til Bekkeliveien 153 presentert av Marius Inderhaug Østby! Bildene er tatt av Carina Heier i Studio Oslo
Kolbotn/Sofiemyr
Spennende mulighet på Kolbotn | Flere bad | Stor takterrasse | Populært boligområde | God utsikt
Prisantydning7 990 000 kr
Nøkkelinfo
- Boligtype
- Enebolig
- Eieform
- Eier (Selveier)
- Soverom
- 2
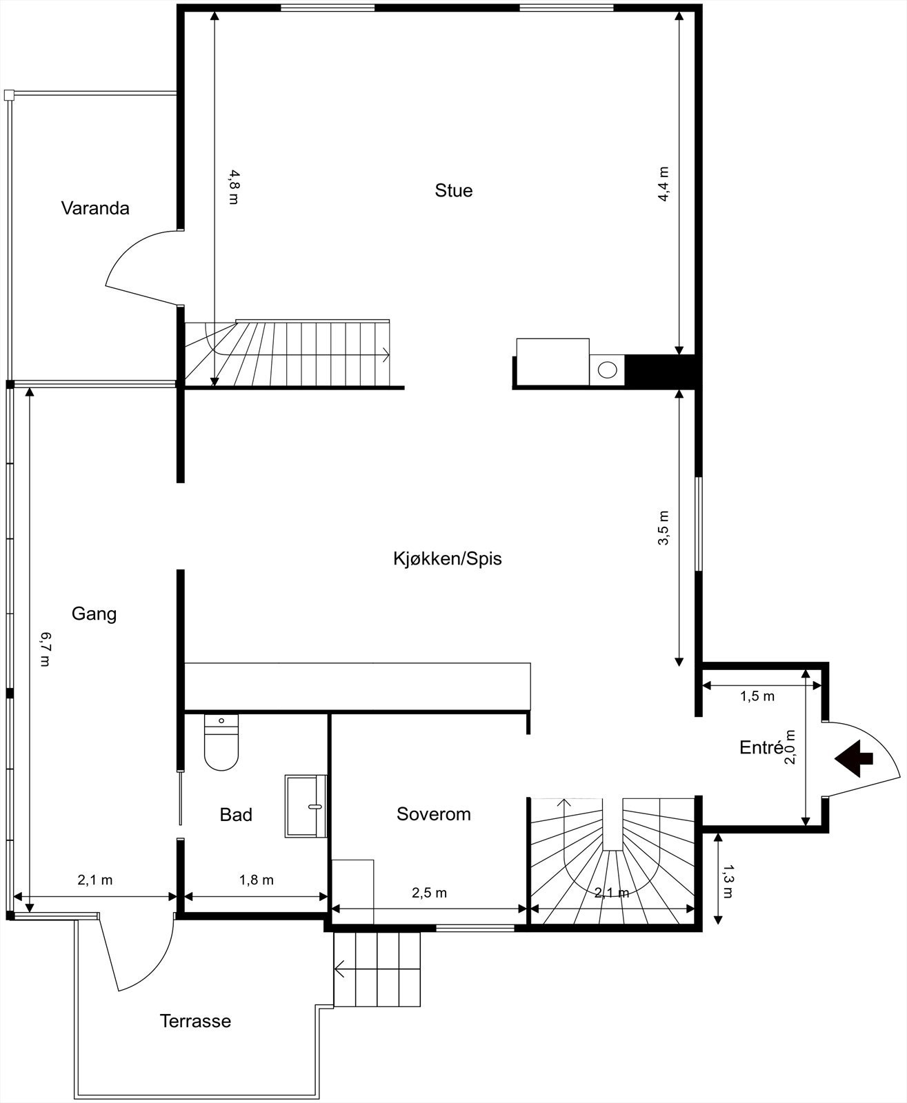
- Internt bruksareal
- 167 m² (BRA-i)
- Bruksareal
- 174 m²
- Eksternt bruksareal
- 7 m² (BRA-e)
- Balkong/Terrasse
- 34 m² (TBA)
- Etasje
- 3
- Byggeår
- 1920
- Energimerking
- G - Oransje
- Rom
- 3
- Tomteareal
- 1 412 m² (eiet)
Fasiliteter
Takterrasse
Balkong/Terrasse
Hage
Offentlig vann/kloakk
Peis/Ildsted
Om boligen
Velkommen til Bekkeliveien 153! Sjarmerende enebolig med stor takterrasse og familievennlig beliggenhet.
Enebolig beliggende i et attraktivt og familievennlig område på Kolbotn. Området byr på nærhet til skoler, barnehager, kollektivtransport og et godt utvalg av servicetilbud, samtidig som man har marka og flotte turområder like i nærheten. Boligen ligger i rolige omgivelser med etablert bebyggelse, og passer godt for både barnefamilier og de som ønsker en landlig, men sentrumsnær beliggenhet.
Kort fortalt:
- Stor enebolig med god takhøyde
- Bad pusset opp i 2021
- Kort vei til kollektivtransport og servicetilbud.
- Nydelig utsikt
- Flere solrike uteplasser
- Bad i alle etasjer
- Invvendige vannledninger er rør-i-rør
Velkommen til visning!
Enebolig beliggende i et attraktivt og familievennlig område på Kolbotn. Området byr på nærhet til skoler, barnehager, kollektivtransport og et godt utvalg av servicetilbud, samtidig som man har marka og flotte turområder like i nærheten. Boligen ligger i rolige omgivelser med etablert bebyggelse, og passer godt for både barnefamilier og de som ønsker en landlig, men sentrumsnær beliggenhet.
Kort fortalt:
- Stor enebolig med god takhøyde
- Bad pusset opp i 2021
- Kort vei til kollektivtransport og servicetilbud.
- Nydelig utsikt
- Flere solrike uteplasser
- Bad i alle etasjer
- Invvendige vannledninger er rør-i-rør
Velkommen til visning!
NB: Knappen for å vise hele beskrivelsen har kun en visuell effekt.
NB: Knappen for å vise hele beskrivelsen har kun en visuell effekt.
Salgsoppgaven beskriver vesentlig og lovpålagt informasjon om eiendommen
Se komplett salgsoppgaveNyttige lenker
Nærområdet
EiendomsMegler 1 Ski
Vi loser deg trygt gjennom hele boligsalget
Annonseinformasjon
| FINN-kode | 450771126 |
|---|---|
| Sist endret | 19. feb. 2026 20:38 |
| Referanse | 6038260087 |
Annonsene kan være mangelfulle i forhold til lovpålagt opplysningsplikt. Før bindende avtale inngås oppfordres interessenter til å innhente komplett informasjon fra meglerforetaket, selger eller utleier.










































































