Bildegalleri

Velkommen til Fabelveien 2! En lekker og ny 3-roms selveier fra 2023 med åpen stue- og kjøkkenløsning.
Solgt
Frogner
Nyere 3-roms (2023) med markterrasse på 20 m² | Vannbåren gulvvarme og balansert ventilasjon | Heis og kjellerbod
Prisantydning3 890 000 kr
Nøkkelinfo
- Boligtype
- Leilighet
- Eieform
- Eier (Selveier)
- Soverom
- 2
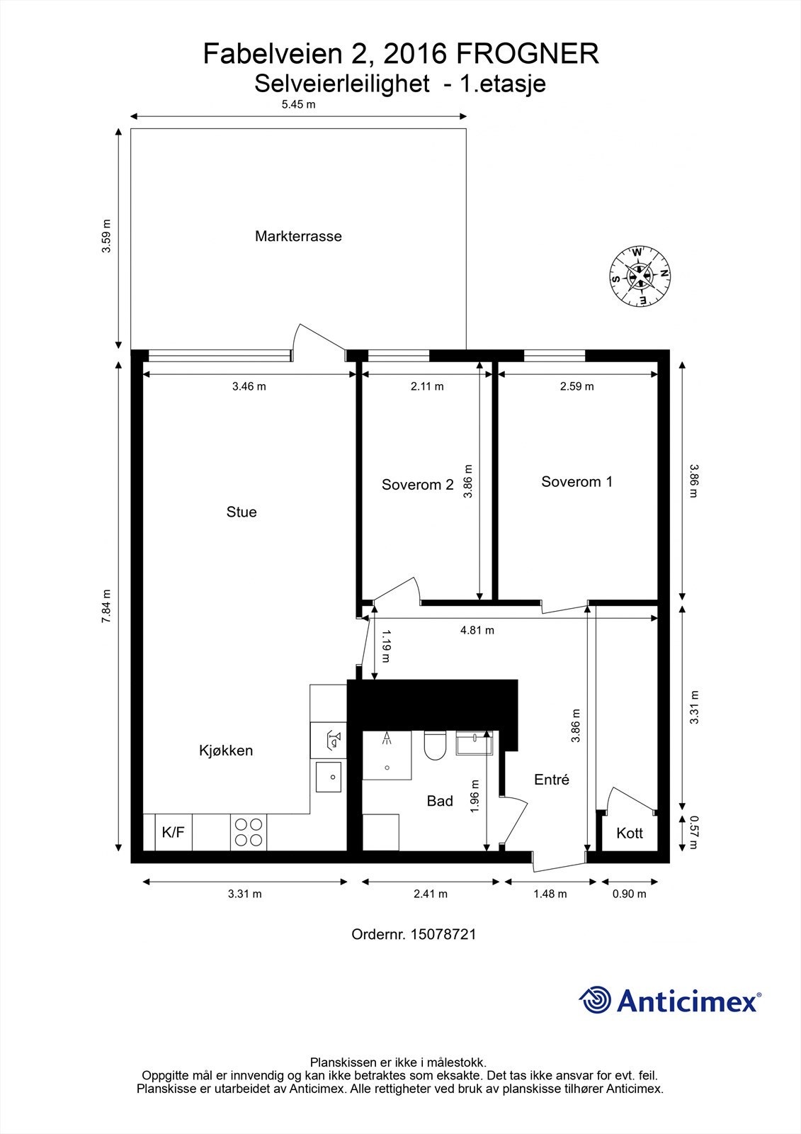
- Internt bruksareal
- 66 m² (BRA-i)
- Bruksareal
- 71 m²
- Eksternt bruksareal
- 5 m² (BRA-e)
- Balkong/Terrasse
- 20 m² (TBA)
- Etasje
- 1
- Byggeår
- 2023
- Energimerking
- B - Lysegrønn
- Rom
- 3
- Tomteareal
- 17 820 m² (eiet)
Fasiliteter
Balkong/Terrasse
Barnevennlig
Bredbåndstilknytning
Hage
Heis
Kjæledyr tillatt
Kabel-TV
Offentlig vann/kloakk
Rolig
Sentralt
Turterreng
Balansert ventilasjon
Om boligen
Velkommen til Fabelveien 2! En lekker og nyere 3-roms selveier fra 2023 med stor markterrasse.
Her bor du i et moderne og lettstelt hjem i et nyetablert boligområde på Frogner. Leiligheten har en god og arealeffektiv planløsning med åpen stue- og kjøkkenløsning, to soverom og vannbåren gulvvarme som sikrer behagelig komfort. Fra stuen er det utgang til en herlig markterrasse. Området er barnevennlig med kort vei til barnehager, skoler og offentlig kommunikasjon.
Her bor du i et moderne og lettstelt hjem i et nyetablert boligområde på Frogner. Leiligheten har en god og arealeffektiv planløsning med åpen stue- og kjøkkenløsning, to soverom og vannbåren gulvvarme som sikrer behagelig komfort. Fra stuen er det utgang til en herlig markterrasse. Området er barnevennlig med kort vei til barnehager, skoler og offentlig kommunikasjon.
- Leilighet fra 2023
- Stor markterrasse på 20 m²
- Vannbåren gulvvarme
- Kjøkken med integrerte hvitevarer
- Delikat bad med regnfallsdusj
- Heisadkomst
- Kjellerbod på 5 m²
Kontakt megler og bli med på en hyggelig visning!
NB: Knappen for å vise hele beskrivelsen har kun en visuell effekt.
NB: Knappen for å vise hele beskrivelsen har kun en visuell effekt.
Salgsoppgaven beskriver vesentlig og lovpålagt informasjon om eiendommen
Se komplett salgsoppgaveNyttige lenker
Nærområdet
Krogsveen Lillestrøm
Verdien av en god megler.
Annonseinformasjon
| FINN-kode | 450750794 |
|---|---|
| Sist endret | 02. mars 2026 12:02 |
| Referanse | KR60.2616 |
Annonsene kan være mangelfulle i forhold til lovpålagt opplysningsplikt. Før bindende avtale inngås oppfordres interessenter til å innhente komplett informasjon fra meglerforetaket, selger eller utleier.


























