Bildegalleri

Velkommen til Brenneveien 40A - Presentert av Petter Mamen-Lund ved Aktiv Asker. Foto: Einar Horsberg
Familievennlig beliggenhet på Vøyenenga
Trivelig kjedet bolig med flott opparbeidet uteområder og attraktiv beliggenhet nær marka/sentrum. Garasjeplass og lader
Prisantydning7 990 000 kr
Nøkkelinfo
- Boligtype
- Rekkehus
- Eieform
- Eier (Selveier)
- Soverom
- 4
- Internt bruksareal
- 157 m² (BRA-i)
- Bruksareal
- 163 m²
- Eksternt bruksareal
- 6 m² (BRA-e)
- Balkong/Terrasse
- 75 m² (TBA)
- Etasje
- 3
- Byggeår
- 1985
- Energimerking
- Tomteareal
- 325 m² (festet)
- Festeavgift
- 6 940 kr
Fasiliteter
Balkong/Terrasse
Barnevennlig
Bredbåndstilknytning
Garasje/P-plass
Hage
Offentlig vann/kloakk
Parkett
Peis/Ildsted
Rolig
Sentralt
Utsikt
Turterreng
Lademulighet
Visning
Ved annonsert visning er det viktig at du melder deg på visningen ved å bruke visningspåmeldingsknappen eller kontakter megler. Annonserte visninger hvor det ikke er noen påmeldte innen kl. 16.00 dagen før visningsdagen vil ikke bli avholdt.
For visninger utover dette, ta direkte kontakt med megler.
VisningspåmeldingOm boligen
Velkommen til Brenneveien 40A - Trivelig kjedet bolig med sentral beliggenhet på Vøyenenga.
Boligen har god intern beliggenhet på feltet, med flott utsikt, opparbeidede terrasseområder og gode solforhold. Området er landlig og barnevennlig, samtidig som det er kort avstand til sentrumsfasiliteter.
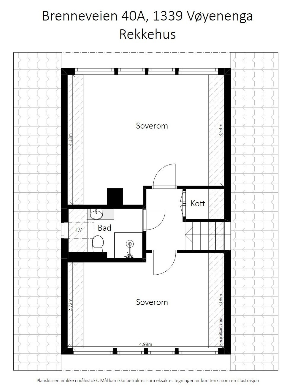
Boligen går over tre etasjer og inneholder blant annet to bad, hvorav ett er fra 2020, åpen stue- og kjøkkenløsning med 1-stavs parkett, fire soverom samt garasje i felles rekke og parkering med elbillader foran boligen.
Høydepunkter:
- Flott utsikt og gode solforhold
- Veranda og terrasse på totalt 75 kvm
- Gode solforhold og skjermet beliggenhet
- Skiløyper og turterreng i kort avstand
- Kort vei til alpinanlegg
- Kort vei til Sandvika
- Kort vei til buss/skoler/barnehager
Velkommen
Boligen har god intern beliggenhet på feltet, med flott utsikt, opparbeidede terrasseområder og gode solforhold. Området er landlig og barnevennlig, samtidig som det er kort avstand til sentrumsfasiliteter.
Boligen går over tre etasjer og inneholder blant annet to bad, hvorav ett er fra 2020, åpen stue- og kjøkkenløsning med 1-stavs parkett, fire soverom samt garasje i felles rekke og parkering med elbillader foran boligen.
Høydepunkter:
- Flott utsikt og gode solforhold
- Veranda og terrasse på totalt 75 kvm
- Gode solforhold og skjermet beliggenhet
- Skiløyper og turterreng i kort avstand
- Kort vei til alpinanlegg
- Kort vei til Sandvika
- Kort vei til buss/skoler/barnehager
Velkommen
NB: Knappen for å vise hele beskrivelsen har kun en visuell effekt.
NB: Knappen for å vise hele beskrivelsen har kun en visuell effekt.
Salgsoppgaven beskriver vesentlig og lovpålagt informasjon om eiendommen
Se komplett salgsoppgaveNærområdet
Aktiv Asker
Annonseinformasjon
| FINN-kode | 450749520 |
|---|---|
| Sist endret | 02. mars 2026 11:30 |
| Referanse | 1110260020 |
Annonsene kan være mangelfulle i forhold til lovpålagt opplysningsplikt. Før bindende avtale inngås oppfordres interessenter til å innhente komplett informasjon fra meglerforetaket, selger eller utleier.










































































