Bildegalleri

EiendomsMegler1 v/Kenneth Johansen har gleden av å presentere Osvegen 3 D! Fotograf: Jens Martin Nervik
Ranheim/Reppe
FAMILIEVENNLIG OG PENT ENDEREKKEHUS MED NYDELIGE SOL-OG UTSIKTSFORHOLD | Bad fra 2026 | Flere uteplasser | Garasje
Prisantydning4 290 000 kr
Nøkkelinfo
- Boligtype
- Rekkehus
- Eieform
- Andel
- Soverom
- 2
- Internt bruksareal
- 113 m² (BRA-i)
- Bruksareal
- 119 m²
- Eksternt bruksareal
- 6 m² (BRA-e)
- Balkong/Terrasse
- 67 m² (TBA)
- Byggeår
- 1976
- Energimerking
- E - Oransje
- Rom
- 3
- Tomteareal
- 11 414 m² (eiet)
Fasiliteter
Barnevennlig
Balkong/Terrasse
Garasje/P-plass
Kabel-TV
Offentlig vann/kloakk
Peis/Ildsted
Turterreng
Utsikt
Sentralt
Bredbåndstilknytning
Moderne
Rolig
Balansert ventilasjon
Om boligen
EiendomsMegler1 ved Kenneth Johansen har gleden av å presentere Osvegen 3 D!
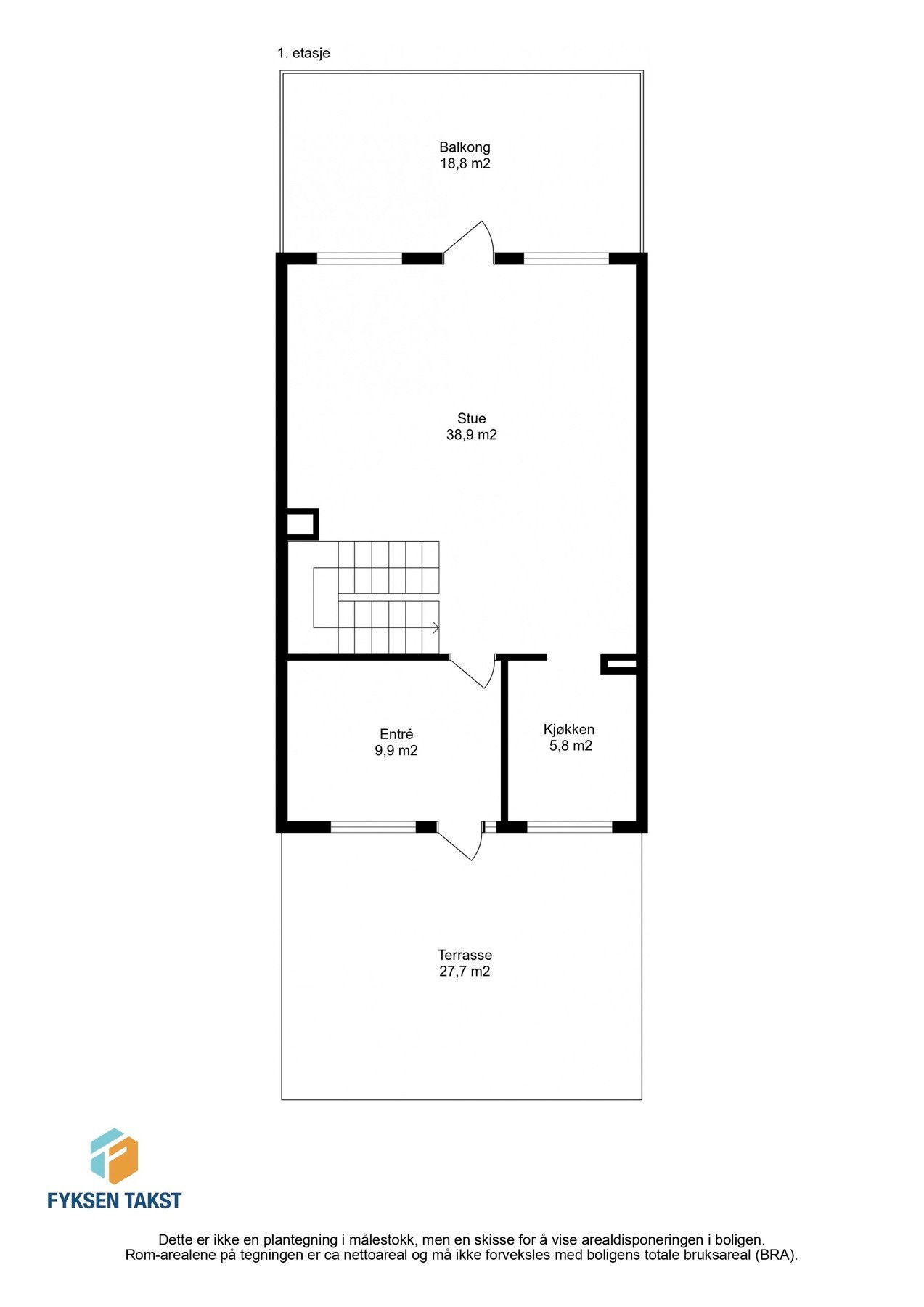
Nå har du muligheten til å sikre deg et innholdsrikt enderekkehus over to plan med en svært attraktivt beliggenhet i Ranheimshøgda borettslag. Boligen byr på tre flotte uteplasser og en vidstrakt utsikt mot både Trondheimsfjorden og Fosenalpene. Planløsningen oppleves romslig og familievennlig, med en stor stue på hele 38,9 m² som gir svært gode møbleringsmuligheter, samt et lekkert kjøkken fra 2019 med integrerte hvitevarer. Videre finner du et nytt og lekkert bad fra 2026, separat toalettrom og eget vaskerom, flere gode soverom og gode lagringsmuligheter i både innvendige boder og utvendig bod. Beliggenheten er barnevennlig med kort vei til både marka og sjøen, i borettslaget er det dessuten 2 lekeplasser og en ballbinge. Fra eiendommen er det kun ca. 12 minutters kjøring til Trondheim sentrum, og bussholdeplass ligger like i nærheten. Boligen sokner til Vikåsen barneskole og Markaplassen ungdomsskole.
Av flere kvaliteter kan man trekke frem:
Velkommen til en hyggelig visning!
Nå har du muligheten til å sikre deg et innholdsrikt enderekkehus over to plan med en svært attraktivt beliggenhet i Ranheimshøgda borettslag. Boligen byr på tre flotte uteplasser og en vidstrakt utsikt mot både Trondheimsfjorden og Fosenalpene. Planløsningen oppleves romslig og familievennlig, med en stor stue på hele 38,9 m² som gir svært gode møbleringsmuligheter, samt et lekkert kjøkken fra 2019 med integrerte hvitevarer. Videre finner du et nytt og lekkert bad fra 2026, separat toalettrom og eget vaskerom, flere gode soverom og gode lagringsmuligheter i både innvendige boder og utvendig bod. Beliggenheten er barnevennlig med kort vei til både marka og sjøen, i borettslaget er det dessuten 2 lekeplasser og en ballbinge. Fra eiendommen er det kun ca. 12 minutters kjøring til Trondheim sentrum, og bussholdeplass ligger like i nærheten. Boligen sokner til Vikåsen barneskole og Markaplassen ungdomsskole.
Av flere kvaliteter kan man trekke frem:
- Kort vei til skoler, barnehager, marka, turområder, sjøen og gode kollektivforbindelser
- Installasjon av balansert ventilasjon, samt oppgradering av tak, vinduer, veranda og terrasse i 2015/2016
- Lyst og lekkert kjøkken fra 2019 med integrerte hvitevarer og mye skap- og benkeplass
- Nytt og lekkert bad fra 2026, separat toalettrom og eget vaskerom
- Rør-i-rør system ble etablert til bad, kjøkken og toalett i 2026
- Flere flotte uteplasser med fantastiske sol- og utsiktsforhold
- Stor stue på 38,9 m² med svært gode møbleringsmuligheter
- Flere gode soverom og rikelig med lagringsplass
- Garasjeplass med mulighet for elbillader
Velkommen til en hyggelig visning!
NB: Knappen for å vise hele beskrivelsen har kun en visuell effekt.
NB: Knappen for å vise hele beskrivelsen har kun en visuell effekt.
Salgsoppgaven beskriver vesentlig og lovpålagt informasjon om eiendommen
Se komplett salgsoppgaveNyttige lenker
Nærområdet
EiendomsMegler 1 Grilstadporten
Vi loser deg trygt gjennom hele boligsalget
Annonsene kan være mangelfulle i forhold til lovpålagt opplysningsplikt. Før bindende avtale inngås oppfordres interessenter til å innhente komplett informasjon fra meglerforetaket, selger eller utleier.
































































