Bildegalleri

Velkommen til Solbakken 31 - Presenteres av EiendomsMegler 1 | Helge Stangeland. Fotograf Truls Schaal
Sandved
Stor familiebolig m/utsikt, garasje og fin uteplass. 3 soverom og 2 nyere bad. Mulighet for hybel. Barnevennlig område
Prisantydning7 490 000 kr
Nøkkelinfo
- Boligtype
- Enebolig
- Eieform
- Eier (Selveier)
- Soverom
- 3
- Internt bruksareal
- 202 m² (BRA-i)
- Bruksareal
- 226 m²
- Eksternt bruksareal
- 24 m² (BRA-e)
- Balkong/Terrasse
- 37 m² (TBA)
- Etasje
- 2
- Byggeår
- 1974
- Energimerking
- D - Gul
- Rom
- 5
- Tomteareal
- 961 m² (eiet)
Visning
onsdag, 04. mars
17:00 – 18:00
Ønsker du å delta på visningen ber vi deg melde deg på slik at vi vet at du kommer. Da kan vi bistå alle best mulig og gi deg tiden du trenger på visningen. Kontakt gjerne megler før visning hvis du har spørsmål. Visningen avholdes bare dersom det er påmeldte. Hvis det ikke er oppsatt visningstidspunkt eller tidspunkt ikke passer, kontakt megler.
VisningspåmeldingOm boligen
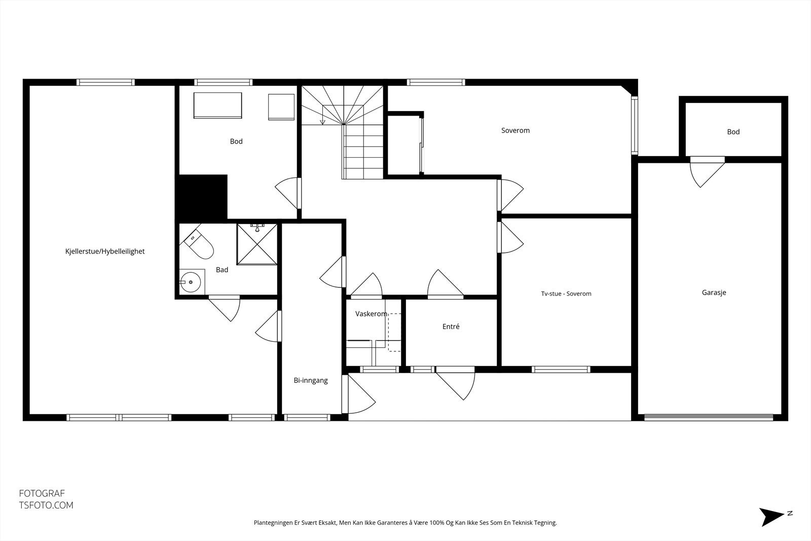
Solbakken 31 er en innholdsrik enebolig over to plan; et fleksibelt familiehjem med to bad, to stuer og 3 soverom. Mulighetene er mange, og om ønskelig kan man etablere en hybel i u.etasjen. Her bor man trygt og rolig, i et barnevennlig område med gåavstand til skole, dagligvare og lekeplasser. Tomten går over flere nivåer, og høyt plassert i terrenget har boligen god utsikt mot fjell i det fjerne. Stuen forlenges av en romslig terrasse med levegg og utepeis.
I stuen er det vedovn og store vinduer, der ulike soner inkluderer et fint kjøkken med barløsning, mye oppbevaring og gode arbeidsflater. Badene er praktisk plassert i hver sin etasje, og både badene og et separat wc-rom ble pusset opp i 2021. Videre har boligen et eget vaskerom, et steinlagt gårdsrom og en garasje med elbillader.
I stuen er det vedovn og store vinduer, der ulike soner inkluderer et fint kjøkken med barløsning, mye oppbevaring og gode arbeidsflater. Badene er praktisk plassert i hver sin etasje, og både badene og et separat wc-rom ble pusset opp i 2021. Videre har boligen et eget vaskerom, et steinlagt gårdsrom og en garasje med elbillader.
NB: Knappen for å vise hele beskrivelsen har kun en visuell effekt.
NB: Knappen for å vise hele beskrivelsen har kun en visuell effekt.
Salgsoppgaven beskriver vesentlig og lovpålagt informasjon om eiendommen
Se komplett salgsoppgaveNyttige lenker
Nærområdet
EiendomsMegler 1 Sandnes
En del av Sparebank 1 Sør-Norge
Annonseinformasjon
| FINN-kode | 450462069 |
|---|---|
| Sist endret | 20. feb. 2026 19:16 |
| Referanse | 2301260029 |
Annonsene kan være mangelfulle i forhold til lovpålagt opplysningsplikt. Før bindende avtale inngås oppfordres interessenter til å innhente komplett informasjon fra meglerforetaket, selger eller utleier.








































