Bildegalleri

DNB Eiendom har gleden av å invitere deg til Nordahlvegen 92; En fin bolig med alle rom man trenger på en flate
Bekkelaget
Enebolig i barnevennlig område med mjøsutsikt! Alle rom man trenger i hverdagen på hovedplan.
Prisantydning4 400 000 kr
Nøkkelinfo
- Boligtype
- Enebolig
- Eieform
- Selveier
- Soverom
- 3
- Internt bruksareal
- 116 m² (BRA-i)
- Bruksareal
- 121 m²
- Eksternt bruksareal
- 5 m² (BRA-e)
- Balkong/Terrasse
- 48 m² (TBA)
- Etasje
- 2
- Byggeår
- 1994
- Energimerking
- Rom
- 4
- Tomteareal
- 549 m² (eiet)
Fasiliteter
Balkong/Terrasse
Barnevennlig
Bredbåndstilknytning
Garasje/P-plass
Hage
Kabel-TV
Offentlig vann/kloakk
Parkett
Peis/Ildsted
Rolig
Sentralt
Utsikt
Turterreng
Visning
torsdag, 09. april
16:30 – 17:30
Velkommen til visning! Meld deg på ved å trykke "visningspåmelding" i våre boligannonser. Ta gjerne kontakt med megler i forkant av visningen om du har spørsmål eller ønsker en tilpasset visning.
VisningspåmeldingOm boligen
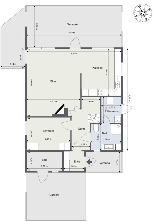
Fin bolig med en god planløsning oppført i 1994. Boligen inneholder soverom, stue åpent mot kjøkken, bad og vaskerom i 1.etg., samt loftstue, toalettrom og to soverom i 2.etg. Stor, vestvendt terrasse og balkong. Carport/bod ved inngangsparti.
Eiendommen ligger i et rolig og etablert boligområde med gode vilkår for barn. Blindvei uten gjennomgangstrafikk. Boligen ligger høyt og vestvendt med flott utsikt mot Hamar og Mjøsa, samt Helgøya og Tingnes. Meget gode solforhold.
Liten, velstelt hage som vender mot vest. Romslig overbygget balkong med adkomst fra TV-stue i 2.etg. Skjermet vestvendt terrasse med utgang fra stue.
Rett ved Arstad barneskole, Ottestad Ungdomsskole, Steinerskolen og Ottestadhallen. Ottestadstien ligger i umiddelbar nærhet og tar deg til fine strender langs Mjøsa.
Eiendommen ligger i et rolig og etablert boligområde med gode vilkår for barn. Blindvei uten gjennomgangstrafikk. Boligen ligger høyt og vestvendt med flott utsikt mot Hamar og Mjøsa, samt Helgøya og Tingnes. Meget gode solforhold.
Liten, velstelt hage som vender mot vest. Romslig overbygget balkong med adkomst fra TV-stue i 2.etg. Skjermet vestvendt terrasse med utgang fra stue.
Rett ved Arstad barneskole, Ottestad Ungdomsskole, Steinerskolen og Ottestadhallen. Ottestadstien ligger i umiddelbar nærhet og tar deg til fine strender langs Mjøsa.
NB: Knappen for å vise hele beskrivelsen har kun en visuell effekt.
NB: Knappen for å vise hele beskrivelsen har kun en visuell effekt.
Salgsoppgaven beskriver vesentlig og lovpålagt informasjon om eiendommen
Se komplett salgsoppgaveNyttige lenker
Nærområdet
DNB Eiendom AS
Verdifulle salg
Annonseinformasjon
| FINN-kode | 450444019 |
|---|---|
| Sist endret | 26. mars 2026 14:48 |
| Referanse | 504260026 |
Annonsene kan være mangelfulle i forhold til lovpålagt opplysningsplikt. Før bindende avtale inngås oppfordres interessenter til å innhente komplett informasjon fra meglerforetaket, selger eller utleier.
























































