Bildegalleri

Velkommen til Fallanveien 4D - Romslig enebolig med nydelig beliggenhet på Kjelsås! Foto: Hanne Bruland/FotoHanne
Solgt
Kjelsås m/utsikt mot Maridalsvannet
Nydelig belliggende enebolig i rolig blindgate med utsikt og svært gode solforhold. Dobbel garasje. Elbillader. Markanær
Prisantydning19 800 000 kr
Nøkkelinfo
- Boligtype
- Enebolig
- Eieform
- Selveier
- Soverom
- 4
- Internt bruksareal
- 253 m² (BRA-i)
- Bruksareal
- 289 m²
- Eksternt bruksareal
- 36 m² (BRA-e)
- Balkong/Terrasse
- 57 m² (TBA)
- Byggeår
- 1987
- Energimerking
- Tomteareal
- 681 m² (eiet)
Fasiliteter
Alpinanlegg
Balkong/Terrasse
Barnevennlig
Garasje/P-plass
Hage
Peis/Ildsted
Rolig
Utsikt
Turterreng
Lademulighet
Om boligen
Meget flott beliggende enebolig i populær gate med gangavstand til marka, Kjelsås skole, matbutikker og holdeplass for trikk, buss og tog. Fra huset er det nydelig utsikt mot Maridalsvannet og mot Maridalsalpene. Meget gode solforhold og fint uteområde.
Velholdt hus oppført i ´87 med god planløsning. U.etasje med vindfang/hall, 3 soverom, stor bod/hobbyrom, bad, wc, badstue, vaskerom. Mulig å etablere hybel.
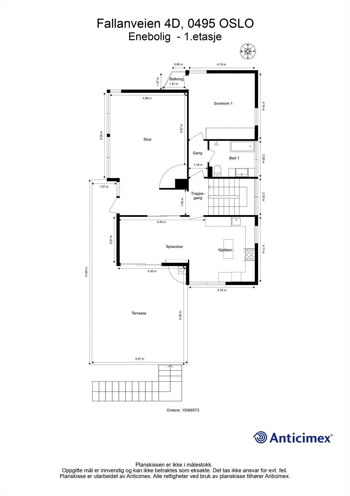
1.etasjen har stor stue, hovedsoverom, bad og et herlig kjøkken/spisestue med peis og utgang til fantastisk terrasse.
Loftsetasjen er innredet med loftstue, kontor og lagringsrom.
Garasje m/elbillader og lagringsplass
Ny asfalt på gårdsplassen i 2025, nytt sikringsskap samt renovert terrasse+garasje i 2023.
Boligen holder normal standard og noe oppgraderinger må påregnes.
Velkommen
Velholdt hus oppført i ´87 med god planløsning. U.etasje med vindfang/hall, 3 soverom, stor bod/hobbyrom, bad, wc, badstue, vaskerom. Mulig å etablere hybel.
1.etasjen har stor stue, hovedsoverom, bad og et herlig kjøkken/spisestue med peis og utgang til fantastisk terrasse.
Loftsetasjen er innredet med loftstue, kontor og lagringsrom.
Garasje m/elbillader og lagringsplass
Ny asfalt på gårdsplassen i 2025, nytt sikringsskap samt renovert terrasse+garasje i 2023.
Boligen holder normal standard og noe oppgraderinger må påregnes.
Velkommen
NB: Knappen for å vise hele beskrivelsen har kun en visuell effekt.
NB: Knappen for å vise hele beskrivelsen har kun en visuell effekt.
Salgsoppgaven beskriver vesentlig og lovpålagt informasjon om eiendommen
Se komplett salgsoppgaveNyttige lenker
Nærområdet
Krogsveen Grefsen
Verdien av en god megler.
Annonseinformasjon
| FINN-kode | 450320385 |
|---|---|
| Sist endret | 23. mars 2026 16:39 |
| Referanse | KR41.2529 |
Annonsene kan være mangelfulle i forhold til lovpålagt opplysningsplikt. Før bindende avtale inngås oppfordres interessenter til å innhente komplett informasjon fra meglerforetaket, selger eller utleier.

































































