Bildegalleri

Velkommen til denne innbydende og flotte sentrums leiligheten med gode leieinntekter. Presentert av Eiendomsmegler Christoffer Ryan
Sentrum
BUD MOTTATT - Stor, fin og sentrumsnær halvpart av tomannsbolig i søndre sentrum | Gode leieinntekter | 2 park. plass
Prisantydning6 900 000 kr
Nøkkelinfo
- Boligtype
- Tomannsbolig
- Eieform
- Eier (Selveier)
- Soverom
- 4
- Internt bruksareal
- 131 m² (BRA-i)
- Bruksareal
- 131 m²
- Etasje
- 2
- Byggeår
- 1928
- Energimerking
- Rom
- 6
- Tomteareal
- 286 m² (eiet)
Fasiliteter
Barnevennlig
Bredbåndstilknytning
Garasje/P-plass
Kjæledyr tillatt
Offentlig vann/kloakk
Parkett
Rolig
Sentralt
Visning
Vi ønsker visninger med høyest mulig servicegrad og forutsigbarhet. Derfor har vi alltid påmelding til visning. Meld deg på visning via lenken Visningspåmelding eller kontakt meg på tlf. eller e-post for å avtale tidspunkt. Visninger uten påmeldte deltagere vil bli avlyst.
VisningspåmeldingOm boligen
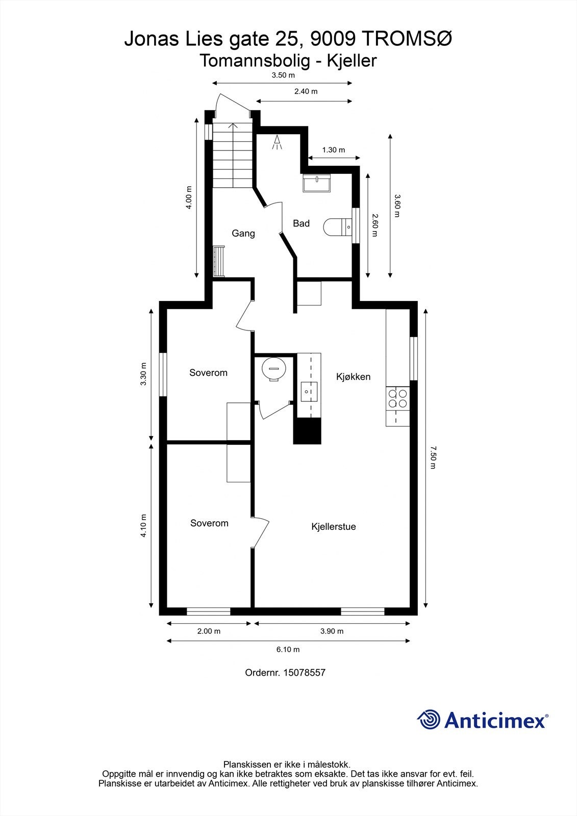
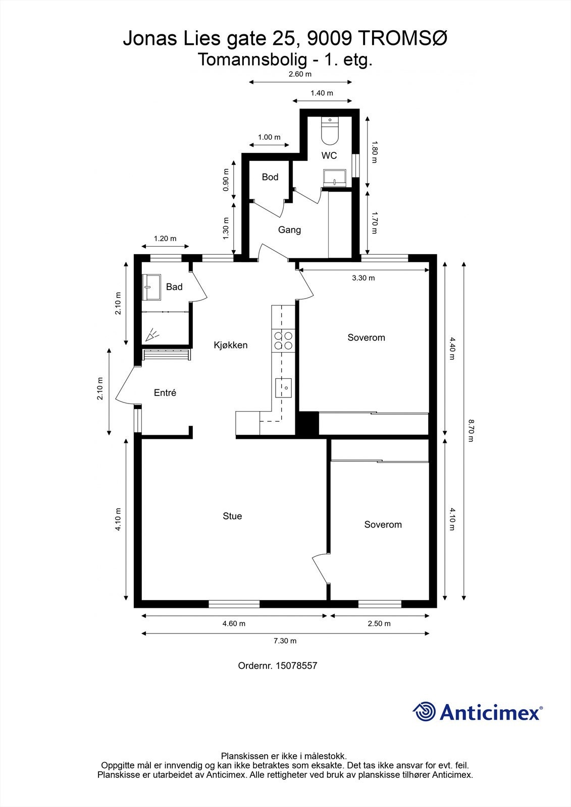
Stor og innholdsrik eierseksjon i hovedetasjen + utleieareal i underetasjen med egen inngang.
Sentral og fin beliggenhet i ei rolig og lite trafikkert gate i søndre del av Tromsø sentrum, med kort vei til alle sentrumsfasiliteter.
Seksjonen holder fin standard og har pent materialvalg, modernisert over tid -i all hovedsak ca 2019, samt omfattende arbeid i 2025 for godkjent bruk i underetasjen.
Her har du muligheten til ha et gunstig hushold da boligen er strukturert på en måte som gir gode leieinntekter (3-roms i. u. etasje) samtidig som du selv bor i en praktisk 3-roms i hovedetasjen.
I dag leies hovedleiligheten ut på korttidsutleie (opplyst est. kr. 430 000 490 000 pr år) og det i tillegg er langtidsleie på ca.kr 18 200 pr. mnd på leiligheten i u.etg.
2 parkeringsplasser.
Sentral og fin beliggenhet i ei rolig og lite trafikkert gate i søndre del av Tromsø sentrum, med kort vei til alle sentrumsfasiliteter.
Seksjonen holder fin standard og har pent materialvalg, modernisert over tid -i all hovedsak ca 2019, samt omfattende arbeid i 2025 for godkjent bruk i underetasjen.
Her har du muligheten til ha et gunstig hushold da boligen er strukturert på en måte som gir gode leieinntekter (3-roms i. u. etasje) samtidig som du selv bor i en praktisk 3-roms i hovedetasjen.
I dag leies hovedleiligheten ut på korttidsutleie (opplyst est. kr. 430 000 490 000 pr år) og det i tillegg er langtidsleie på ca.kr 18 200 pr. mnd på leiligheten i u.etg.
2 parkeringsplasser.
NB: Knappen for å vise hele beskrivelsen har kun en visuell effekt.
NB: Knappen for å vise hele beskrivelsen har kun en visuell effekt.
Salgsoppgaven beskriver vesentlig og lovpålagt informasjon om eiendommen
Se komplett salgsoppgaveNærområdet
Hjem Eiendomsmegling
Annonseinformasjon
| FINN-kode | 450264706 |
|---|---|
| Sist endret | 18. mars 2026 07:59 |
| Referanse | 1-0015/26 |
Annonsene kan være mangelfulle i forhold til lovpålagt opplysningsplikt. Før bindende avtale inngås oppfordres interessenter til å innhente komplett informasjon fra meglerforetaket, selger eller utleier.













































