Bildegalleri

DNB Eiendom v/Lucie Tran og Tim N. Sollien har gleden av å presentere Vilbergkroken 34.
Eidsvoll
Moderne enderekkehus fra 2022 - Carport - Barnevennlig område - Nærhet til sentrum
Prisantydning4 200 000 kr
Nøkkelinfo
- Boligtype
- Rekkehus
- Eieform
- Eier (Selveier)
- Soverom
- 3
- Internt bruksareal
- 109 m² (BRA-i)
- Bruksareal
- 115 m²
- Eksternt bruksareal
- 6 m² (BRA-e)
- Etasje
- 2
- Byggeår
- 2022
- Energimerking
- Tomteareal
- 5 901 m² (eiet)
Fasiliteter
Balkong/Terrasse
Barnevennlig
Garasje/P-plass
Kjæledyr tillatt
Offentlig vann/kloakk
Parkett
Peis/Ildsted
Rolig
Sentralt
Turterreng
Balansert ventilasjon
Visning
Velkommen til visning! Meld deg på ved å trykke "visningspåmelding" i våre boligannonser. Visning med megler til stede vil ikke bli avholdt uten påmeldinger. Ta gjerne kontakt med megler i forkant av visningen om du har spørsmål.
VisningspåmeldingOm boligen
Dette er et flott og moderne rekkehus fra 2022 som strekker seg over to plan. Boligen ligger i et rolig og barnevennlig område med kort vei til barnehager, skoler i alle trinn og fritidsaktiviteter. I Sundet finner du dagligvare og en rekke servicetilbud. Kort vei til både Råholt og Jessheim. Hyppige togavganger fra Eidsvoll Stasjon mot Oslo.
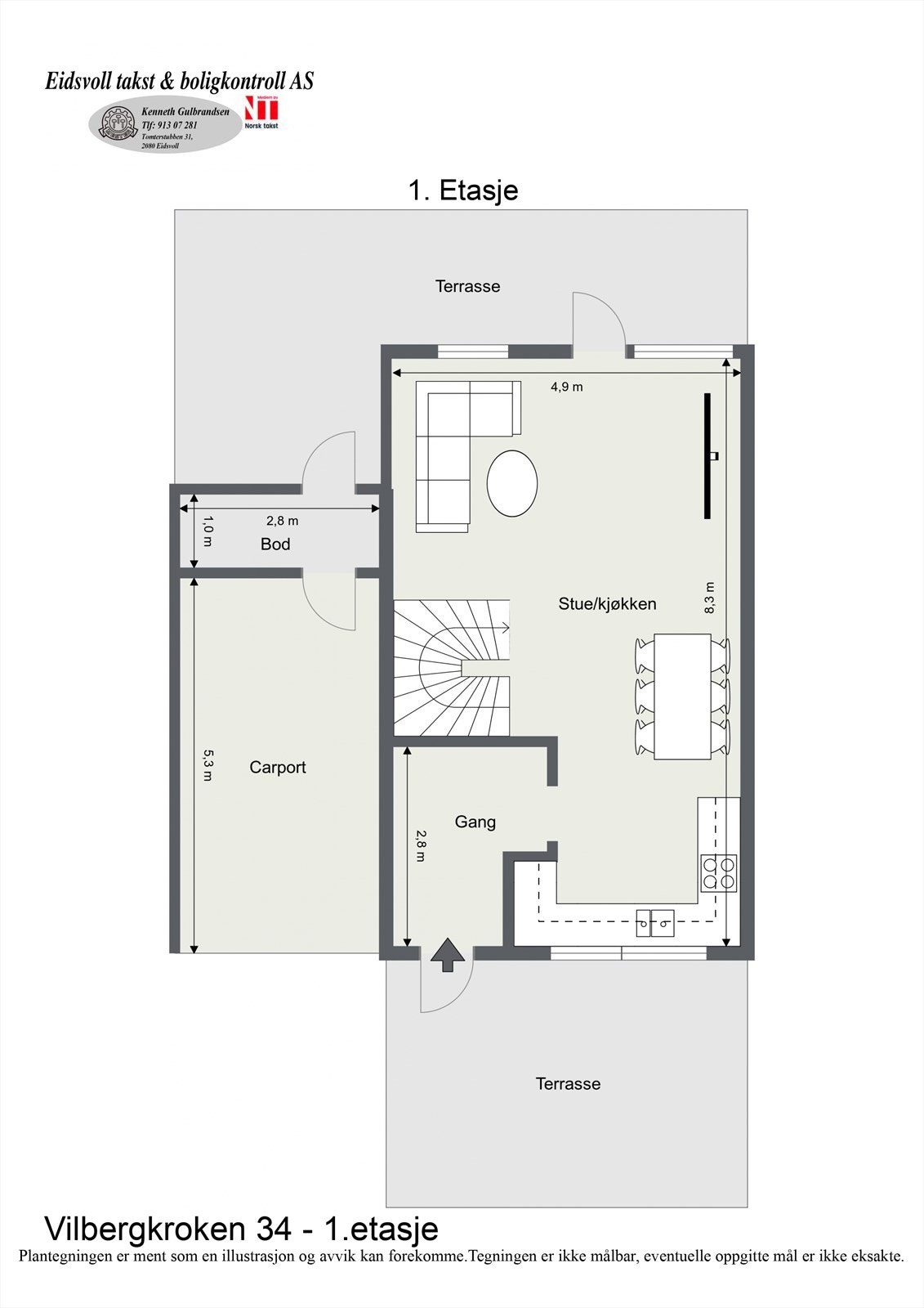
Rekkehuset består av:
1.etg: Entré, stue/kjøkken
2.etg: Tre soverom, loftstue og bad/vaskerom.
Parkering i carport og lagringsplass i sportsbod.
Rekkehuset består av:
1.etg: Entré, stue/kjøkken
2.etg: Tre soverom, loftstue og bad/vaskerom.
Parkering i carport og lagringsplass i sportsbod.
NB: Knappen for å vise hele beskrivelsen har kun en visuell effekt.
NB: Knappen for å vise hele beskrivelsen har kun en visuell effekt.
Salgsoppgaven beskriver vesentlig og lovpålagt informasjon om eiendommen
Se komplett salgsoppgaveNyttige lenker
Nærområdet
DNB Eiendom AS
Verdifulle salg
Annonseinformasjon
| FINN-kode | 449417469 |
|---|---|
| Sist endret | 03. mars 2026 08:36 |
| Referanse | 302260023 |
Annonsene kan være mangelfulle i forhold til lovpålagt opplysningsplikt. Før bindende avtale inngås oppfordres interessenter til å innhente komplett informasjon fra meglerforetaket, selger eller utleier.































