Bildegalleri

Velkommen til Bykronen! Leiligheten ligger i toppen på B2, vendt mot vest
Bykronen: Bo øverst med sol og utsikt mot Rudlå
Prisantydning16 000 000 kr
Nøkkelinfo
- Boligtype
- Leilighet
- Eieform
- Eier (Selveier)
- Soverom
- 2
- Internt bruksareal
- 96 m² (BRA-i)
- Bruksareal
- 104 m²
- Eksternt bruksareal
- 8 m² (BRA-e)
- Balkong/Terrasse
- 43 m² (TBA)
- Etasje
- 6
- Byggeår
- 2025
- Energimerking
- C - Mørkegrønn
- Rom
- 3
- Tomt
- Eiet
Fasiliteter
Takterrasse
Balkong/Terrasse
Bredbåndstilknytning
Garasje/P-plass
Heis
Ingen gjenboere
Kabel-TV
Offentlig vann/kloakk
Parkett
Sentralt
Utsikt
Vaktmester-/vektertjeneste
Lademulighet
Balansert ventilasjon
Visning
Velkommen til visning! Meld deg på ved å trykke "visningspåmelding" i våre boligannonser.
VisningspåmeldingOm boligen
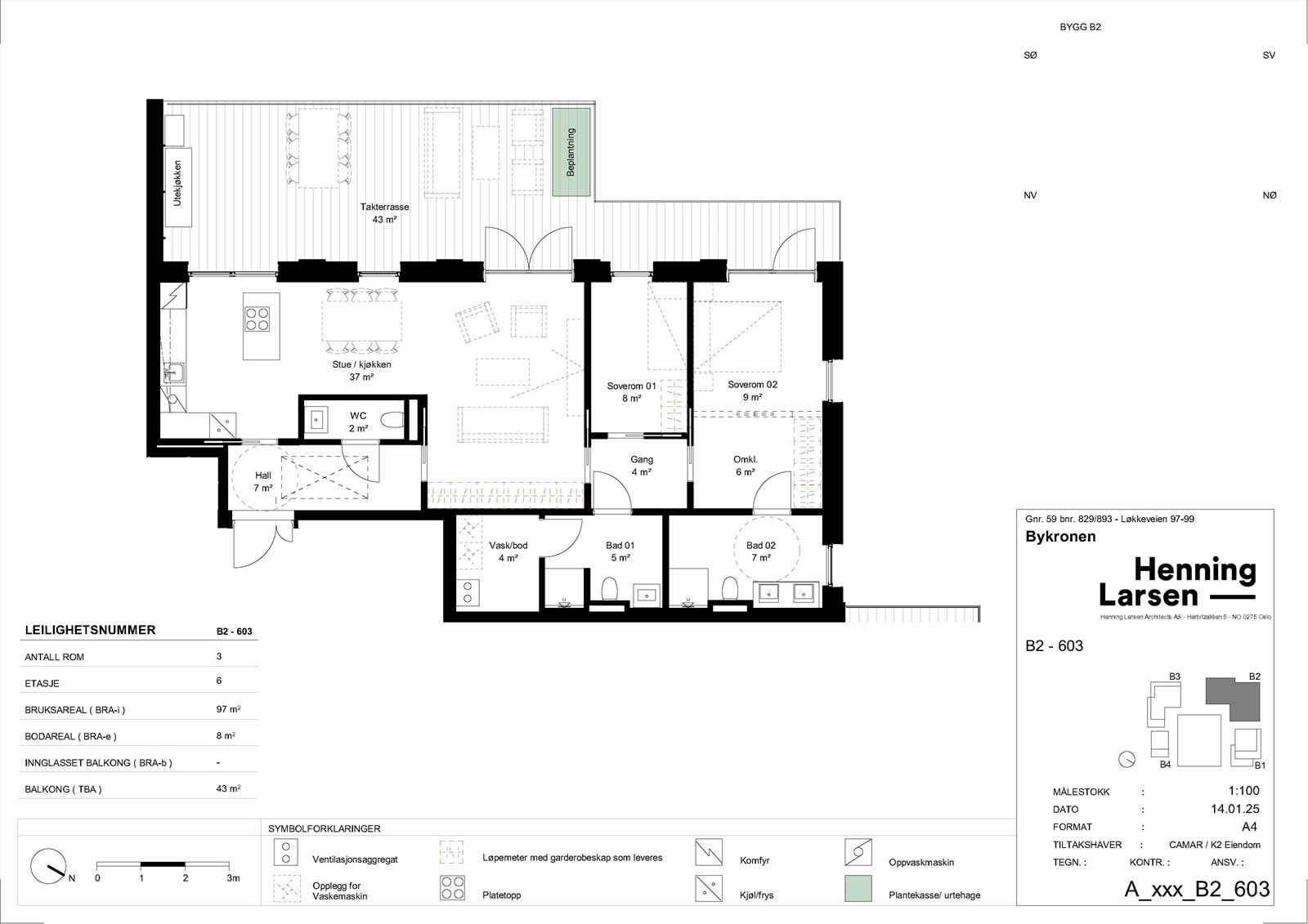
Denne leiligheten befinner seg på toppen av bygg B2, og har formidabel utsikt mot Vestre Platå og Bjergsted. Privat takterrasse på hele 43 m².
Innhold: Hall, gjeste-wc, stue/ kjøkken med tilkomst til takterrassen på 43 kvm, soverom, bad med tilkomst til vaskerom/ bod, hovedsoverom med tilkomst til bad.
- Eikespiler i tak i stue/ kjøkken og takvindu i entré.
-Leveranse til kjøkken og bad er levert av Svane Kjøkkenet og er utstyrt med eksklusive hvitevarer fra Gaggenau. Deriblant Quooker, kran med kokende vann.
- Vannbåren gulvvarme i stue, kjøkken, gang/hall, bad og vaskerom.
- 1-stavs eikeparkett
- Takhøyde fra 2,70 3,10 m.
- Sportsbod i underetasjen
1 parkeringsplass er inkludert.
Se mer info på prosjektets hjemmeside: https://bykronen.no/
Innhold: Hall, gjeste-wc, stue/ kjøkken med tilkomst til takterrassen på 43 kvm, soverom, bad med tilkomst til vaskerom/ bod, hovedsoverom med tilkomst til bad.
- Eikespiler i tak i stue/ kjøkken og takvindu i entré.
-Leveranse til kjøkken og bad er levert av Svane Kjøkkenet og er utstyrt med eksklusive hvitevarer fra Gaggenau. Deriblant Quooker, kran med kokende vann.
- Vannbåren gulvvarme i stue, kjøkken, gang/hall, bad og vaskerom.
- 1-stavs eikeparkett
- Takhøyde fra 2,70 3,10 m.
- Sportsbod i underetasjen
1 parkeringsplass er inkludert.
Se mer info på prosjektets hjemmeside: https://bykronen.no/
NB: Knappen for å vise hele beskrivelsen har kun en visuell effekt.
NB: Knappen for å vise hele beskrivelsen har kun en visuell effekt.
Salgsoppgaven beskriver vesentlig og lovpålagt informasjon om eiendommen
Se komplett salgsoppgaveNyttige lenker
Nærområdet
DNB Eiendom AS
Fra hjem til hjem
Annonseinformasjon
| FINN-kode | 448657060 |
|---|---|
| Sist endret | 30. jan. 2026 10:22 |
| Referanse | 663240228 |
Annonsene kan være mangelfulle i forhold til lovpålagt opplysningsplikt. Før bindende avtale inngås oppfordres interessenter til å innhente komplett informasjon fra meglerforetaket, selger eller utleier.




























