Bildegalleri

Velkommen til Sørtorvmyran 24 b presentert av eiendomemegler Eirik jakobsen. Foto EFKT.
Medkila
Pen og praktisk halvpart av tomannsbolig i populært strøk, renovert fasade i 2021 og barnevennlig område. Solrikt!
Prisantydning2 500 000 kr
Nøkkelinfo
- Boligtype
- Tomannsbolig
- Eieform
- Andel
- Soverom
- 3
- Internt bruksareal
- 72 m² (BRA-i)
- Bruksareal
- 75 m²
- Eksternt bruksareal
- 3 m² (BRA-e)
- Balkong/Terrasse
- 13 m² (TBA)
- Byggeår
- 1987
- Energimerking
- D - Gul
- Rom
- 4
- Tomteareal
- 3 507 m² (eiet)
Fasiliteter
Barnevennlig
Balkong/Terrasse
Offentlig vann/kloakk
Peis/Ildsted
Turterreng
Utsikt
Visning
tirsdag, 03. februar
17:00 – 18:00
Alle våre visninger har påmelding. Dette for at vi kan planlegge visningene best mulig, og ha god tid til de som kommer. Det er enkelt å melde seg på, og du kan like enkelt melde deg av. Visninger uten påmeldte deltakere kan bli avlyst.
Om boligen
Velkommen til Sørtorvmyran 24 - presentert av Eiendomsmegler Eirik Jakobsen i EiendomsMegler 1!
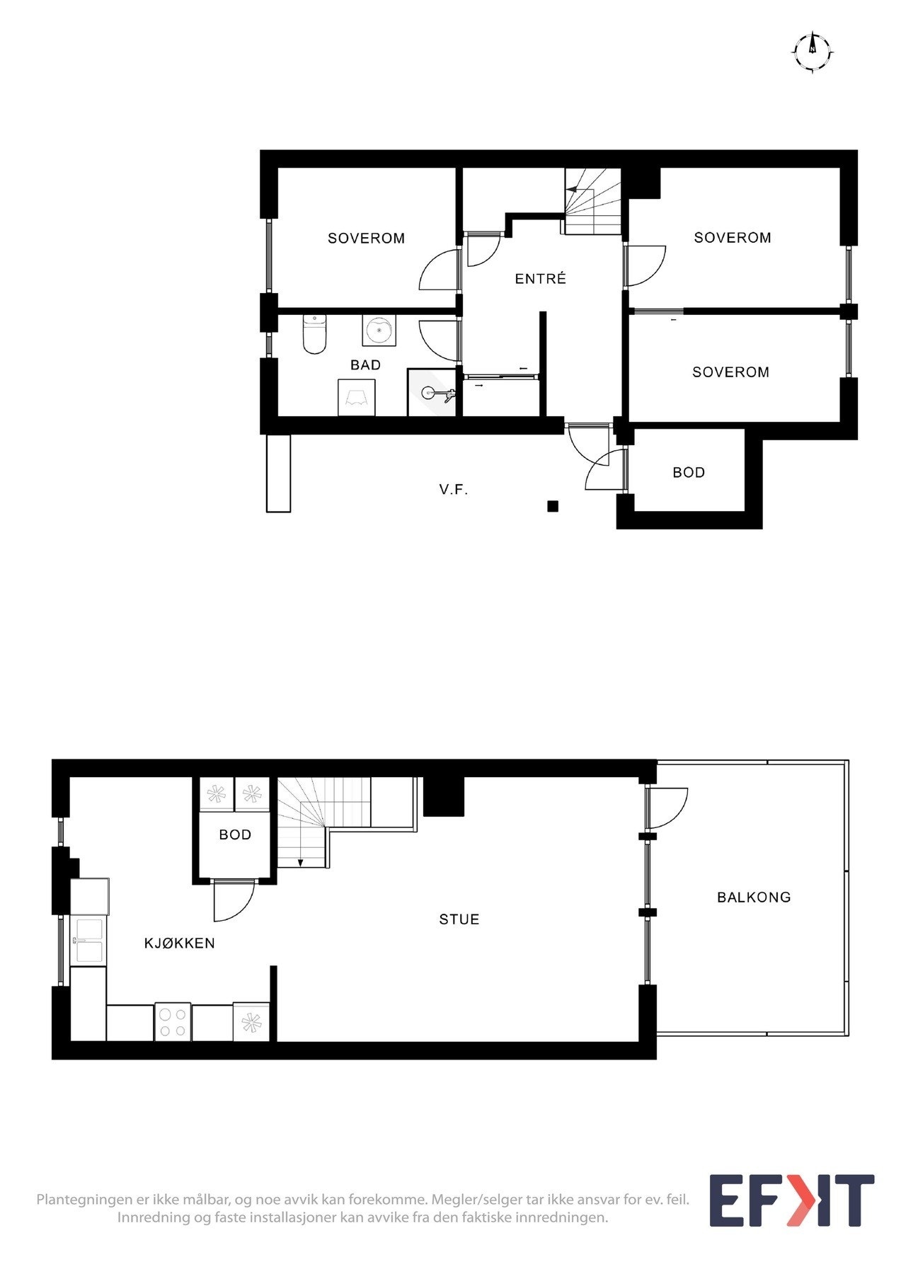
Nå selges en moderne innredet leilighet i tomannsbolig beliggende i Sørtorvmyran. Boligen fremstår lys og moderne med smarte løsninger. Den er vertikaldelt og i to plan. Nede er det 3 soverom, gang og bad. Originalt er det bare 2 soverom, men det ene soverommet er bygget om til 2. Oppe er det stue, kjøkken og bod og utgang til stor veranda.
Området er populært for alle aldersgrupper og består i dag av både unge barnefamilier og voksne beboere. Her får du supre uteområder med friareal til benyttelse like ved boligen. Friarealet er dels opparbeidet med parkering og grøntområde. Du får gode solforhold gjennom hele dagen og frem til ca 2200 på kvelden.
Boligen har god planløsning og fin intern beliggenhet i enden av rekken av tomannsboliger i feltet.
Det er gangavstand til skole, barnehage, dagligvarebutikk, treningssenter m.m. Nydelige turområder og meget gode bussforbindelser.
Nå selges en moderne innredet leilighet i tomannsbolig beliggende i Sørtorvmyran. Boligen fremstår lys og moderne med smarte løsninger. Den er vertikaldelt og i to plan. Nede er det 3 soverom, gang og bad. Originalt er det bare 2 soverom, men det ene soverommet er bygget om til 2. Oppe er det stue, kjøkken og bod og utgang til stor veranda.
Området er populært for alle aldersgrupper og består i dag av både unge barnefamilier og voksne beboere. Her får du supre uteområder med friareal til benyttelse like ved boligen. Friarealet er dels opparbeidet med parkering og grøntområde. Du får gode solforhold gjennom hele dagen og frem til ca 2200 på kvelden.
Boligen har god planløsning og fin intern beliggenhet i enden av rekken av tomannsboliger i feltet.
Det er gangavstand til skole, barnehage, dagligvarebutikk, treningssenter m.m. Nydelige turområder og meget gode bussforbindelser.
NB: Knappen for å vise hele beskrivelsen har kun en visuell effekt.
NB: Knappen for å vise hele beskrivelsen har kun en visuell effekt.
Salgsoppgaven beskriver vesentlig og lovpålagt informasjon om eiendommen
Se komplett salgsoppgaveNyttige lenker
Nærområdet
EiendomsMegler 1 Harstad
Vi loser deg trygt gjennom hele boligsalget
Annonsene kan være mangelfulle i forhold til lovpålagt opplysningsplikt. Før bindende avtale inngås oppfordres interessenter til å innhente komplett informasjon fra meglerforetaket, selger eller utleier.




























