Bildegalleri

Velkommen til Fullriggervegen 2 presentert av EiendomsMegle1 v/Jarl Tjelta. Foto: Trond-Eirik Husvæg.
Sjarmerende enebolig med solrik tomt - God planløsning - 5 soverom - Stor hage - Parkering i garasje.
Prisantydning6 000 000 kr
Nøkkelinfo
- Boligtype
- Enebolig
- Eieform
- Eier (Selveier)
- Soverom
- 5
- Internt bruksareal
- 229 m² (BRA-i)
- Bruksareal
- 248 m²
- Eksternt bruksareal
- 19 m² (BRA-e)
- Balkong/Terrasse
- 42 m² (TBA)
- Etasje
- 3
- Byggeår
- 1988
- Energimerking
- D - Gul
- Rom
- 6
- Tomteareal
- 547 m² (eiet)
Fasiliteter
Balkong/Terrasse
Barnevennlig
Garasje/P-plass
Hage
Offentlig vann/kloakk
Parkett
Peis/Ildsted
Rolig
Om boligen
Sjarmerende enebolig i Tananger med solrik tomt og sentral beliggenhet.
Boligen har en romslig planløsning over tre etasjer.
1. etg. Har en stor stue som kan deles inn i flere soner, romslig kjøkken med god skap/-benkeplass samt plass til spisebord.
Helfliset bad av god størrelse med varme i gulv. I denne etasjen er det også tre romslige soverom.
2. etg. har to soverom av god størrelse med plass til dobbeltseng og garderobeskap, loftsrom og bad.
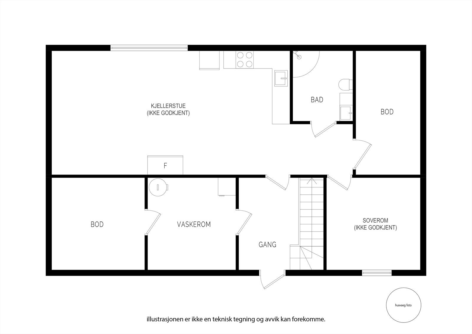
U. etg. er innredet uten godkjenning fra Sola kommune og inneholder en stor stue, kjøkken, bad, vaskerom og soverom.
Boligen har flotte lysforhold, store vinduer og en romslig hage i et rolig nabolag med nærhet til fasiliteter. God parkeringsdekning i garasje samt på tomt.
Boligen har en romslig planløsning over tre etasjer.
1. etg. Har en stor stue som kan deles inn i flere soner, romslig kjøkken med god skap/-benkeplass samt plass til spisebord.
Helfliset bad av god størrelse med varme i gulv. I denne etasjen er det også tre romslige soverom.
2. etg. har to soverom av god størrelse med plass til dobbeltseng og garderobeskap, loftsrom og bad.
U. etg. er innredet uten godkjenning fra Sola kommune og inneholder en stor stue, kjøkken, bad, vaskerom og soverom.
Boligen har flotte lysforhold, store vinduer og en romslig hage i et rolig nabolag med nærhet til fasiliteter. God parkeringsdekning i garasje samt på tomt.
NB: Knappen for å vise hele beskrivelsen har kun en visuell effekt.
NB: Knappen for å vise hele beskrivelsen har kun en visuell effekt.
Salgsoppgaven beskriver vesentlig og lovpålagt informasjon om eiendommen
Se komplett salgsoppgaveNyttige lenker
Nærområdet
EiendomsMegler 1 Sola
En del av Sparebank 1 Sør-Norge
Annonseinformasjon
| FINN-kode | 448593248 |
|---|---|
| Sist endret | 29. jan. 2026 19:00 |
| Referanse | 2210260004 |
Annonsene kan være mangelfulle i forhold til lovpålagt opplysningsplikt. Før bindende avtale inngås oppfordres interessenter til å innhente komplett informasjon fra meglerforetaket, selger eller utleier.

































