Bildegalleri

Kristoffer Mjåtveit har gleden av å presentere Grenseveien 69A. Foto: Trond Walsø.
Lekker og moderne hjørneleilighet med solrik balkong - Garasjeplass med lader - Nybygg fra 2020 - Alt inkl. i felleskost
Prisantydning8 790 000 kr
Nøkkelinfo
- Boligtype
- Leilighet
- Eieform
- Andel
- Soverom
- 3
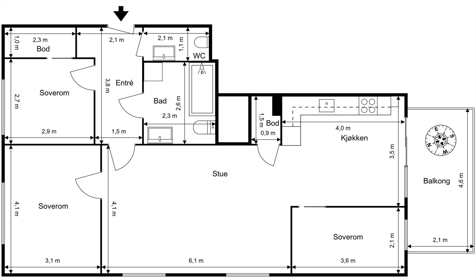
- Internt bruksareal
- 90 m² (BRA-i)
- Bruksareal
- 95 m²
- Eksternt bruksareal
- 5 m² (BRA-e)
- Balkong/Terrasse
- 10 m² (TBA)
- Etasje
- 2
- Byggeår
- 2020
- Energimerking
- C - Mørkegrønn
- Rom
- 4
- Tomteareal
- 5 497 m² (eiet)
Fasiliteter
Balkong/Terrasse
Barnevennlig
Bredbåndstilknytning
Garasje/P-plass
Heis
Offentlig vann/kloakk
Parkett
Rolig
Turterreng
Lademulighet
Balansert ventilasjon
Visning
søndag, 08. februar
12:00 – 12:45
mandag, 09. februar
17:00 – 17:45
Alle våre visninger har påmelding. På denne måten sikrer vi at megler har god oversikt og tid til å imøtekomme alle interessenter. Meld deg på visning ved å trykke på lenken visningspåmelding.
VisningspåmeldingOm boligen
Velkommen til Grenseveien 69A!
En moderne og innbydende hjørneleilighet med en gjennomtenkt planløsning og god standard. Leiligheten ligger i et svært attraktivt og urbant område i Lillebergtunet borettslag, med kort vei til Hasle Torg, Lille Tøyen, Ensjø og Helsfyr T, samt barnehager og skole i nærområdet. Planløsningen byr på en romslig og åpen stue og spisestue, delikat bad og tre lyse, romslige soverom, hvorav ett med praktisk walk in closet. Fra kjøkkenet er det utgang til en solrik balkong på ca. 10 kvm med hyggelig utsyn mot pent opparbeidet fellesareal.
Kort fortalt:
En moderne og innbydende hjørneleilighet med en gjennomtenkt planløsning og god standard. Leiligheten ligger i et svært attraktivt og urbant område i Lillebergtunet borettslag, med kort vei til Hasle Torg, Lille Tøyen, Ensjø og Helsfyr T, samt barnehager og skole i nærområdet. Planløsningen byr på en romslig og åpen stue og spisestue, delikat bad og tre lyse, romslige soverom, hvorav ett med praktisk walk in closet. Fra kjøkkenet er det utgang til en solrik balkong på ca. 10 kvm med hyggelig utsyn mot pent opparbeidet fellesareal.
Kort fortalt:
- 10 kvm solrik balkong med god plass til utemøbler
- Varmtvann/fyring/internett inkl. i felleskost
- Kjellerbod på 5 kvm
- Nybygg fra 2020
- Garasjeplass med lader
- Flytt rett inn
NB: Knappen for å vise hele beskrivelsen har kun en visuell effekt.
NB: Knappen for å vise hele beskrivelsen har kun en visuell effekt.
Salgsoppgaven beskriver vesentlig og lovpålagt informasjon om eiendommen
Se komplett salgsoppgaveNyttige lenker
Nærområdet
Nordvik St.Hanshaugen
Annonseinformasjon
| FINN-kode | 448524143 |
|---|---|
| Sist endret | 30. jan. 2026 09:16 |
| Referanse | 5-0020/26 |
Annonsene kan være mangelfulle i forhold til lovpålagt opplysningsplikt. Før bindende avtale inngås oppfordres interessenter til å innhente komplett informasjon fra meglerforetaket, selger eller utleier.

















































