Bildegalleri

Velkommen til Sukkevannslia 84! Boligen er presentert av Andre Sandvik v/Aktiv Eiendomsmegling avd. Kristiansand. Foto: Ivars Upe
DRANGSVANN
Strøken 3-roms leilighet - Solrik balkong med utsikt, ingen innsyn og p-plass med elbillader*
Prisantydning4 990 000 kr
Nøkkelinfo
- Boligtype
- Leilighet
- Eieform
- Eier (Selveier)
- Soverom
- 2
- Internt bruksareal
- 94 m² (BRA-i)
- Bruksareal
- 99 m²
- Eksternt bruksareal
- 5 m² (BRA-e)
- Balkong/Terrasse
- 22 m² (TBA)
- Etasje
- 2
- Byggeår
- 2022
- Energimerking
- B - Rød
- Rom
- 3
- Tomteareal
- 3 585 m² (eiet)
Fasiliteter
Balkong/Terrasse
Barnevennlig
Offentlig vann/kloakk
Rolig
Sentralt
Utsikt
Turterreng
Balansert ventilasjon
Visning
Ved annonsert visning er det viktig at du melder deg på visningen ved å bruke visningspåmeldingsknappen eller kontakter megler. Annonserte visninger hvor det ikke er noen påmeldte innen kl. 16.00 dagen før visningsdagen vil ikke bli avholdt.
For visninger utover dette, ta direkte kontakt med megler.
VisningspåmeldingOm boligen
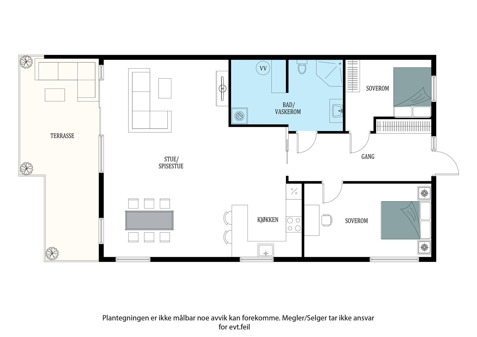
Flott og moderne 3-roms leilighet beliggende i 2. etasje, i et attraktivt og nyere boligfelt på Sukkevannslia. Leiligheten har en gjennomtenkt planløsning med gang, bad, romslig stue med åpen kjøkkenløsning, vaskerom og to soverom. Fra stuen er det utgang til en solrik terrasse på ca. 22 m² med fin utsikt, gode solforhold og uten innsyn.
Boligen disponerer bod i underetasje samt fast parkeringsplass i lukket garasjeanlegg med elbillader. Området er barnevennlig og naturnært, med kort avstand til skog, badeplasser, lysløype og flotte turområder ved Drangsvann og Rona. Samtidig er det kort vei til dagligvarebutikker, skole, treningssenter og øvrige servicetilbud.
Verdt å merke seg:
- Balkong på 22m²
- Parkeringsplass m/lader (abonnement*)
- Vendt mot rolig friområde
- Bod
Boligen disponerer bod i underetasje samt fast parkeringsplass i lukket garasjeanlegg med elbillader. Området er barnevennlig og naturnært, med kort avstand til skog, badeplasser, lysløype og flotte turområder ved Drangsvann og Rona. Samtidig er det kort vei til dagligvarebutikker, skole, treningssenter og øvrige servicetilbud.
Verdt å merke seg:
- Balkong på 22m²
- Parkeringsplass m/lader (abonnement*)
- Vendt mot rolig friområde
- Bod
NB: Knappen for å vise hele beskrivelsen har kun en visuell effekt.
NB: Knappen for å vise hele beskrivelsen har kun en visuell effekt.
Salgsoppgaven beskriver vesentlig og lovpålagt informasjon om eiendommen
Se komplett salgsoppgaveNærområdet
Aktiv Kristiansand
Annonseinformasjon
| FINN-kode | 448492746 |
|---|---|
| Sist endret | 24. feb. 2026 11:09 |
| Referanse | 1411260016 |
Annonsene kan være mangelfulle i forhold til lovpålagt opplysningsplikt. Før bindende avtale inngås oppfordres interessenter til å innhente komplett informasjon fra meglerforetaket, selger eller utleier.

























