Bildegalleri

Fredrik Lund ved EIE Løren ønsker velkommen til Lørenveien 36 A! Foto: Borowiak AS (Chris Borowiak)
Løren
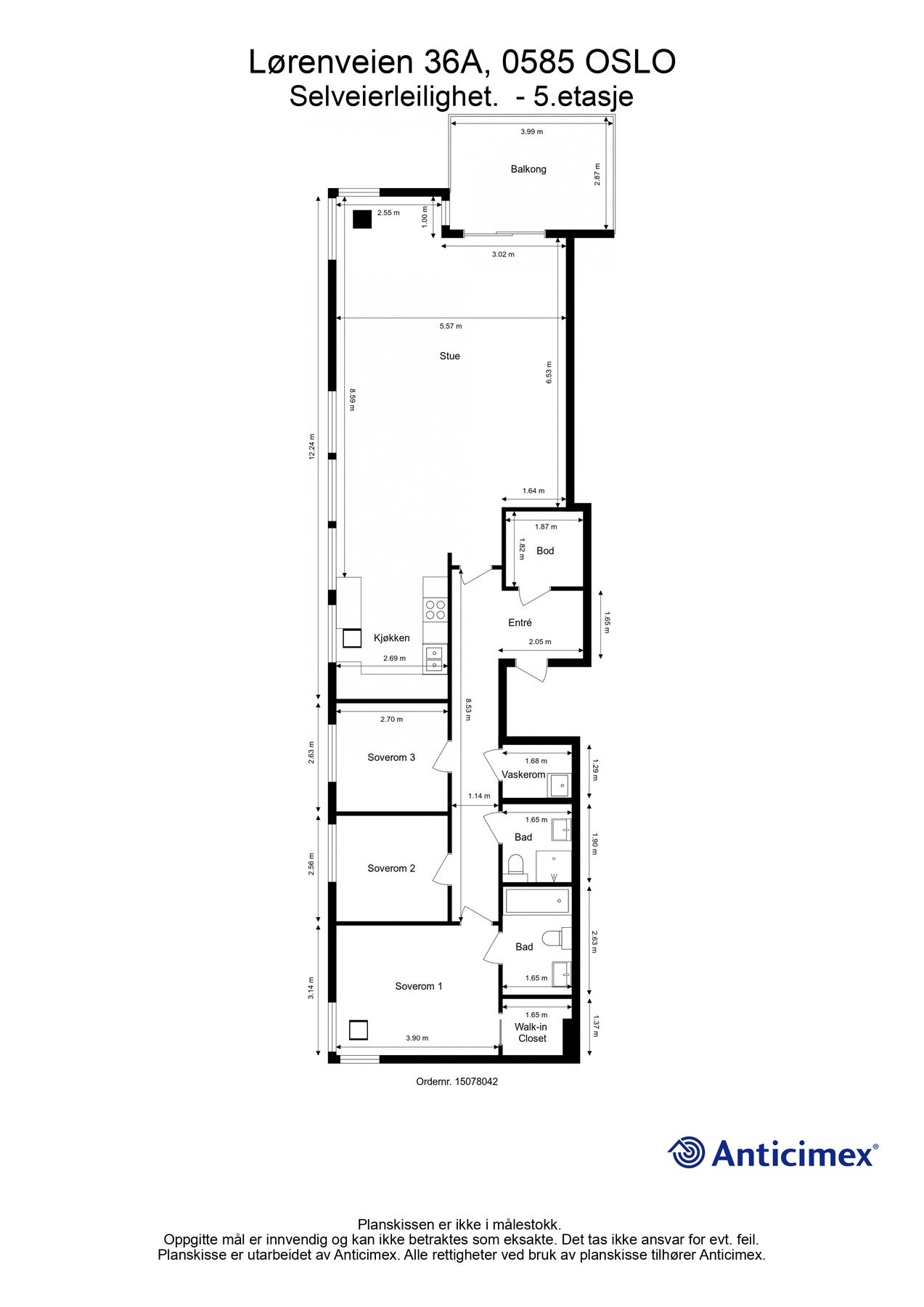
Flott & moderne 4-roms endeleilighet | Balkong med sjøutsikt og gode solforhold | To bad | Garasje | Bør ses!
Prisantydning11 450 000 kr
Nøkkelinfo
- Boligtype
- Leilighet
- Eieform
- Eier (Selveier)
- Soverom
- 3
- Internt bruksareal
- 112 m² (BRA-i)
- Bruksareal
- 121 m²
- Eksternt bruksareal
- 9 m² (BRA-e)
- Balkong/Terrasse
- 11 m² (TBA)
- Etasje
- 5
- Byggeår
- 2003
- Energimerking
- D - Gul
- Tomteareal
- 2 394 m² (eiet)
Fasiliteter
Barnevennlig
Balkong/Terrasse
Garasje/P-plass
Heis
Offentlig vann/kloakk
Ingen gjenboere
Parkett
Turterreng
Utsikt
Vaktmester-/vektertjeneste
Sentralt
Bredbåndstilknytning
Moderne
Rolig
Visning
søndag, 08. februar
14:00 – 15:00
For å yte premium rådgivning, har alle våre visninger påmelding. Dette sikrer at megler har god oversikt og tid til å imøtekomme alle interessenter på aller beste måte. Dersom ingen interessenter er påmeldt, kan visningen bli avlyst.
mandag, 09. februar
16:30 – 17:30
For å yte premium rådgivning, har alle våre visninger påmelding. Dette sikrer at megler har god oversikt og tid til å imøtekomme alle interessenter på aller beste måte. Dersom ingen interessenter er påmeldt, kan visningen bli avlyst.
Om boligen
Fredrik Lund ved EIE Løren ønsker velkommen til Lørenveien 36 A!
Dette er en stor & tiltalende 4-roms endeleilighet beliggende i byggets 5. etasje med heisadkomst. Her får du gleden av en sydvestvendt balkong med flott utsikt og svært gode solforhold. Boligen har en meget god intern beliggenhet og en følelse av å bo usjenert til på toppen av Løren.
Sameiet har fasiliteter som takterrasse med fantastisk utsikt, hobbyrom og sykkelbod. Rema 1000 er praktisk plassert i samme bygg.
Høydepunkter:
- 4-roms endeleilighet med generøse vindusflater.
- Romslig og god planløsning.
- God takhøyde (2,69 meter).
- Betydelig oppusset i 2013.
- Lekkert kjøkken med integrerte hvitevarer.
- To bad + vaskerom.
- Stor innvendig bod.
- Nye vinduer og balkongdør 2024.
- A-konto vannbåren varme inkludert.
- Garasjeplass.
- Kjellerbod på 9 kvm.
- Kort vei til servicetilbud og offentlig kommunikasjon.
Dette er en bolig det er verdt å ta en titt på - velkommen på visning!
Dette er en stor & tiltalende 4-roms endeleilighet beliggende i byggets 5. etasje med heisadkomst. Her får du gleden av en sydvestvendt balkong med flott utsikt og svært gode solforhold. Boligen har en meget god intern beliggenhet og en følelse av å bo usjenert til på toppen av Løren.
Sameiet har fasiliteter som takterrasse med fantastisk utsikt, hobbyrom og sykkelbod. Rema 1000 er praktisk plassert i samme bygg.
Høydepunkter:
- 4-roms endeleilighet med generøse vindusflater.
- Romslig og god planløsning.
- God takhøyde (2,69 meter).
- Betydelig oppusset i 2013.
- Lekkert kjøkken med integrerte hvitevarer.
- To bad + vaskerom.
- Stor innvendig bod.
- Nye vinduer og balkongdør 2024.
- A-konto vannbåren varme inkludert.
- Garasjeplass.
- Kjellerbod på 9 kvm.
- Kort vei til servicetilbud og offentlig kommunikasjon.
Dette er en bolig det er verdt å ta en titt på - velkommen på visning!
NB: Knappen for å vise hele beskrivelsen har kun en visuell effekt.
NB: Knappen for å vise hele beskrivelsen har kun en visuell effekt.
Salgsoppgaven beskriver vesentlig og lovpålagt informasjon om eiendommen
Se komplett salgsoppgaveNyttige lenker
Nærområdet
EIE eiendomsmegling Løren
Annonseinformasjon
| FINN-kode | 448360468 |
|---|---|
| Sist endret | 31. jan. 2026 09:25 |
| Referanse | 71250450 |
Annonsene kan være mangelfulle i forhold til lovpålagt opplysningsplikt. Før bindende avtale inngås oppfordres interessenter til å innhente komplett informasjon fra meglerforetaket, selger eller utleier.


























































