Bildegalleri

Daglig leder og eiendomsmegler Petter Eia Haavi presenterer Kampheimveien 24B!
Oppsal
Lys, gjennomgående og familievennlig 4-roms o/2 plan | Sydvestvendt balkong på 9 kvm | Fyring & varmtvann inkludert
Prisantydning6 450 000 kr
Nøkkelinfo
- Boligtype
- Leilighet
- Eieform
- Andel
- Soverom
- 3
- Internt bruksareal
- 82 m² (BRA-i)
- Bruksareal
- 91 m²
- Eksternt bruksareal
- 9 m² (BRA-e)
- Balkong/Terrasse
- 9 m² (TBA)
- Etasje
- 3
- Byggeår
- 1958
- Energimerking
- D - Gul
- Rom
- 4
- Tomteareal
- 23 979 m² (eiet)
Fasiliteter
Barnevennlig
Balkong/Terrasse
Kabel-TV
Offentlig vann/kloakk
Parkett
Turterreng
Vaktmester-/vektertjeneste
Fellesvaskeri
Sentralt
Bredbåndstilknytning
Rolig
Bademulighet
Om boligen
Velkommen til Kampheimveien 24B presentert av Daglig leder og eiendomsmegler Petter Eia Haavi ved EIE eiendomsmegling!
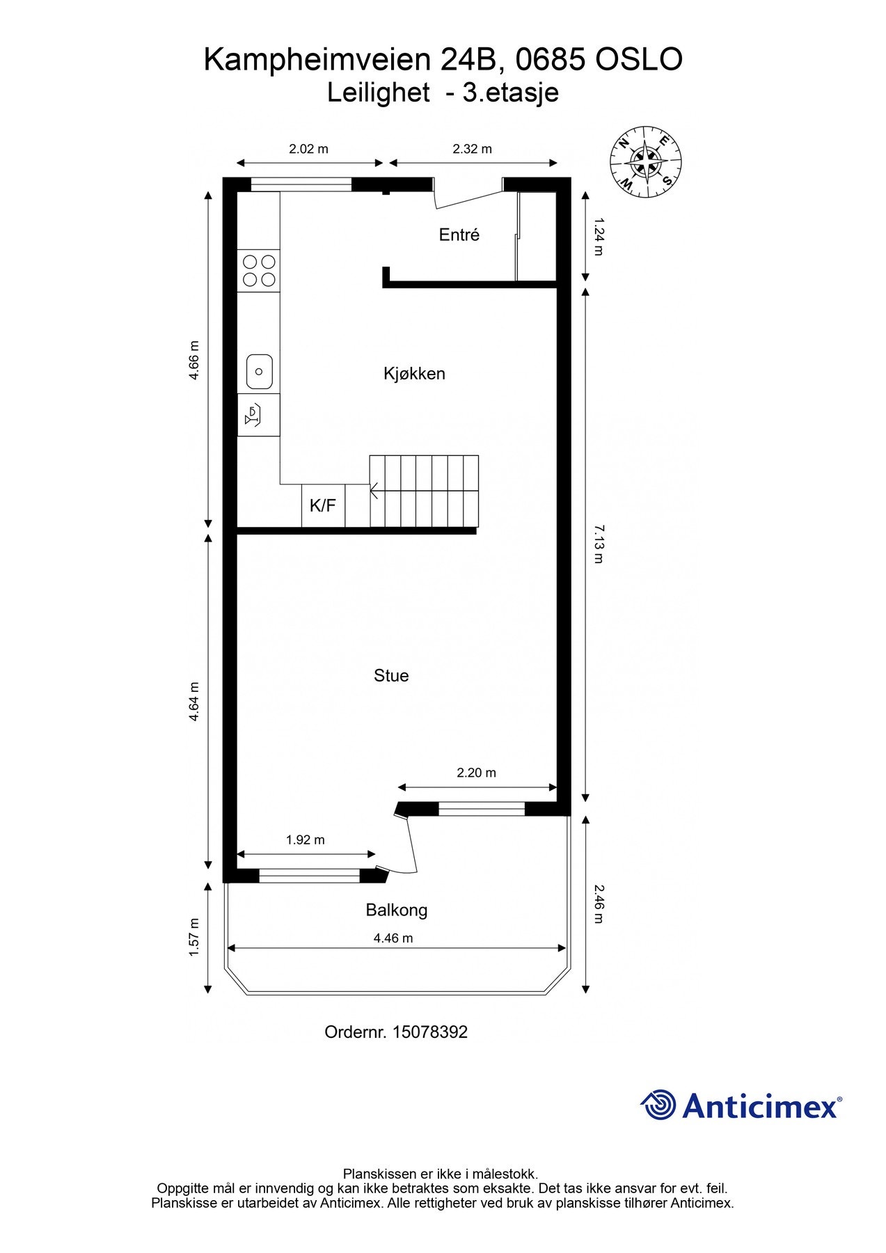
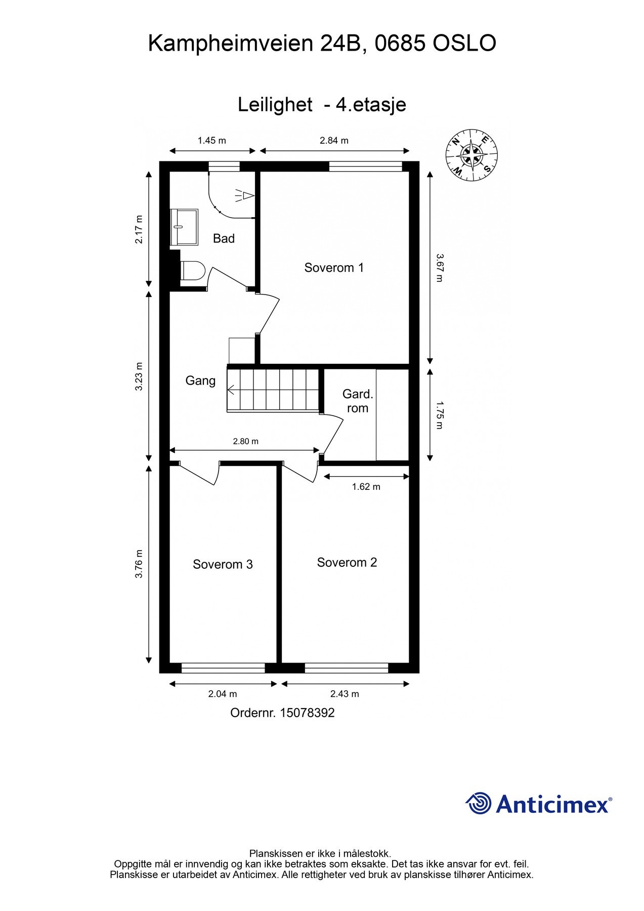
Dette er en familievennlig leilighet som går over to plan med en gjennomtenkt planløsning. Leiligheten ligger i byggets 3. og 4.etasje. Boligens sosiale soner er plassert i leilighetens første etasje. I andre etasje er soverommene samlet, noe som gir en rolig sone adskilt fra oppholdsarealene.
Kvaliteter ved boligen:
- Sydvestvendt balkong på 9 kvm
- Felles varmtvann og fyring inkl. i felleskost
- Gjennomgående
- Ekstern bod på 9 kvm
- Praktisk garderoberom
- God planløsning
- Tre romslige soverom
- Mulighet for leie av garasje
- Heis
- Automatsikringer
- Kun 5 minutter til Østmarka
- Nærhet til kollektivtransport
Her bor du i et hyggelig og barnevennlig nabolag med kort vei til bane, buss og flere gode skoler og barnehager. I tillegg får du Østmarka og Østensjøvannet i umiddelbar nærhet.
Velkommen til en hyggelig visning!
Dette er en familievennlig leilighet som går over to plan med en gjennomtenkt planløsning. Leiligheten ligger i byggets 3. og 4.etasje. Boligens sosiale soner er plassert i leilighetens første etasje. I andre etasje er soverommene samlet, noe som gir en rolig sone adskilt fra oppholdsarealene.
Kvaliteter ved boligen:
- Sydvestvendt balkong på 9 kvm
- Felles varmtvann og fyring inkl. i felleskost
- Gjennomgående
- Ekstern bod på 9 kvm
- Praktisk garderoberom
- God planløsning
- Tre romslige soverom
- Mulighet for leie av garasje
- Heis
- Automatsikringer
- Kun 5 minutter til Østmarka
- Nærhet til kollektivtransport
Her bor du i et hyggelig og barnevennlig nabolag med kort vei til bane, buss og flere gode skoler og barnehager. I tillegg får du Østmarka og Østensjøvannet i umiddelbar nærhet.
Velkommen til en hyggelig visning!
NB: Knappen for å vise hele beskrivelsen har kun en visuell effekt.
NB: Knappen for å vise hele beskrivelsen har kun en visuell effekt.
Salgsoppgaven beskriver vesentlig og lovpålagt informasjon om eiendommen
Se komplett salgsoppgaveNyttige lenker
Nærområdet
EIE eiendomsmegling Stovner
Annonseinformasjon
| FINN-kode | 448343885 |
|---|---|
| Sist endret | 30. jan. 2026 06:57 |
| Referanse | 75250284 |
Annonsene kan være mangelfulle i forhold til lovpålagt opplysningsplikt. Før bindende avtale inngås oppfordres interessenter til å innhente komplett informasjon fra meglerforetaket, selger eller utleier.









































