Bildegalleri

EiendomsMegler 1 v/ Eirik Hanekamhaug presenter Gangarstien 6!
Øvre Tjensvoll/Haugtussa
Familievennlig og pent enderekkehus med 3 soverom - Garasje - Rolig og barnevennlig område
Prisantydning4 650 000 kr
Nøkkelinfo
- Boligtype
- Rekkehus
- Eieform
- Andel
- Soverom
- 3
- Internt bruksareal
- 106 m² (BRA-i)
- Bruksareal
- 124 m²
- Eksternt bruksareal
- 18 m² (BRA-e)
- Balkong/Terrasse
- 28 m² (TBA)
- Byggeår
- 1975
- Energimerking
- E - Gul
- Rom
- 4
- Tomteareal
- 86 188 m² (eiet)
Fasiliteter
Balkong/Terrasse
Barnevennlig
Bredbåndstilknytning
Garasje/P-plass
Hage
Kjæledyr tillatt
Kabel-TV
Offentlig vann/kloakk
Rolig
Sentralt
Vaktmester-/vektertjeneste
Turterreng
Lademulighet
Visning
onsdag, 04. februar
16:00 – 16:30
Ønsker du å delta på visningen ber vi deg melde deg på slik at vi vet at du kommer. Da kan vi bistå alle best mulig og gi deg tiden du trenger på visningen. Kontakt gjerne megler før visning hvis du har spørsmål. Visningen avholdes bare dersom det er påmeldte. Hvis det ikke er oppsatt visningstidspunkt eller tidspunkt ikke passer, kontakt megler.
VisningspåmeldingOm boligen
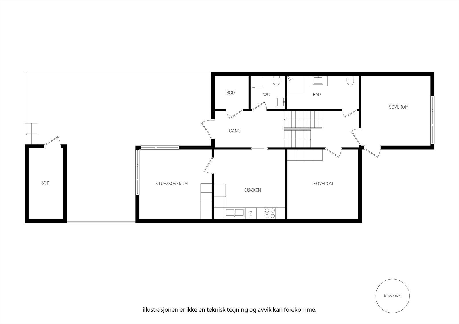
Gangarstien 6 er et lyst og trivelig enderekkehus på populære Haugtussa. Med sine flere soner og oppholdsrom er dette en bolig som er ideell for familien. Boligen ligger i et veletablert boligfelt med en sentral beliggenhet. Nabolaget er meget barnevennlig med kort vei til skoler, barnehager og idrettsanlegg. Gangavstand til flotte turområder samt nye SUS og UiS.
- Lys og romslig stue på øverste plan med utgang til takterrasse.
- 3 gode soverom. Alle med garderobeskap.
- Kjøkken med god skap- og benkeplass. Plass til spisebord.
- Vaskerom/toalettrom med opplegg for vaskemaskin og tørketrommel.
- Helfliset bad med varmekabler
- Skjermet, sjarmerende og solrik hage med terrasse og drivhus
- Utvendig bod på ca 6m2.
- Egen garasje m/ mulighet for elbillader
NB: Knappen for å vise hele beskrivelsen har kun en visuell effekt.
NB: Knappen for å vise hele beskrivelsen har kun en visuell effekt.
Salgsoppgaven beskriver vesentlig og lovpålagt informasjon om eiendommen
Se komplett salgsoppgaveNyttige lenker
Nærområdet
EiendomsMegler 1 Mariero
En del av Sparebank 1 Sør-Norge
Annonseinformasjon
| FINN-kode | 448239170 |
|---|---|
| Sist endret | 28. jan. 2026 08:13 |
| Referanse | 2206260006 |
Annonsene kan være mangelfulle i forhold til lovpålagt opplysningsplikt. Før bindende avtale inngås oppfordres interessenter til å innhente komplett informasjon fra meglerforetaket, selger eller utleier.



































