Bildegalleri

Nordvik Bolig v/Carl-Åge Herrem har gleden av å presentere Hertervigs plass 15. Foto: Kristine Tofte
Bjergsted
Eksklusiv leilighet over to plan med utsikt mot innseilingen | 2 soverom* |2 terrasser | Parkering | Elbillader
Prisantydning7 250 000 kr
Nøkkelinfo
- Boligtype
- Leilighet
- Eieform
- Andel
- Soverom
- 2
- Internt bruksareal
- 103 m² (BRA-i)
- Bruksareal
- 108 m²
- Eksternt bruksareal
- 5 m² (BRA-e)
- Balkong/Terrasse
- 13 m² (TBA)
- Etasje
- 5
- Byggeår
- 2008
- Energimerking
- B - Mørkegrønn
- Tomteareal
- 1 867 m² (eiet)
Fasiliteter
Balkong/Terrasse
Bredbåndstilknytning
Garasje/P-plass
Heis
Kabel-TV
Offentlig vann/kloakk
Parkett
Rolig
Sentralt
Utsikt
Vaktmester-/vektertjeneste
Lademulighet
Om boligen
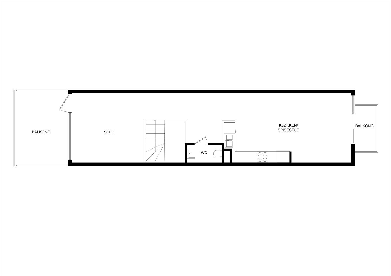
Lys og elegant leilighet med gjennomført planløsning og svært gode bokvaliteter. *Boligen er godkjent med tre soverom og fremstår romslig med en innbydende stue preget av rikelig lysinnslipp. Det funksjonelle kjøkkenet ligger naturlig tilknyttet oppholdsrommet og bidrar til en sosial og moderne løsning. Leiligheten har to balkonger som gir solrike og anvendelige uteplasser med gode muligheter for både avslapning og hyggelige sammenkomster. Praktisk parkering i felles garasje med elbillading via Smartly (Lyse).
Godkjent med tre soverom
Elegant og romslig stue med rikelig naturlig lys
To balkonger som gir eksklusive uteplasser
Flislagt bad med varmekabler
Parkeringsplass i felles garasje m/ elbelbillading (Smartly/Lyse)
Ettertraktet og sentrumsnær beliggenhet
Godkjent med tre soverom
Elegant og romslig stue med rikelig naturlig lys
To balkonger som gir eksklusive uteplasser
Flislagt bad med varmekabler
Parkeringsplass i felles garasje m/ elbelbillading (Smartly/Lyse)
Ettertraktet og sentrumsnær beliggenhet
NB: Knappen for å vise hele beskrivelsen har kun en visuell effekt.
NB: Knappen for å vise hele beskrivelsen har kun en visuell effekt.
Salgsoppgaven beskriver vesentlig og lovpålagt informasjon om eiendommen
Se komplett salgsoppgaveNyttige lenker
Nærområdet
Nordvik Stavanger
Vi vet hva det er verdt
Annonseinformasjon
| FINN-kode | 448237250 |
|---|---|
| Sist endret | 28. jan. 2026 10:54 |
| Referanse | 43-0273/25 |
Annonsene kan være mangelfulle i forhold til lovpålagt opplysningsplikt. Før bindende avtale inngås oppfordres interessenter til å innhente komplett informasjon fra meglerforetaket, selger eller utleier.







































