Bildegalleri

PrivatMegleren Renommé presenterer Grefsenkollveien 12A - en romslig og innbydende leilighet som strekker seg over 8., 9. og 10. etasje. FOTO: Kristine Elvemo.
Grefsen Terrassehus / Grefsenåsen
Familievennlig leilighet over tre plan - solrik terrasse, 4 soverom, separat WC og parkeringsplass
Prisantydning10 250 000 kr
Nøkkelinfo
- Boligtype
- Leilighet
- Eieform
- Eier (Selveier)
- Soverom
- 4
- Internt bruksareal
- 114 m² (BRA-i)
- Bruksareal
- 117 m²
- Eksternt bruksareal
- 3 m² (BRA-e)
- Balkong/Terrasse
- 15 m² (TBA)
- Etasje
- 8
- Byggeår
- 1974
- Energimerking
- E - Rød
- Tomteareal
- 37 107 m² (eiet)
Fasiliteter
Barnevennlig
Balkong/Terrasse
Garasje/P-plass
Kabel-TV
Heis
Offentlig vann/kloakk
Ingen gjenboere
Parkett
Turterreng
Utsikt
Vaktmester-/vektertjeneste
Fellesvaskeri
Sentralt
Rolig
Om boligen
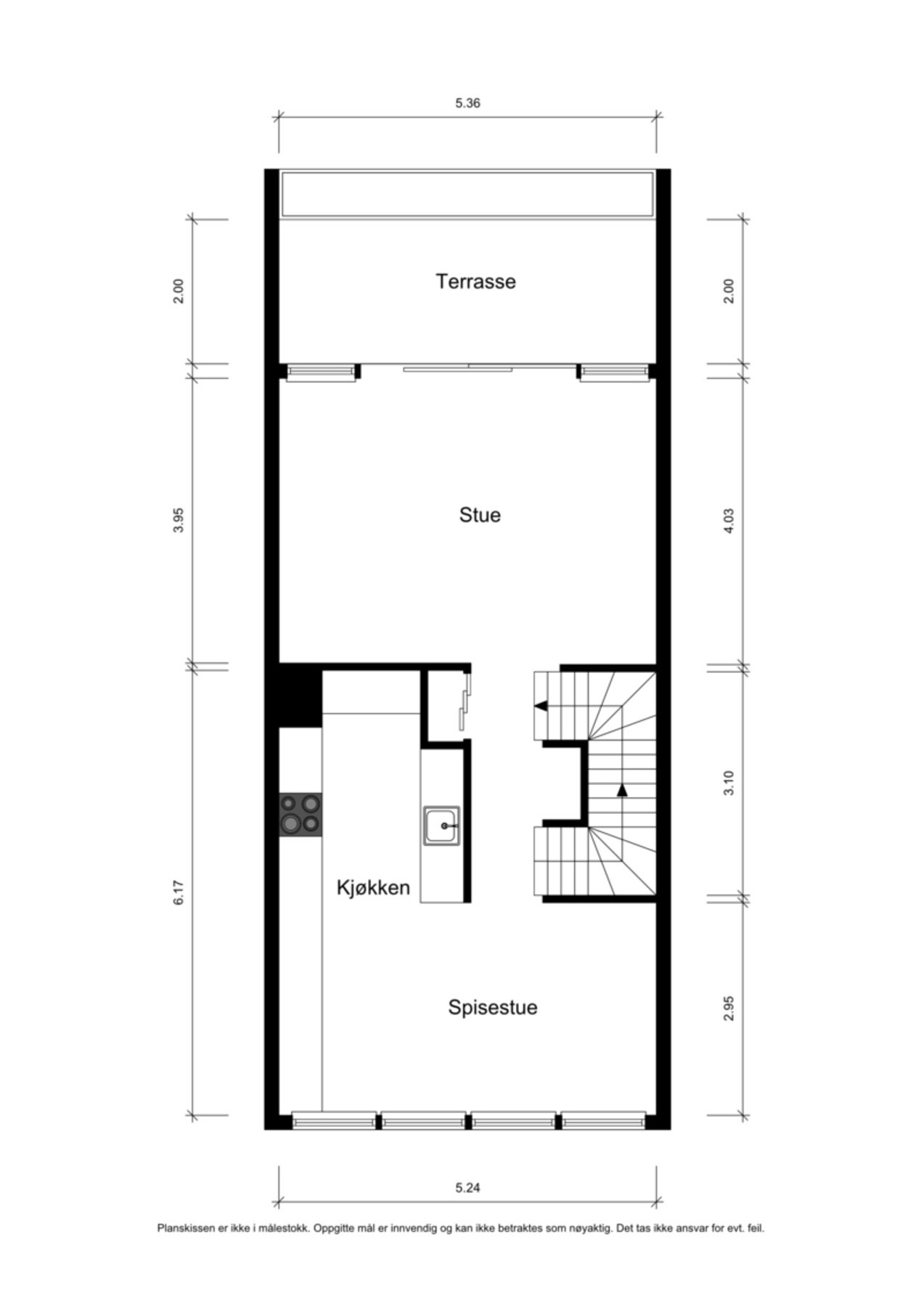
PrivatMegleren Renommé presenterer Grefsenkollveien 12A - en romslig og innbydende toppleilighet som strekker seg over 8., 9. og 10. etasje. Leiligheten har en gjennomtenkt planløsning og fremstår med gode kvaliteter.
Boligens stue er plassert i 9. etasje og byr på store vindusflater samt dobbel skyvedør med utgang til vestvendt terrasse - en herlig forlengelse av oppholdsrommet med svært gode solforhold og spektakulær utsikt mot Oslofjorden, Holmenkollen og Maridalen. Kjøkkenet ligger tilknyttet spisestue og har gode arbeidsflater samt rikelig med oppbevaringsplass.
Høydepunkter:
- Vestvendt terrasse på ca. 11 kvm med panoramautsikt samt luftebalkong på ca. 4 kvm
- Bad med gulvvarme og opplegg for vaskemaskin
- Separat toalettrom
- Fire soverom samlet i øverste etasje
- Parkeringsplass i felles garasjeanlegg
- Heisadkomst fra inngangs- og parkeringsplan
- Veldrevet sameie med flotte, velstelte fellesområder
Velkommen til visning!
Boligens stue er plassert i 9. etasje og byr på store vindusflater samt dobbel skyvedør med utgang til vestvendt terrasse - en herlig forlengelse av oppholdsrommet med svært gode solforhold og spektakulær utsikt mot Oslofjorden, Holmenkollen og Maridalen. Kjøkkenet ligger tilknyttet spisestue og har gode arbeidsflater samt rikelig med oppbevaringsplass.
Høydepunkter:
- Vestvendt terrasse på ca. 11 kvm med panoramautsikt samt luftebalkong på ca. 4 kvm
- Bad med gulvvarme og opplegg for vaskemaskin
- Separat toalettrom
- Fire soverom samlet i øverste etasje
- Parkeringsplass i felles garasjeanlegg
- Heisadkomst fra inngangs- og parkeringsplan
- Veldrevet sameie med flotte, velstelte fellesområder
Velkommen til visning!
NB: Knappen for å vise hele beskrivelsen har kun en visuell effekt.
NB: Knappen for å vise hele beskrivelsen har kun en visuell effekt.
Salgsoppgaven beskriver vesentlig og lovpålagt informasjon om eiendommen
Se komplett salgsoppgaveNyttige lenker
Nærområdet

PrivatMegleren Renommé
Kun det beste på dine vegne
Annonseinformasjon
| FINN-kode | 448223786 |
|---|---|
| Sist endret | 31. jan. 2026 14:26 |
| Referanse | 40251180 |
Annonsene kan være mangelfulle i forhold til lovpålagt opplysningsplikt. Før bindende avtale inngås oppfordres interessenter til å innhente komplett informasjon fra meglerforetaket, selger eller utleier.















































