Bildegalleri

Velkommen til Christian Krohgs gate 30!
Grünerløkka
Unik fabrikkleilighet med utsikt mot Akerselva - "Alt" inkludert i felleskostnader - Felles takterrasse!
Prisantydning4 390 000 kr
Nøkkelinfo
- Boligtype
- Leilighet
- Eieform
- Andel
- Soverom
- 0
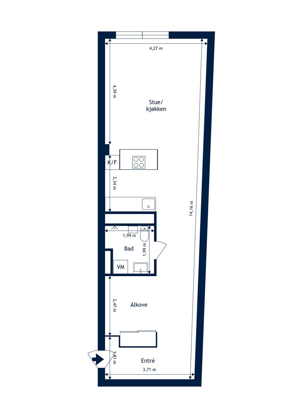
- Internt bruksareal
- 57 m² (BRA-i)
- Bruksareal
- 60 m²
- Eksternt bruksareal
- 3 m² (BRA-e)
- Etasje
- 2
- Byggeår
- 1903
- Energimerking
- G - Mørkegrønn
- Rom
- 1
- Tomteareal
- 1 357 m² (eiet)
Fasiliteter
Takterrasse
Bredbåndstilknytning
Heis
Kjæledyr tillatt
Ingen gjenboere
Offentlig vann/kloakk
Rolig
Sentralt
Vaktmester-/vektertjeneste
Visning
søndag, 08. februar
12:45 – 13:30
mandag, 09. februar
17:45 – 18:30
Visningen har obligatorisk påmelding.
Kravet om påmelding har vi for å kunne gi deg og andre visningsdeltakere en best mulig opplevelse og service knyttet til gjennomføring av visningen. Velkommen!
VisningspåmeldingOm boligen
Velkommen til Christian Kroghs gate 30!
Boligen ligger i en tidligere fabrikkbygning som ble totalrenovert og omgjort til boliger i 2006. Bygget har en spennende industrihistorie og kombinerer historisk preg med moderne bokvaliteter. Leiligheten ligger fint til i 2. etasje, med flott utsikt mot Akerselva.
Innvendig har boligen en god planløsning som fordeler seg slik; åpen stue- og kjøkkenløsning, sovealkove med garderobeskap, bad og gang/entré. I tillegg kan du ta heisen til borettslagets fantastiske takterrasse med panoramautsikt over hele Oslo by!
Verdt å nevne:
- Fabrikkbygning omgjort til leiligheter i 2006
- Strøm, internett, fyring og varmtvann inkl. i felleskostnader
- God internbeliggenhet med utsyn mot Akerselva
- Heis til felles takterrasse
- Kjellerbod på 2,5 kvm
Boligen ligger i en tidligere fabrikkbygning som ble totalrenovert og omgjort til boliger i 2006. Bygget har en spennende industrihistorie og kombinerer historisk preg med moderne bokvaliteter. Leiligheten ligger fint til i 2. etasje, med flott utsikt mot Akerselva.
Innvendig har boligen en god planløsning som fordeler seg slik; åpen stue- og kjøkkenløsning, sovealkove med garderobeskap, bad og gang/entré. I tillegg kan du ta heisen til borettslagets fantastiske takterrasse med panoramautsikt over hele Oslo by!
Verdt å nevne:
- Fabrikkbygning omgjort til leiligheter i 2006
- Strøm, internett, fyring og varmtvann inkl. i felleskostnader
- God internbeliggenhet med utsyn mot Akerselva
- Heis til felles takterrasse
- Kjellerbod på 2,5 kvm
NB: Knappen for å vise hele beskrivelsen har kun en visuell effekt.
NB: Knappen for å vise hele beskrivelsen har kun en visuell effekt.
Salgsoppgaven beskriver vesentlig og lovpålagt informasjon om eiendommen
Se komplett salgsoppgaveNærområdet
Sem & Johnsen
Boliger utenom det vanlige
Annonseinformasjon
| FINN-kode | 448202819 |
|---|---|
| Sist endret | 02. feb. 2026 09:39 |
| Referanse | 20-25-1974 |
Annonsene kan være mangelfulle i forhold til lovpålagt opplysningsplikt. Før bindende avtale inngås oppfordres interessenter til å innhente komplett informasjon fra meglerforetaket, selger eller utleier.

























