Bildegalleri

Velkommen til Sundmoveien 15! Foto: EFKT v/Lauris Arins
Hokksund
Praktisk, fin leilighet med vannbåren varme inkl. i felleskostnadene. Fine uteplasser.
Prisantydning1 450 000 kr
Nøkkelinfo
- Boligtype
- Leilighet
- Eieform
- Andel
- Soverom
- 1
- Internt bruksareal
- 46 m² (BRA-i)
- Bruksareal
- 46 m²
- Balkong/Terrasse
- 15 m² (TBA)
- Etasje
- 1
- Byggeår
- 2006
- Energimerking
- Rom
- 1
- Tomteareal
- 5 209 m² (eiet)
Fasiliteter
Balkong/Terrasse
Barnevennlig
Bredbåndstilknytning
Hage
Kjæledyr tillatt
Kabel-TV
Om boligen
Velkommen til en fin leilighet beliggende i enden av blindvei på Kantum/Sundmoen i Hokksund. Området er kjent for sin nærhet til skoler, barnehager og offentlig transport, med Hokksund stasjon kun 19 minutter unna. Her finner du også gode turmuligheter og et trygt nabolag, perfekt for familier og etablerere. Leiligheten er ideell for førstegangskjøpere.
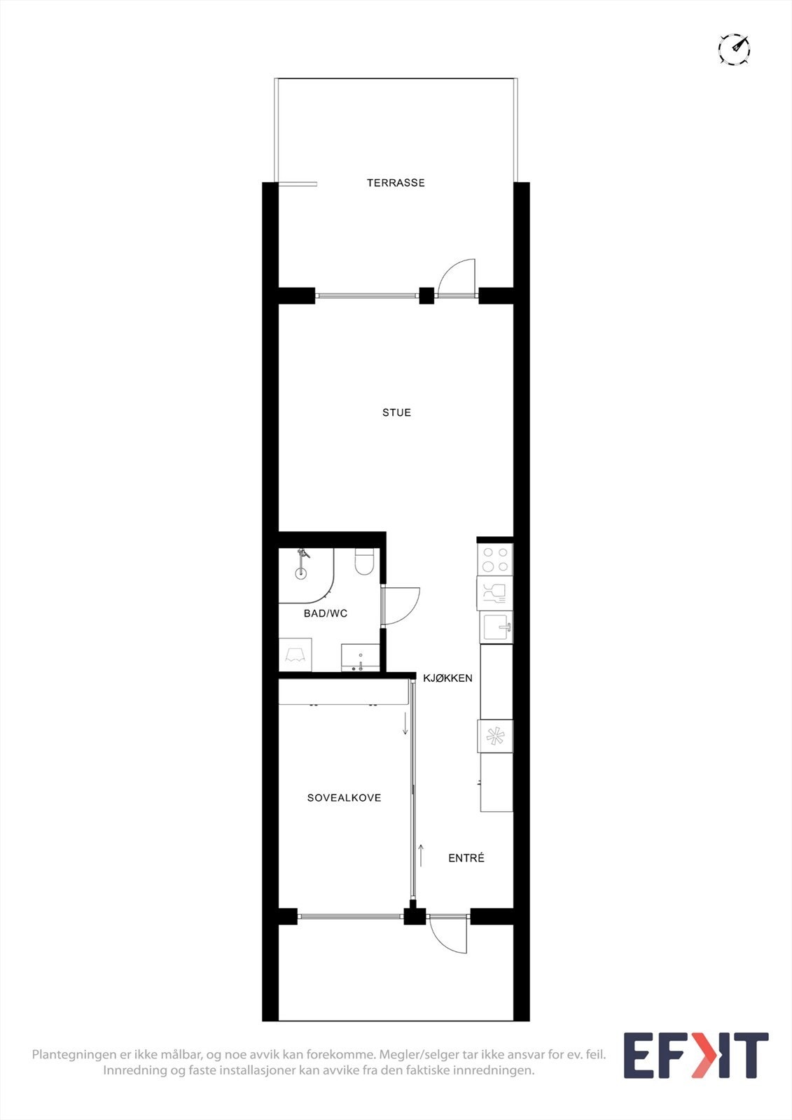
Leiligheten ligger i første etasje med usjenert terrasseplatting og helt uten innsyn i stuen. Den har en praktisk planløsning inneholdende entre/gang, sovealkove lukket med skyvedør, bad/wc, stue med åpen kjøkkenløsning og utgang til terrasseplatting. Sportsbod.
Leiligheten ligger i første etasje med usjenert terrasseplatting og helt uten innsyn i stuen. Den har en praktisk planløsning inneholdende entre/gang, sovealkove lukket med skyvedør, bad/wc, stue med åpen kjøkkenløsning og utgang til terrasseplatting. Sportsbod.
NB: Knappen for å vise hele beskrivelsen har kun en visuell effekt.
NB: Knappen for å vise hele beskrivelsen har kun en visuell effekt.
Salgsoppgaven beskriver vesentlig og lovpålagt informasjon om eiendommen
Se komplett salgsoppgaveNærområdet
Aktiv Eiker og Modum
Annonseinformasjon
| FINN-kode | 448168854 |
|---|---|
| Sist endret | 17. mars 2026 12:09 |
| Referanse | 1309260001 |
Annonsene kan være mangelfulle i forhold til lovpålagt opplysningsplikt. Før bindende avtale inngås oppfordres interessenter til å innhente komplett informasjon fra meglerforetaket, selger eller utleier.





















