Bildegalleri

Velkommen til Hurumveien 50D!
Solgt
Åros
Lys og romslig 3-romsleilighet i 2. etasje - Meget sentral beliggenhet - Behov for modernisering
Prisantydning3 250 000 kr
Nøkkelinfo
- Boligtype
- Leilighet
- Eieform
- Eier (Selveier)
- Soverom
- 2
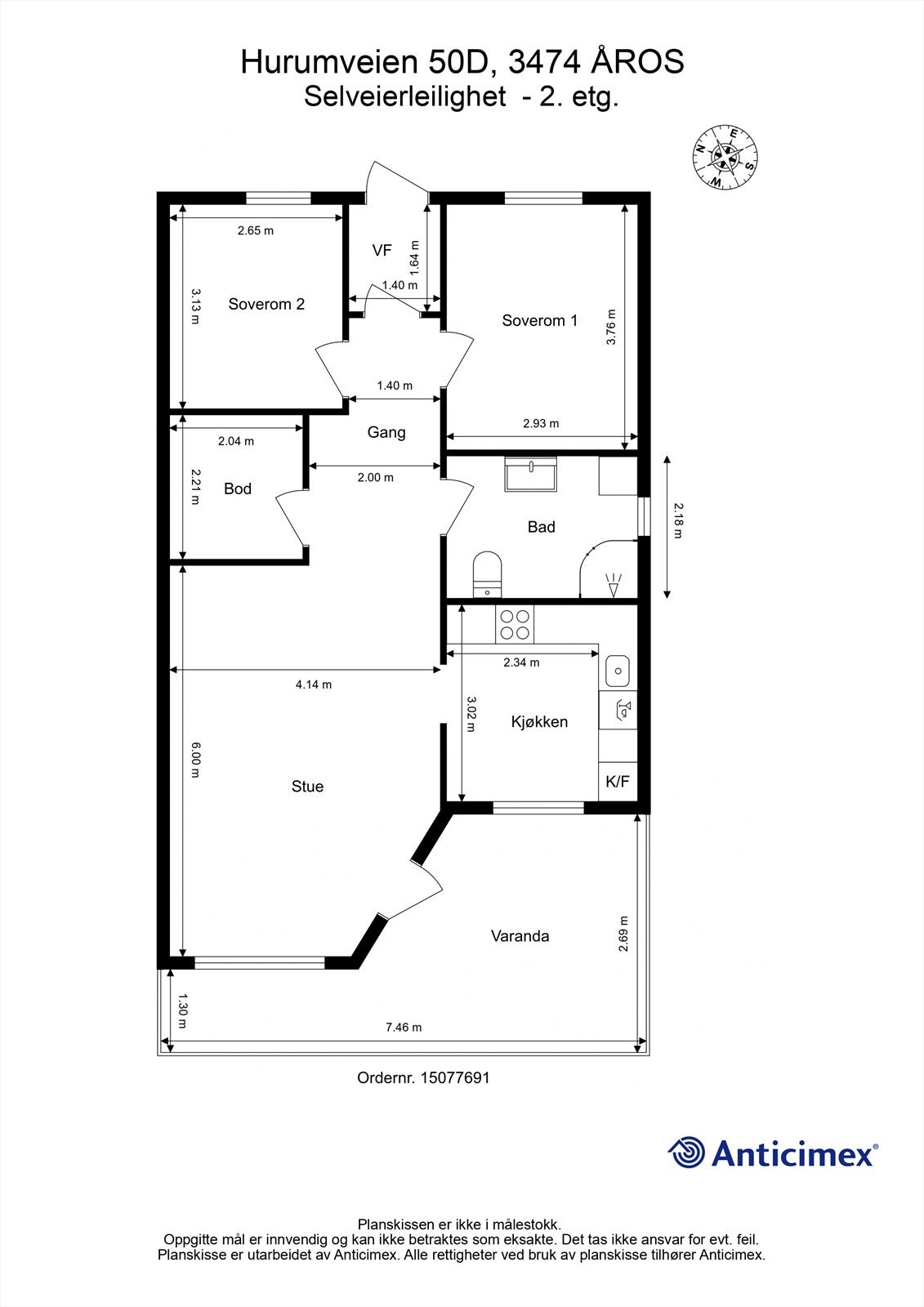
- Internt bruksareal
- 78 m² (BRA-i)
- Bruksareal
- 78 m²
- Balkong/Terrasse
- 15 m² (TBA)
- Etasje
- 2
- Byggeår
- 2004
- Energimerking
- D - Gul
- Rom
- 3
- Tomteareal
- 1 730 m² (eiet)
Fasiliteter
Balkong/Terrasse
Barnevennlig
Garasje/P-plass
Kjæledyr tillatt
Offentlig vann/kloakk
Parkett
Sentralt
Om boligen
Velkommen til Hurumveien 50D!
3-romsleilighet i 2. etasje med veranda på ca. 15 kvm og god planløsning. Leiligheten ligger godt til Åros sentrum med dagligvarebutikk, legesenter, apotek og hyggelig cafe. I umiddelbar nærhet er det bussholdeplass med direkte avganger mot Drammen og Oslo. En kort kjøretur unna, ligger Sætre med flere dagligvarebutikker, restauranter, bar og et sprudlende båtliv om sommeren.
- God og åpen planløsning
- 2 soverom
- Sentral beliggenhet i Åros
- Stor, delvis overbygget veranda
- 1 innvendig bod, samt 1 utvendig bod
- Kort vei til fjorden og marka
- Umiddelbar nærhet til butikker, apotek, bussholdeplass og cafe
- Behov for modernisering
Inneh: Entre, gang, bad/vaskerom, bod, 2 soverom, kjøkken og stue/spisestue. I tillegg er det det en utvendig sportsbod
3-romsleilighet i 2. etasje med veranda på ca. 15 kvm og god planløsning. Leiligheten ligger godt til Åros sentrum med dagligvarebutikk, legesenter, apotek og hyggelig cafe. I umiddelbar nærhet er det bussholdeplass med direkte avganger mot Drammen og Oslo. En kort kjøretur unna, ligger Sætre med flere dagligvarebutikker, restauranter, bar og et sprudlende båtliv om sommeren.
- God og åpen planløsning
- 2 soverom
- Sentral beliggenhet i Åros
- Stor, delvis overbygget veranda
- 1 innvendig bod, samt 1 utvendig bod
- Kort vei til fjorden og marka
- Umiddelbar nærhet til butikker, apotek, bussholdeplass og cafe
- Behov for modernisering
Inneh: Entre, gang, bad/vaskerom, bod, 2 soverom, kjøkken og stue/spisestue. I tillegg er det det en utvendig sportsbod
NB: Knappen for å vise hele beskrivelsen har kun en visuell effekt.
NB: Knappen for å vise hele beskrivelsen har kun en visuell effekt.
Salgsoppgaven beskriver vesentlig og lovpålagt informasjon om eiendommen
Se komplett salgsoppgaveNyttige lenker
Nærområdet
Krogsveen Røyken
Verdien av en god megler.
Annonseinformasjon
| FINN-kode | 448114093 |
|---|---|
| Sist endret | 03. feb. 2026 13:51 |
| Referanse | KR16.25114 |
Annonsene kan være mangelfulle i forhold til lovpålagt opplysningsplikt. Før bindende avtale inngås oppfordres interessenter til å innhente komplett informasjon fra meglerforetaket, selger eller utleier.























