Bildegalleri

Eiendomsmegler Norge ved Kristian Lossius har gleden av å ønske deg velkommen til Østre Strandgate 17!
Kvadraturen
Fin og gjennomgående 2-roms toppleilighet med attraktiv beliggenhet i rolig bakgård. Lave felleskostnader.
Prisantydning2 550 000 kr
Nøkkelinfo
- Boligtype
- Leilighet
- Eieform
- Eier (Selveier)
- Soverom
- 1
- Internt bruksareal
- 40 m² (BRA-i)
- Bruksareal
- 48 m²
- Eksternt bruksareal
- 8 m² (BRA-e)
- Etasje
- 3
- Byggeår
- 1892
- Energimerking
- G - Rød
- Rom
- 2
- Tomteareal
- 324 m² (eiet)
Fasiliteter
Peis/Ildsted
Sentralt
Turterreng
Om boligen
Eiendomsmegler Norge ved Kristian Lossius har gleden av å ønske deg velkommen til Østre Strandgate 17!
En fin og gjennomgående 2-roms toppleilighet med attraktiv beliggenhet i rolig bakgård.
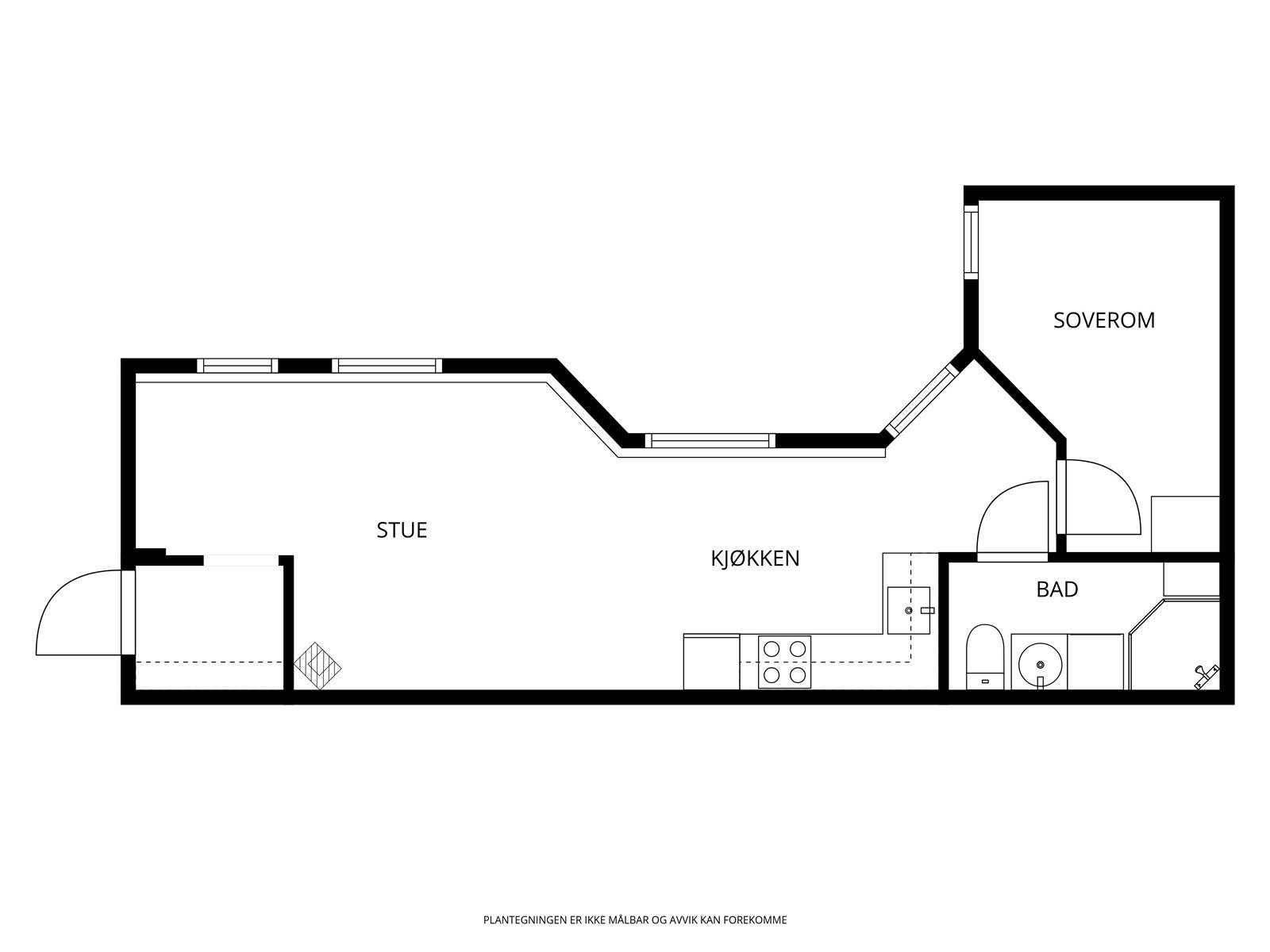
Planløsning:
Vindfang med plass til å henge av seg ytterklær og sko. Rett utenfor inngangsdøren er det en solrik veranda som en del av trappen.
Videre består leiligheten av en stue litt utenom dert vanlige. Kule detaljer i tak og kontrastvegg med kalkmaling. Plass til både sofagruppe og spisebord. Koselig peis som gir godt med varme. Åpen stue- og kjøkkenløsning. IKEA-kjøkken (2016) med hvitevarer. Soverom med plass til seng og skap. Flislagt bad med malte fliser på vegger. Badet har dusjkabinett, servant med underskuffer og toalett. Opplegg til vaskemaskin på bad.
En fin og gjennomgående 2-roms toppleilighet med attraktiv beliggenhet i rolig bakgård.
Planløsning:
Vindfang med plass til å henge av seg ytterklær og sko. Rett utenfor inngangsdøren er det en solrik veranda som en del av trappen.
Videre består leiligheten av en stue litt utenom dert vanlige. Kule detaljer i tak og kontrastvegg med kalkmaling. Plass til både sofagruppe og spisebord. Koselig peis som gir godt med varme. Åpen stue- og kjøkkenløsning. IKEA-kjøkken (2016) med hvitevarer. Soverom med plass til seng og skap. Flislagt bad med malte fliser på vegger. Badet har dusjkabinett, servant med underskuffer og toalett. Opplegg til vaskemaskin på bad.
NB: Knappen for å vise hele beskrivelsen har kun en visuell effekt.
NB: Knappen for å vise hele beskrivelsen har kun en visuell effekt.
Salgsoppgaven beskriver vesentlig og lovpålagt informasjon om eiendommen
Se komplett salgsoppgaveNyttige lenker
Nærområdet
Eiendomsmegler Norge Kristiansand
Best der du bor
Annonseinformasjon
| FINN-kode | 448045268 |
|---|---|
| Sist endret | 28. jan. 2026 07:37 |
| Referanse | 50260020 |
Annonsene kan være mangelfulle i forhold til lovpålagt opplysningsplikt. Før bindende avtale inngås oppfordres interessenter til å innhente komplett informasjon fra meglerforetaket, selger eller utleier.



































