Bildegalleri

EiendomsMegler 1 v/ Jørund Ivar Volden har gleden av å presentere Håkon Magnussons gate 1 B - En svært pen 3-roms selveierleilighet med 3 meter takhøyde og attraktiv beliggenhet på Lade! Foto: Nonstad Foto (Julian Nonstad)
Lade
SVÆRT PEN 3-ROMS SELVEIER MED TAKHØYDE PÅ CA. 3 METER(!) | KJØKKEN FRA 2021 (TG1) | MULIGHET FOR PARKERING | FJERNVARME
Prisantydning3 590 000 kr
Nøkkelinfo
- Boligtype
- Leilighet
- Eieform
- Eier (Selveier)
- Soverom
- 2
- Internt bruksareal
- 55 m² (BRA-i)
- Bruksareal
- 60 m²
- Eksternt bruksareal
- 5 m² (BRA-e)
- Balkong/Terrasse
- 10 m² (TBA)
- Etasje
- 1
- Byggeår
- 2006
- Energimerking
- C - Lysegrønn
- Rom
- 3
- Tomteareal
- 10 063 m² (eiet)
Fasiliteter
Balkong/Terrasse
Garasje/P-plass
Kabel-TV
Heis
Parkett
Turterreng
Sentralt
Bredbåndstilknytning
Visning
mandag, 02. februar
16:00 – 17:00
Våre visninger har påmelding. Dette gjør vi for å kunne yte bedre service for våre kunder. Verdifullt for boligkjøper og for oss. Vi anbefaler at salgsoppgaven lastes ned digitalt før visning, og ring oss gjerne på forhånd for spørsmål om boligen. Passer ikke angitt tidspunkt, ta kontakt så finner vi en løsning. Skulle det mot formodning ikke være påmeldte til angitt visningstidspunkt vil ikke visning bli gjennomført.
Om boligen
EiendomsMegler 1 v/ Jørund Ivar Volden har gleden av å presentere Håkon Magnussons gate 1 B - En svært pen 3-roms selveierleilighet med 3 meter takhøyde og attraktiv beliggenhet på Lade!
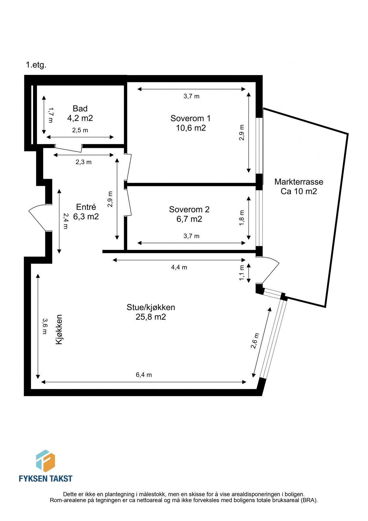
Leiligheten måler 55 kvm (BRA-i) og består av stue/kjøkken, bad, entré og 2 soverom. Utover dette har vil du også ha tilgang til ekstern bod på 5 kvm i felles kjeller. Blant de flere kvalitetene ved leiligheten er takhøyden på ca. 3 meter, oppgradert kjøkken fra 2021 (TG1) og felles parkering for beboere og gjester.
Leiligheten har svært god beliggenhet på Lade, med umiddelbar nærhet til "alt" av servicefasiliteter. Ladestien med Korsvika ligger også få minutter fra leiligheten.
Kort oppsummert:
- Fjernvarme.
- Ekstern bod på 5 kvm.
- Gode kollektivforbindelser.
- Generøs takhøyde på ca. 3 meter.
- Kjøkken oppgradert i 2021 og vurdert til TG1.
- Svært god beliggenhet sentralt på attraktive Lade.
- Felles parkering for beboere og gjester ved bruk av parkeringskort.
Leiligheten måler 55 kvm (BRA-i) og består av stue/kjøkken, bad, entré og 2 soverom. Utover dette har vil du også ha tilgang til ekstern bod på 5 kvm i felles kjeller. Blant de flere kvalitetene ved leiligheten er takhøyden på ca. 3 meter, oppgradert kjøkken fra 2021 (TG1) og felles parkering for beboere og gjester.
Leiligheten har svært god beliggenhet på Lade, med umiddelbar nærhet til "alt" av servicefasiliteter. Ladestien med Korsvika ligger også få minutter fra leiligheten.
Kort oppsummert:
- Fjernvarme.
- Ekstern bod på 5 kvm.
- Gode kollektivforbindelser.
- Generøs takhøyde på ca. 3 meter.
- Kjøkken oppgradert i 2021 og vurdert til TG1.
- Svært god beliggenhet sentralt på attraktive Lade.
- Felles parkering for beboere og gjester ved bruk av parkeringskort.
NB: Knappen for å vise hele beskrivelsen har kun en visuell effekt.
NB: Knappen for å vise hele beskrivelsen har kun en visuell effekt.
Salgsoppgaven beskriver vesentlig og lovpålagt informasjon om eiendommen
Se komplett salgsoppgaveNyttige lenker
Nærområdet
EiendomsMegler 1 Lade og Lilleby
Vi loser deg trygt gjennom hele boligsalget
Annonseinformasjon
| FINN-kode | 447684142 |
|---|---|
| Sist endret | 26. jan. 2026 10:31 |
| Referanse | 36250231 |
Annonsene kan være mangelfulle i forhold til lovpålagt opplysningsplikt. Før bindende avtale inngås oppfordres interessenter til å innhente komplett informasjon fra meglerforetaket, selger eller utleier.
































