Bildegalleri

EiendomsMegler 1 v/Trym Thesen presenterer Brattåsveien 10A! Foto: Eivind Dirdal
Lys og fin leilighet m/ dobbeltgarasje | Romslig innglasset balkong med utsikt mot friområde | Gode solforhold
Prisantydning2 290 000 kr
Nøkkelinfo
- Boligtype
- Leilighet
- Eieform
- Andel
- Soverom
- 1
- Internt bruksareal
- 44 m² (BRA-i)
- Bruksareal
- 89 m²
- Eksternt bruksareal
- 31 m² (BRA-e)
- Innglasset balkong
- 14 m² (BRA-b)
- Etasje
- 2
- Byggeår
- 1970
- Energimerking
- F - Rød
- Rom
- 2
- Tomteareal
- 5 557 m² (eiet)
Fasiliteter
Balkong/Terrasse
Garasje/P-plass
Rolig
Sentralt
Utsikt
Turterreng
Lademulighet
Om boligen
Velkommen til Brattåsveien 10A!
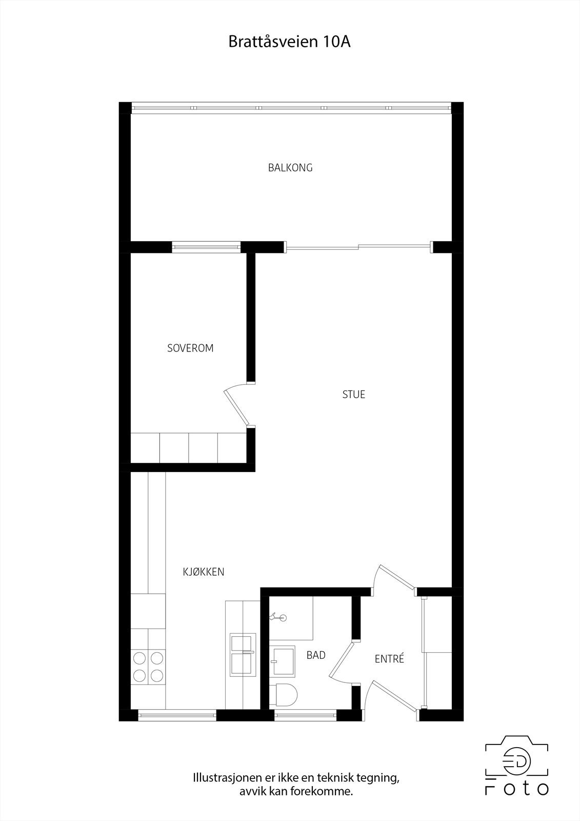
Leiligheten ligger fint til i 2. etasje med fin utsikt mot friområde. Leiligheten har en velholdt standard og en praktisk planløsning.
Når man kommer inn i leiligheten blir man møtt av en lys og fin entré med fliser på gulv med varmekabler. Videre har man en delvis åpen stue-/kjøkkenløsning som gjør det enkelt å møblere. Lyst kjøkken med glatte fronter. Fra stuen har man utgang til romslig innglasset balkong med fin utsikt. Soverom med garderobeplass og utsikt mot friområde. Helfliset bad/vaskerom med varmekabler i gulv. Parkering i stor og god dobbeltgarasje. 2 boder i underetasje.
Blokken ligger i enden av en blindvei i et rolig og etablert nabolag. Her bor man sentralt med kort vei til UIS, nye SUS, kollektive forbindelser og flotte turområde
Leiligheten ligger fint til i 2. etasje med fin utsikt mot friområde. Leiligheten har en velholdt standard og en praktisk planløsning.
Når man kommer inn i leiligheten blir man møtt av en lys og fin entré med fliser på gulv med varmekabler. Videre har man en delvis åpen stue-/kjøkkenløsning som gjør det enkelt å møblere. Lyst kjøkken med glatte fronter. Fra stuen har man utgang til romslig innglasset balkong med fin utsikt. Soverom med garderobeplass og utsikt mot friområde. Helfliset bad/vaskerom med varmekabler i gulv. Parkering i stor og god dobbeltgarasje. 2 boder i underetasje.
Blokken ligger i enden av en blindvei i et rolig og etablert nabolag. Her bor man sentralt med kort vei til UIS, nye SUS, kollektive forbindelser og flotte turområde
NB: Knappen for å vise hele beskrivelsen har kun en visuell effekt.
NB: Knappen for å vise hele beskrivelsen har kun en visuell effekt.
Salgsoppgaven beskriver vesentlig og lovpålagt informasjon om eiendommen
Se komplett salgsoppgaveNyttige lenker
Nærområdet
EiendomsMegler 1 Madla
En del av Sparebank 1 Sør-Norge
Annonseinformasjon
| FINN-kode | 447578423 |
|---|---|
| Sist endret | 23. jan. 2026 16:27 |
| Referanse | 2205250425 |
Annonsene kan være mangelfulle i forhold til lovpålagt opplysningsplikt. Før bindende avtale inngås oppfordres interessenter til å innhente komplett informasjon fra meglerforetaket, selger eller utleier.



























