Bildegalleri

Velkommen til Steingata 102B!
Eiganes
Attraktiv og innholdsrik 3-romsleilighet på Eiganes - Innglasset terrasse, P-plass - sentral og etterspurt beliggenhet!
Prisantydning5 250 000 kr
Nøkkelinfo
- Boligtype
- Leilighet
- Eieform
- Andel
- Soverom
- 2
- Internt bruksareal
- 91 m² (BRA-i)
- Bruksareal
- 107 m²
- Eksternt bruksareal
- 5 m² (BRA-e)
- Innglasset balkong
- 11 m² (BRA-b)
- Balkong/Terrasse
- 9 m² (TBA)
- Etasje
- 1
- Byggeår
- 2008
- Energimerking
- C - Gul
- Rom
- 3
- Tomteareal
- 9 744 m² (eiet)
Fasiliteter
Balkong/Terrasse
Garasje/P-plass
Kabel-TV
Heis
Offentlig vann/kloakk
Turterreng
Vaktmester-/vektertjeneste
Sentralt
Bredbåndstilknytning
Moderne
Rolig
Lademulighet
Balansert ventilasjon
Visning
mandag, 02. februar
16:15 – 17:00
Velkommen til visning!
Alle våre visninger har påmelding. På denne måten sikrer vi at megler har god oversikt og tid til å imøtekomme alle interessenter på beste måte. Dette er veldig verdifullt for boligkjøpere og for oss. Det er enkelt å melde seg på, og du kan like enkelt melde deg av. Kontakt også gjerne megler i forkant av visning dersom du har spørsmål.
Om boligen
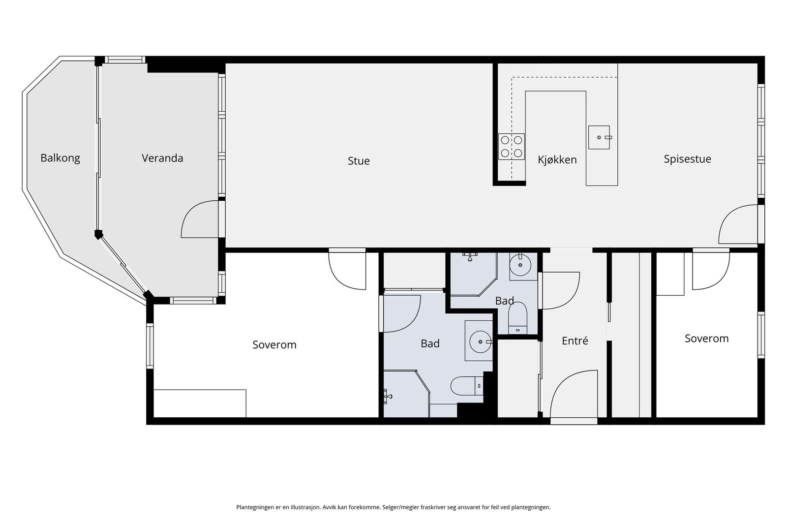
Velkommen til Steingata 102B! En gjennomført og arealeffektiv leilighet med attraktiv beliggenhet like utenfor Stavanger sentrum. Her bor du i et moderne og veldrevet borettslag, med en planløsning som utnytter arealet på en svært god måte. Leiligheten har en gjennomtenkt og funksjonell planløsning med tydelig rominndeling. Den byr på egen spisestue i halvåpen løsning mot kjøkkenet, romslig stue med store vindusflater, to gode soverom, to bad samt en stor innvendig bod.
Den innglassede terrassen fungerer som en naturlig forlengelse av stuen og gir et ekstra oppholdsrom som kan benyttes store deler av året, både til avslapning og sosialt samvær. I tillegg har boligen en utvendig balkong som gir gode muligheter for utemøblering. Vestvendt terrasse sørger for ettermiddagssol, samtidig som det er morgensol ved uteområdet utenfor spisestuen. Borettslaget har pent opparbeidede fellesarealer med grønne lunger og lekeplasser, og boligen disponerer fast parkeringsplass i parkeringsanlegg.
Den innglassede terrassen fungerer som en naturlig forlengelse av stuen og gir et ekstra oppholdsrom som kan benyttes store deler av året, både til avslapning og sosialt samvær. I tillegg har boligen en utvendig balkong som gir gode muligheter for utemøblering. Vestvendt terrasse sørger for ettermiddagssol, samtidig som det er morgensol ved uteområdet utenfor spisestuen. Borettslaget har pent opparbeidede fellesarealer med grønne lunger og lekeplasser, og boligen disponerer fast parkeringsplass i parkeringsanlegg.
NB: Knappen for å vise hele beskrivelsen har kun en visuell effekt.
NB: Knappen for å vise hele beskrivelsen har kun en visuell effekt.
Salgsoppgaven beskriver vesentlig og lovpålagt informasjon om eiendommen
Se komplett salgsoppgaveNyttige lenker
Nærområdet

PrivatMegleren Haferkamp & Partnere
Kun det beste på dine vegne
Annonseinformasjon
| FINN-kode | 447563015 |
|---|---|
| Sist endret | 25. jan. 2026 08:08 |
| Referanse | 301260010 |
Annonsene kan være mangelfulle i forhold til lovpålagt opplysningsplikt. Før bindende avtale inngås oppfordres interessenter til å innhente komplett informasjon fra meglerforetaket, selger eller utleier.













































