Bildegalleri

Velkommen til Henrik Sørensens vei 19, presentert av Dina Hadad ved Eiendomsmegler 1! Foto: Bjørnar Døhlen.
Ellingsrudåsen
Praktisk og romslig 3-roms med stort potensial | Sydvestvendt balkong på 15 m² | Garasje | TV/int. inkl. | IN-ordning
Prisantydning3 190 000 kr
Nøkkelinfo
- Boligtype
- Tomannsbolig
- Eieform
- Andel
- Soverom
- 2
- Internt bruksareal
- 69 m² (BRA-i)
- Bruksareal
- 77 m²
- Eksternt bruksareal
- 8 m² (BRA-e)
- Balkong/Terrasse
- 15 m² (TBA)
- Etasje
- 1
- Byggeår
- 1972
- Energimerking
- D - Rød
- Rom
- 3
- Tomteareal
- 49 711 m² (eiet)
Fasiliteter
Balkong/Terrasse
Barnevennlig
Bredbåndstilknytning
Fellesvaskeri
Garasje/P-plass
Kjæledyr tillatt
Kabel-TV
Offentlig vann/kloakk
Parkett
Rolig
Sentralt
Vaktmester-/vektertjeneste
Turterreng
Lademulighet
Visning
søndag, 01. februar
12:00 – 13:00
Ønsker du å delta på visningen ber vi deg melde deg på slik at vi vet at du kommer. Da kan vi bistå alle best mulig og gi deg tiden du trenger på visningen. Ta gjerne kontakt med megler før visning hvis du har noen spørsmål. Velkommen!
VisningspåmeldingOm boligen
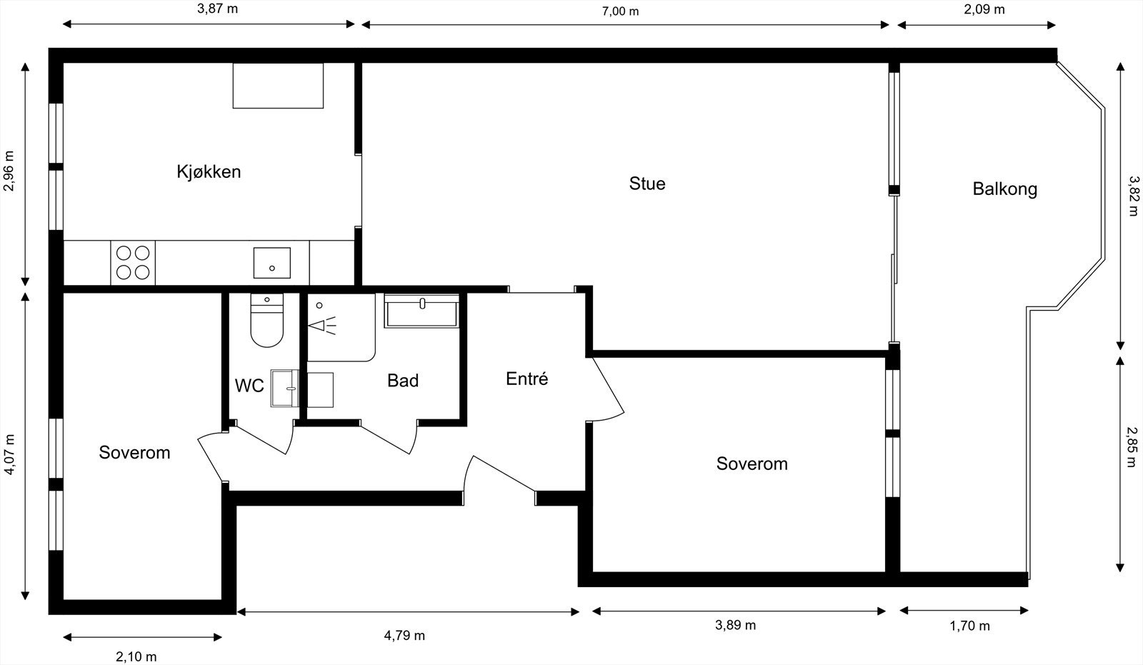
Velkommen til Henrik Sørensens vei 19! En lys og romslig 3-roms med attraktiv beliggenhet i et veletablert og populært boligområde på Ellingsrud/Karihaugen. Leiligheten ligger fint til i byggets 1. etasje og har en romslig planløsning som inneholder entré, kjøkken, stue, 2 soverom, bad og toalettrom. Fra stuen er det utgang til en sydvestvendt balkong på 15 m². Boligen har god beliggenhet i et veletablert, hyggelig og rolig boområde, samt nærhet til fasiliteter, kjøpesentre og friluftsmuligheter i Østmarka.
Kort fortalt:
- Lys og romslig 3-roms
- Stort potensial
- Stor balkong på ca. 15 m²
- TV/internett inkl.
- Medfølgende garasjeplass
- Flislagt bad og separat WC
- Separat kjøkken
- Kjellerbod på 8 m²
- Høy 1. etasje
- Fellesvaskeri
- Tilbaketrukket
- 9 min gange til T-bane
Kort fortalt:
- Lys og romslig 3-roms
- Stort potensial
- Stor balkong på ca. 15 m²
- TV/internett inkl.
- Medfølgende garasjeplass
- Flislagt bad og separat WC
- Separat kjøkken
- Kjellerbod på 8 m²
- Høy 1. etasje
- Fellesvaskeri
- Tilbaketrukket
- 9 min gange til T-bane
NB: Knappen for å vise hele beskrivelsen har kun en visuell effekt.
NB: Knappen for å vise hele beskrivelsen har kun en visuell effekt.
Salgsoppgaven beskriver vesentlig og lovpålagt informasjon om eiendommen
Se komplett salgsoppgaveNyttige lenker
Nærområdet
EiendomsMegler 1 Stovner
Vi loser deg trygt gjennom hele boligsalget
Annonseinformasjon
| FINN-kode | 447560732 |
|---|---|
| Sist endret | 23. jan. 2026 15:46 |
| Referanse | 6041260241 |
Annonsene kan være mangelfulle i forhold til lovpålagt opplysningsplikt. Før bindende avtale inngås oppfordres interessenter til å innhente komplett informasjon fra meglerforetaket, selger eller utleier.






































