Bildegalleri

Eiendomsmegler1 v/ Gro Anita Nøkland presenterer Vestre Ring 30B | Foto: Trond-Eirik Husvæg.
Bryne
Strøken og gjennomtenkt enebolig fra 2022 | Idyllisk og solrik beliggenhet ved Eivindsholtjørn
Prisantydning9 200 000 kr
Nøkkelinfo
- Boligtype
- Enebolig
- Eieform
- Eier (Selveier)
- Soverom
- 4
- Internt bruksareal
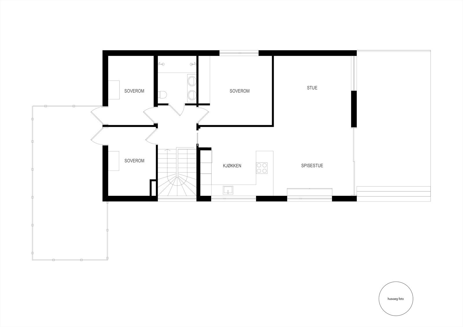
- 221 m² (BRA-i)
- Bruksareal
- 221 m²
- Balkong/Terrasse
- 60 m² (TBA)
- Byggeår
- 2022
- Energimerking
- Rom
- 5
- Tomteareal
- 507 m² (eiet)
Visning
Ønsker du å delta på visningen ber vi deg melde deg på slik at vi vet at du kommer. Da kan vi bistå alle best mulig og gi deg tiden du trenger på visningen. Kontakt gjerne megler før visning hvis du har spørsmål. Visningen avholdes bare dersom det er påmeldte. Hvis det ikke er oppsatt visningstidspunkt eller tidspunkt ikke passer, kontakt megler.
VisningspåmeldingOm boligen
Velkommen til Vestre Ring 30B
Nyere enebolig fra 2022 med en planløsning og tilvalg de fleste bare kan drømme om.
- Sjelden lun og fin beliggenhet like ved Eivindsholtjørn
- Bad med dobbel dusj og dobbel vask i hovedplan
- Bad med badstue første etasje.
- Praktisk med eget vaskerom
- Gjestetoalett
- Hovedinngang, bi-inngang, samt adkomst direkte fra garasje.
- Opparbeidet hage med beplantning - usjenert og flere uteområder
- Optimale solforhold
- Utvendig solskjerming med automatisk styring
- Enkelt vedlikehold med asfaltert gårdsrom, terrasser og steinbelagte uteområder
- Varmepumpe og vedovn
- 4 (5) soverom, alle av god størrelse som enkelt kan brukes som ekstra TV-stue eller egen sone for tenåringen.
- Garasje og parkering i eget gårdsrom. El-bil lader montert.
Nyere enebolig fra 2022 med en planløsning og tilvalg de fleste bare kan drømme om.
- Sjelden lun og fin beliggenhet like ved Eivindsholtjørn
- Bad med dobbel dusj og dobbel vask i hovedplan
- Bad med badstue første etasje.
- Praktisk med eget vaskerom
- Gjestetoalett
- Hovedinngang, bi-inngang, samt adkomst direkte fra garasje.
- Opparbeidet hage med beplantning - usjenert og flere uteområder
- Optimale solforhold
- Utvendig solskjerming med automatisk styring
- Enkelt vedlikehold med asfaltert gårdsrom, terrasser og steinbelagte uteområder
- Varmepumpe og vedovn
- 4 (5) soverom, alle av god størrelse som enkelt kan brukes som ekstra TV-stue eller egen sone for tenåringen.
- Garasje og parkering i eget gårdsrom. El-bil lader montert.
NB: Knappen for å vise hele beskrivelsen har kun en visuell effekt.
NB: Knappen for å vise hele beskrivelsen har kun en visuell effekt.
Salgsoppgaven beskriver vesentlig og lovpålagt informasjon om eiendommen
Se komplett salgsoppgaveNyttige lenker
Nærområdet
EiendomsMegler 1 Jærmegleren
En del av Sparebank 1 Sør-Norge
Annonseinformasjon
| FINN-kode | 447537304 |
|---|---|
| Sist endret | 13. mars 2026 14:13 |
| Referanse | 2403250128 |
Annonsene kan være mangelfulle i forhold til lovpålagt opplysningsplikt. Før bindende avtale inngås oppfordres interessenter til å innhente komplett informasjon fra meglerforetaket, selger eller utleier.


















































