Bildegalleri

Moderne funkisbolig med meget fin beliggende. 6 soverom, 3 stuer og 3 bad. Takterrasse - dobbel garasje. Fotograf Stian Dirdal.
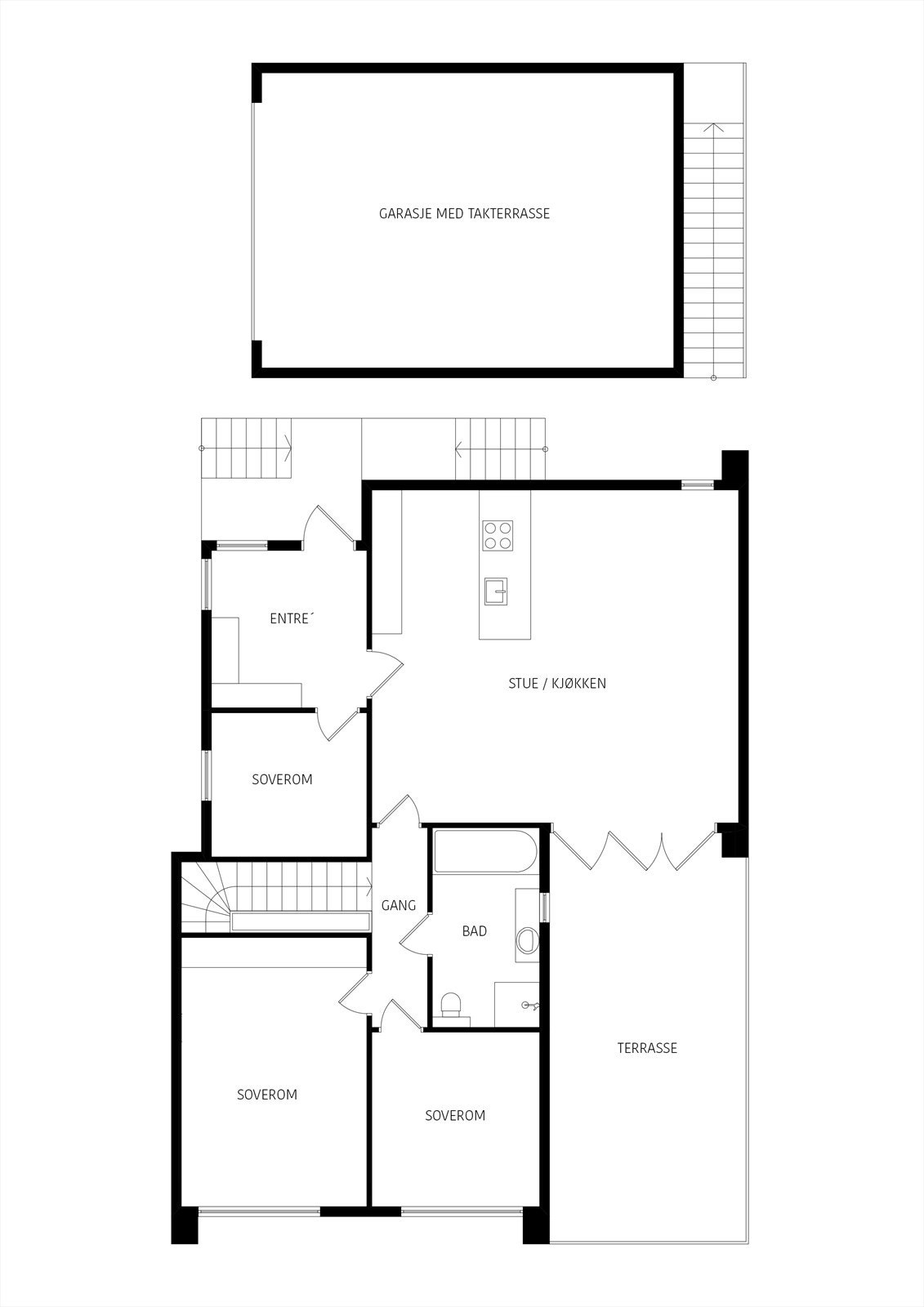
Moderne funkisbolig med meget fin beliggenhet. 6 soverom, 3 stuer og 3 bad. Takterrasse - dobbel garasje.
Prisantydning9 200 000 kr
Nøkkelinfo
- Boligtype
- Enebolig
- Eieform
- Eier (Selveier)
- Soverom
- 6
- Internt bruksareal
- 213 m² (BRA-i)
- Bruksareal
- 263 m²
- Eksternt bruksareal
- 50 m² (BRA-e)
- Balkong/Terrasse
- 84 m² (TBA)
- Etasje
- 2
- Byggeår
- 1966
- Energimerking
- C - Lysegrønn
- Rom
- 9
- Tomteareal
- 733 m² (eiet)
Fasiliteter
Takterrasse
Balkong/Terrasse
Garasje/P-plass
Hage
Kjæledyr tillatt
Kabel-TV
Offentlig vann/kloakk
Parkett
Rolig
Utsikt
Bademulighet
Fiskemulighet
Balansert ventilasjon
Om boligen
Nordsjøvegen 36 er en moderne eiendom som passer for familier som ønsker å bo landlig, men likevel en kort kjøretur fra det man trenger av butikker, skoler, barnehager, til og med flyplassen og Solastranden. Eneboligen er bygget vesentlig om i 2017 og byr på en praktisk planløsning, dobbel garasje med takterrasse.
Tomten er solrik og grenser til landbruksarealer. Den er pent opparbeidet med gårdsrom med grus på fremsiden og hage med terrasse, plen og beplantning på baksiden.
En tiltalende og elegant enebolig som fanger essensen av moderne løsninger og komfort!
Med sin landlige plassering og et velstelt uteområde tilbyr denne eiendommen både stil og funksjonalitet.
Her har man det man trenger for å trives. Velkommen til visning!
Tomten er solrik og grenser til landbruksarealer. Den er pent opparbeidet med gårdsrom med grus på fremsiden og hage med terrasse, plen og beplantning på baksiden.
En tiltalende og elegant enebolig som fanger essensen av moderne løsninger og komfort!
Med sin landlige plassering og et velstelt uteområde tilbyr denne eiendommen både stil og funksjonalitet.
Her har man det man trenger for å trives. Velkommen til visning!
NB: Knappen for å vise hele beskrivelsen har kun en visuell effekt.
NB: Knappen for å vise hele beskrivelsen har kun en visuell effekt.
Salgsoppgaven beskriver vesentlig og lovpålagt informasjon om eiendommen
Se komplett salgsoppgaveNyttige lenker
Nærområdet
EiendomsMegler 1 Randaberg
En del av Sparebank 1 Sør-Norge
Annonseinformasjon
| FINN-kode | 447521346 |
|---|---|
| Sist endret | 23. jan. 2026 13:40 |
| Referanse | 2208250072 |
Annonsene kan være mangelfulle i forhold til lovpålagt opplysningsplikt. Før bindende avtale inngås oppfordres interessenter til å innhente komplett informasjon fra meglerforetaket, selger eller utleier.



































































