Bildegalleri

Velkommen til Saga 2A!

Saga

Praktisk 2-roms selveier med vestvendt balkong og god planløsning | God oppbevaringsplass | Et ypperlig førstegangskjøp!

Prisantydning2 790 000 kr
Totalpris
2 860 840 kr
Omkostninger
70 840 kr
Felleskost/mnd.
2 251 kr
Fellesformue
31 567 kr
Kommunale avg.
19 666 kr per år
Formuesverdi
598 770 kr

Nøkkelinfo

Boligtype
Leilighet
Eieform
Eier (Selveier)
Soverom
1
Internt bruksareal
60 m² (BRA-i)
Bruksareal
66 m²
Eksternt bruksareal
6 m² (BRA-e)
Balkong/Terrasse
6 m² (TBA)
Etasje
2
Byggeår
2010
Energimerking
C - Lysegrønn
Rom
2
Tomteareal
4 325 m² (eiet)

Les mer om bruksareal her

Fasiliteter

Barnevennlig
Balkong/Terrasse
Garasje/P-plass
Offentlig vann/kloakk
Turterreng
Utsikt
Rolig

Visning

torsdag, 29. januar
17:00 – 17:30
Meld deg på visning eller kontakt eiendomsmegler for privatvisning. Visning blir ikke gjennomført uten påmeldte.
Visningspåmelding

Om boligen

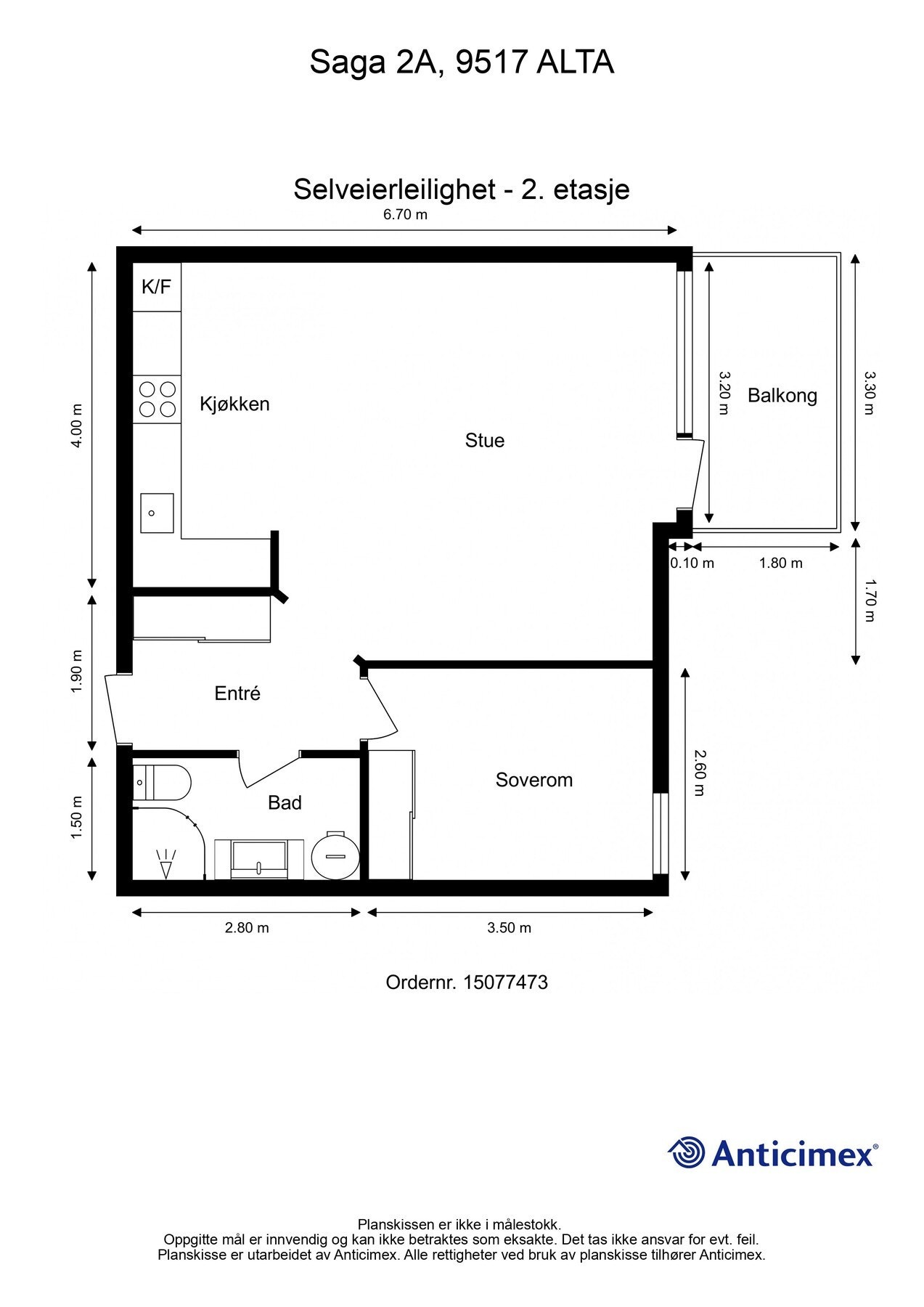
Velkommen til Saga 2A! En lys og arealeffektiv 2-roms selveierleilighet i byggets 2. etasje. Dette er en perfekt leilighet for førstegangskjøperen, med en praktisk planløsning og enkel adkomst via felles trappegang.

Leiligheten inneholder en entré, et soverom og et baderom. Stuen og kjøkkenet er i en åpen løsning som gir en god romfølelse. Fra stuen er det utgang til en vestvendt balkong på ca. 6 m², hvor man kan innrede med en hyggelig sittegruppe. Boligen byr på svært gode lagringsmuligheter med en innvendig bod på loftet på ca. 8 m² og en ekstern bod på ca. 6 m². Det disponeres parkeringsmuligheter på sameiets felles tomt.

Beliggenheten er rolig og tilbaketrukket, med kort vei til flotte turområder, samtidig som servicetilbud er lett tilgjengelig.

Velkommen på visning!

Salgsoppgaven beskriver vesentlig og lovpålagt informasjon om eiendommen

Se komplett salgsoppgave

Nærområdet

Annonseinformasjon

FINN-kode447479026
Sist endret22. jan. 2026 21:59
Referanse89250247

Rapporter annonse

Annonsene kan være mangelfulle i forhold til lovpålagt opplysningsplikt. Før bindende avtale inngås oppfordres interessenter til å innhente komplett informasjon fra meglerforetaket, selger eller utleier.