Bildegalleri

Velkommen til Teglverksveien 15B - presentert av DNB eiendom Fredrikstad v/Lene Marie Bjerkeli!
Trosvik
Innbydende og lekker 3-roms andelsleilighet - Garasjeplass m/ el-billader - Østvendt balkong - Sentral beliggenhet!
Prisantydning2 800 000 kr
Nøkkelinfo
- Boligtype
- Leilighet
- Eieform
- Andel
- Soverom
- 2
- Internt bruksareal
- 63 m² (BRA-i)
- Bruksareal
- 67 m²
- Eksternt bruksareal
- 4 m² (BRA-e)
- Balkong/Terrasse
- 6 m² (TBA)
- Etasje
- 2
- Byggeår
- 1982
- Energimerking
- E - Gul
- Rom
- 3
- Tomteareal
- 1 087 m² (eiet)
Fasiliteter
Balkong/Terrasse
Barnevennlig
Bredbåndstilknytning
Garasje/P-plass
Kabel-TV
Rolig
Sentralt
Lademulighet
Visning
Velkommen til visning! Meld deg på ved å trykke "visningspåmelding" i våre boligannonser. Visning med megler til stede vil ikke bli avholdt uten påmeldinger. Ta gjerne kontakt med megler i forkant av visningen om du har spørsmål.
VisningspåmeldingOm boligen
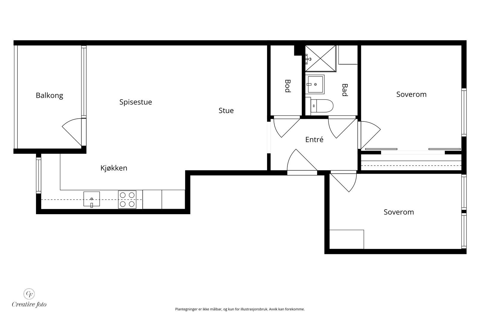
Velkommen til Teglverksveien 15B!
En gjennomgående lys og fin leilighet i et attraktivt og barnevennlig område på Trosvik Torg, med kort vei til flotte turområder, parker og alle fasiliteter du trenger i hverdagen. Her bor du sentralt med gangavstand til dagligvare, apotek, offentlig kommunikasjon, skoler og barnehager. Området er perfekt for deg som ønsker en kombinasjon av rolig bomiljø og nærhet til sentrum.
Leiligheten ligger i byggets 2. etasje, og holder en gjennomgående standard. Leiligheten byr på bl.a. store vinduer, åpen stue-/kjøkkenløsning med klassisk og romslig kjøkken, flislagt baderom, innvendig bod, to soverom og en overbygd østvendt balkong.
Velkommen til visning!
En gjennomgående lys og fin leilighet i et attraktivt og barnevennlig område på Trosvik Torg, med kort vei til flotte turområder, parker og alle fasiliteter du trenger i hverdagen. Her bor du sentralt med gangavstand til dagligvare, apotek, offentlig kommunikasjon, skoler og barnehager. Området er perfekt for deg som ønsker en kombinasjon av rolig bomiljø og nærhet til sentrum.
Leiligheten ligger i byggets 2. etasje, og holder en gjennomgående standard. Leiligheten byr på bl.a. store vinduer, åpen stue-/kjøkkenløsning med klassisk og romslig kjøkken, flislagt baderom, innvendig bod, to soverom og en overbygd østvendt balkong.
Velkommen til visning!
NB: Knappen for å vise hele beskrivelsen har kun en visuell effekt.
NB: Knappen for å vise hele beskrivelsen har kun en visuell effekt.
Salgsoppgaven beskriver vesentlig og lovpålagt informasjon om eiendommen
Se komplett salgsoppgaveNyttige lenker
Nærområdet
DNB Eiendom AS
Fra hjem til hjem
Annonseinformasjon
| FINN-kode | 447437412 |
|---|---|
| Sist endret | 23. jan. 2026 17:11 |
| Referanse | 203260004 |
Annonsene kan være mangelfulle i forhold til lovpålagt opplysningsplikt. Før bindende avtale inngås oppfordres interessenter til å innhente komplett informasjon fra meglerforetaket, selger eller utleier.



















