Bildegalleri

Velkommen til Tunnelveien 16!
Sørumlia
Lettstelt & pen 3-roms leilighet | Gasspeis | Garasjeplass | Gangavstand til togstasjon | Stor, solrik terrasse
Prisantydning5 900 000 kr
Nøkkelinfo
- Boligtype
- Leilighet
- Eieform
- Eier (Selveier)
- Soverom
- 2
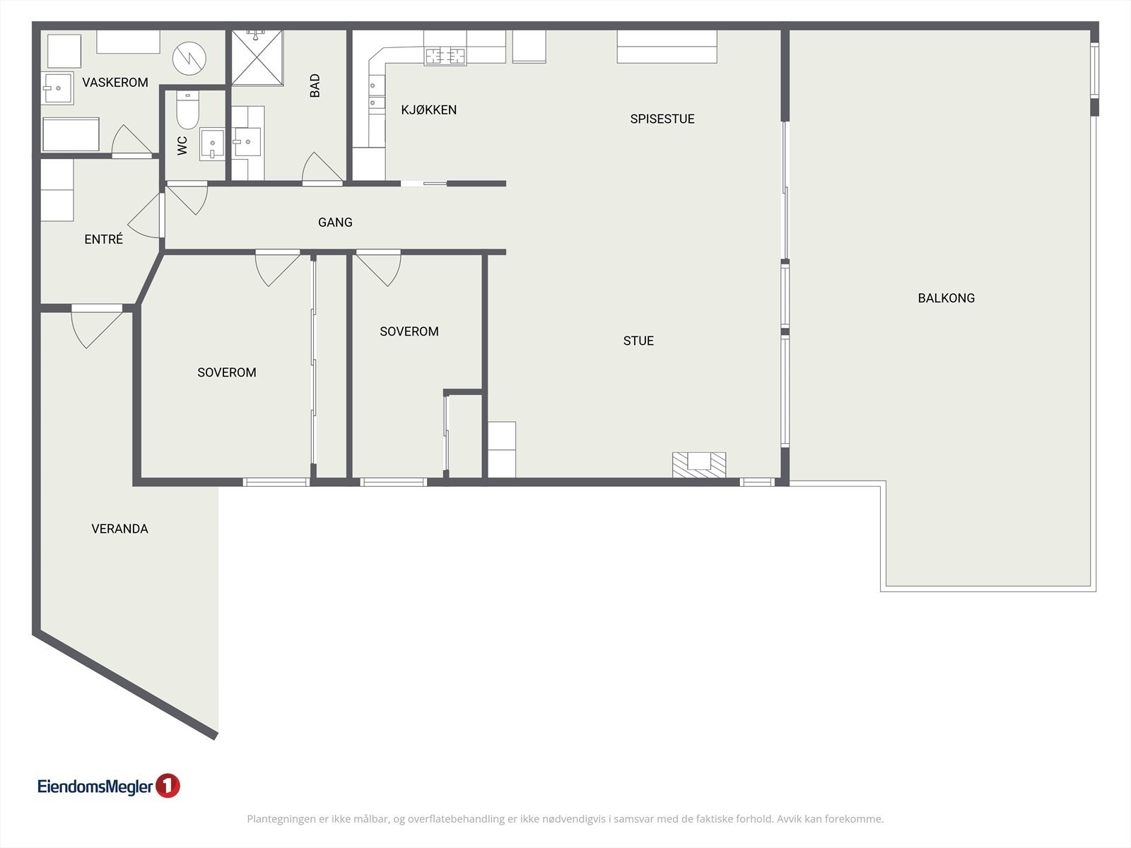
- Internt bruksareal
- 102 m² (BRA-i)
- Bruksareal
- 123 m²
- Eksternt bruksareal
- 21 m² (BRA-e)
- Balkong/Terrasse
- 50 m² (TBA)
- Etasje
- 1
- Byggeår
- 2004
- Energimerking
- Tomteareal
- 1 220 m² (eiet)
Fasiliteter
Balkong/Terrasse
Barnevennlig
Garasje/P-plass
Kjæledyr tillatt
Offentlig vann/kloakk
Parkett
Peis/Ildsted
Rolig
Sentralt
Utsikt
Turterreng
Visning
Ønsker du å delta på visningen ber vi deg melde deg på slik at vi vet at du kommer. Visningen avholdes bare dersom det er påmeldte senest 8 timer før visning. Ta gjerne kontakt med megler før visning hvis du har noen spørsmål. Velkommen!
VisningspåmeldingOm boligen
Velkommen til Tunnelveien 16 - En flott og lettstelt leilighet i høy 1. etasje med egen garasjeplass!
Dette er en bolig som kombinerer roen fra et etablert og trygt nabolag med umiddelbar nærhet til naturen. Her bor du med kort gangavstand til Lier stasjon, som tar deg til Oslo på bare 30 minutter. Enkel reisevei til nye Drammen sykehus. Videre er det kort vei til påkjøring E18 retning Asker/Oslo.
Høydepunkter:
- Romslig terrasse på ca. 50 m² med fine solforhold
- Garasjeplass på 21 m² med elektrisk portåpner
- Effektiv planløsning med åpen stue- og kjøkkenløsning
- Stemningsfull gasspeis i stuen
- Separat vaskerom, bad og toalettrom
- Kun 5 min gange til Lier stasjon med korrespondanse til Drammen og Oslo
- Flotte turområder i Kjekstadmarka
Velkommen til visning!
Dette er en bolig som kombinerer roen fra et etablert og trygt nabolag med umiddelbar nærhet til naturen. Her bor du med kort gangavstand til Lier stasjon, som tar deg til Oslo på bare 30 minutter. Enkel reisevei til nye Drammen sykehus. Videre er det kort vei til påkjøring E18 retning Asker/Oslo.
Høydepunkter:
- Romslig terrasse på ca. 50 m² med fine solforhold
- Garasjeplass på 21 m² med elektrisk portåpner
- Effektiv planløsning med åpen stue- og kjøkkenløsning
- Stemningsfull gasspeis i stuen
- Separat vaskerom, bad og toalettrom
- Kun 5 min gange til Lier stasjon med korrespondanse til Drammen og Oslo
- Flotte turområder i Kjekstadmarka
Velkommen til visning!
NB: Knappen for å vise hele beskrivelsen har kun en visuell effekt.
NB: Knappen for å vise hele beskrivelsen har kun en visuell effekt.
Salgsoppgaven beskriver vesentlig og lovpålagt informasjon om eiendommen
Se komplett salgsoppgaveNyttige lenker
Nærområdet
EiendomsMegler 1 Østlandet avd. Lier
Vi loser deg trygt gjennom hele boligsalget
Annonseinformasjon
| FINN-kode | 447424530 |
|---|---|
| Sist endret | 06. mars 2026 10:46 |
| Referanse | 6026260003 |
Annonsene kan være mangelfulle i forhold til lovpålagt opplysningsplikt. Før bindende avtale inngås oppfordres interessenter til å innhente komplett informasjon fra meglerforetaket, selger eller utleier.































