Bildegalleri

Velkommen til Grimerudvegen 24A, presentert av Henrik Busterud Foto: Pil Branding (Kim Rognmo).
OTTESTAD/STANGE VESTBYGD
Enebolig med stort potensial - god planløsning og generøs tomt. Et perfekt utgangspunkt for å skape ditt drømmehjem!
Prisantydning2 490 000 kr
Nøkkelinfo
- Boligtype
- Enebolig
- Eieform
- Eier (Selveier)
- Soverom
- 2
- Internt bruksareal
- 107 m² (BRA-i)
- Bruksareal
- 143 m²
- Eksternt bruksareal
- 36 m² (BRA-e)
- Balkong/Terrasse
- 46 m² (TBA)
- Byggeår
- 1920
- Energimerking
- G - Oransje
- Tomteareal
- 1 017 m² (eiet)
Fasiliteter
Barnevennlig
Balkong/Terrasse
Offentlig vann/kloakk
Peis/Ildsted
Turterreng
Om boligen
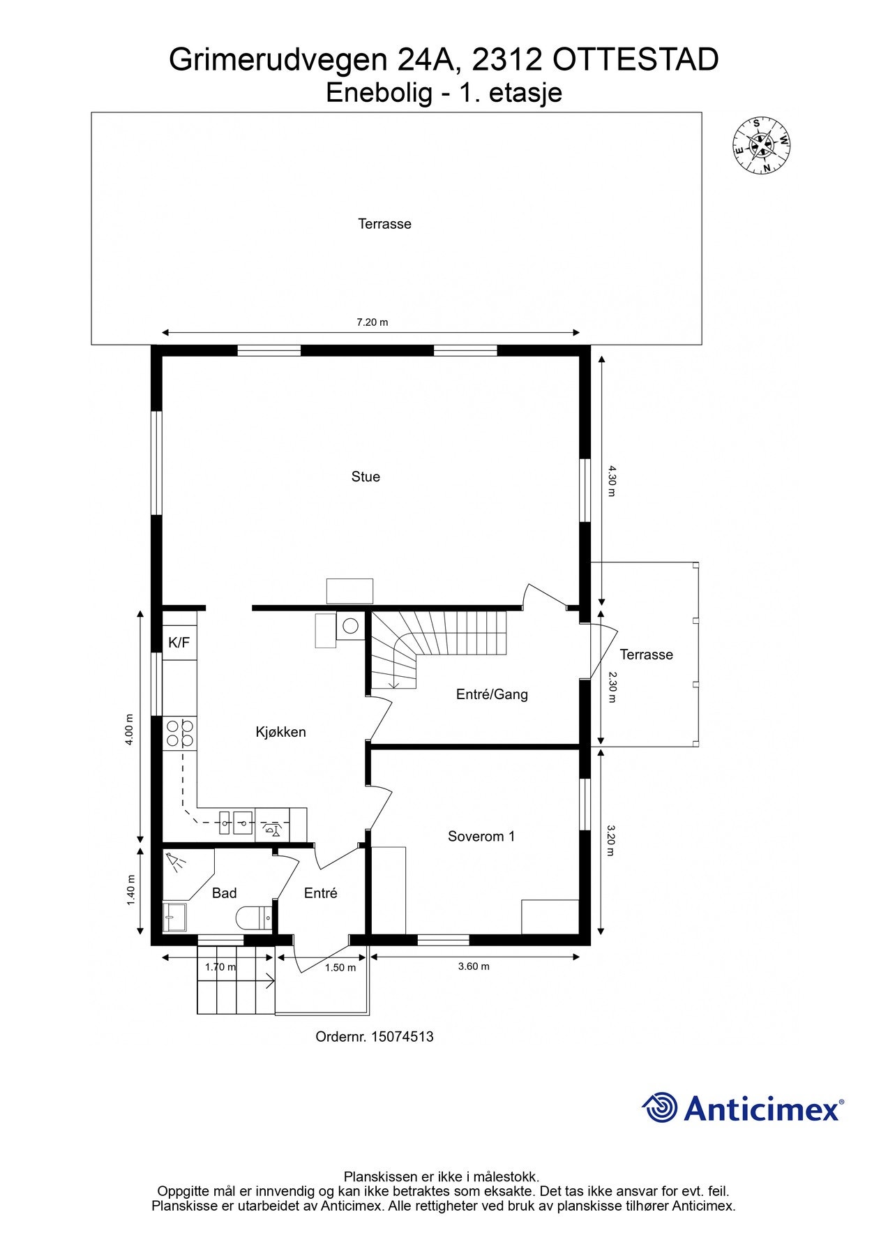
EIE har gleden av å presentere denne eneboligen i Grimerudvegen 24A!
Boligen ligger i et veletablert og rolig boligområdet i nærheten av Ottestad stasjon i Stange Vestbygd. Det er kort vei til barnehage, skole, idrettsanlegg og butikker. Det er ca. 8 km til Hamar sentrum med alle fasiliteter og servicetilbud. Boligen har eldre standard og trenger oppussing, men fremstår som et spennende prosjekt med stort potensial. Planløsningen går over tre etasjer og gir gode muligheter for tilpasning. I 1. etasje ligger kjøkken, romslig stue med plass til både spisestue og sofagruppe, bad og et praktisk soverom. I 2. etasje finner du en trivelig loftstue og et soverom egnet som barnerom, gjesterom eller arbeidsrom. Kjelleren rommer vaskerom samt to råkjellerrom med rikelig lagringsplass. På eiendommen står også et frittstående uthus som gir ekstra oppbevaring eller hobbyplass. Den store tomten gir gode muligheter for hage, lek og uteområder.
Velkommen til en hyggelig visning!
Boligen ligger i et veletablert og rolig boligområdet i nærheten av Ottestad stasjon i Stange Vestbygd. Det er kort vei til barnehage, skole, idrettsanlegg og butikker. Det er ca. 8 km til Hamar sentrum med alle fasiliteter og servicetilbud. Boligen har eldre standard og trenger oppussing, men fremstår som et spennende prosjekt med stort potensial. Planløsningen går over tre etasjer og gir gode muligheter for tilpasning. I 1. etasje ligger kjøkken, romslig stue med plass til både spisestue og sofagruppe, bad og et praktisk soverom. I 2. etasje finner du en trivelig loftstue og et soverom egnet som barnerom, gjesterom eller arbeidsrom. Kjelleren rommer vaskerom samt to råkjellerrom med rikelig lagringsplass. På eiendommen står også et frittstående uthus som gir ekstra oppbevaring eller hobbyplass. Den store tomten gir gode muligheter for hage, lek og uteområder.
Velkommen til en hyggelig visning!
NB: Knappen for å vise hele beskrivelsen har kun en visuell effekt.
NB: Knappen for å vise hele beskrivelsen har kun en visuell effekt.
Salgsoppgaven beskriver vesentlig og lovpålagt informasjon om eiendommen
Se komplett salgsoppgaveNyttige lenker
Nærområdet
EIE eiendomsmegling Innlandet
Annonseinformasjon
| FINN-kode | 447399801 |
|---|---|
| Sist endret | 06. mars 2026 05:00 |
| Referanse | 72250277 |
Annonsene kan være mangelfulle i forhold til lovpålagt opplysningsplikt. Før bindende avtale inngås oppfordres interessenter til å innhente komplett informasjon fra meglerforetaket, selger eller utleier.



































