Bildegalleri

Aktiv Eiendomsmegling v/ Gunnar A. Kjønnøy presenterer Hauggata 24! Foto: André Tomas Ormset-Paredes.
Pent oppusset 3-roms leilighet i 2.etasje med egen parkeringsplass og fin havneutsikt! Yttertak renovert 2023
Prisantydning2 350 000 kr
Nøkkelinfo
- Boligtype
- Leilighet
- Eieform
- Eier (Selveier)
- Soverom
- 2
- Internt bruksareal
- 71 m² (BRA-i)
- Bruksareal
- 79 m²
- Eksternt bruksareal
- 8 m² (BRA-e)
- Balkong/Terrasse
- 17 m² (TBA)
- Etasje
- 2
- Byggeår
- 1956
- Energimerking
- E - Oransje
- Rom
- 3
- Tomteareal
- 291 m² (eiet)
Fasiliteter
Balkong/Terrasse
Garasje/P-plass
Kjæledyr tillatt
Peis/Ildsted
Sentralt
Utsikt
Om boligen
Aktiv Eiendomsmegling v/ Gunnar A. Kjønnøy presenterer Hauggata 24!
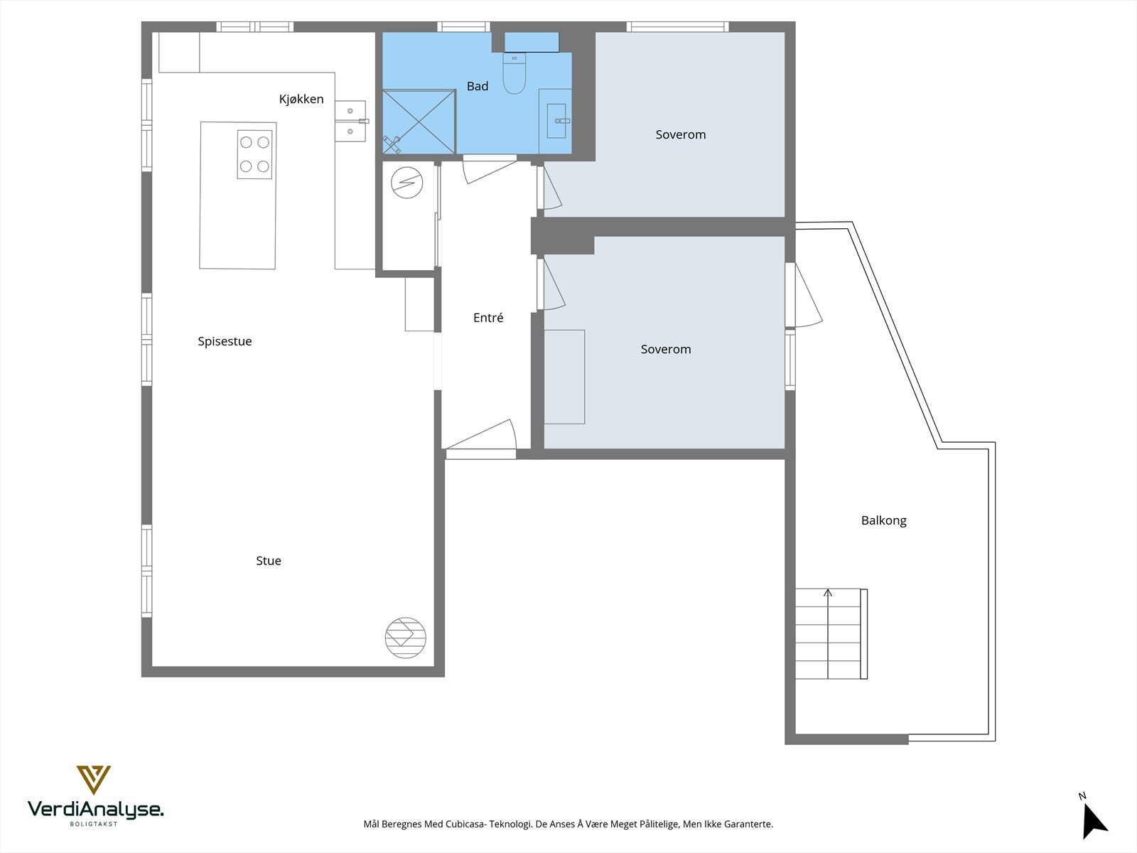
Pent oppusset 3-roms selveierleilighet i 2.etasje. Leiligheten ble oppgradert i 2020 med bl.a. nytt kjøkken, gipsvegger på de fleste rom, nytt gulv, downlights og maling av overflater. Sameiet er også skiftet undertak, retekket yttertak (med samme stein), skiftet takrenner og pipebeslag, samt pusset utvendige vegger. Fremstår i dag som en moderne leilighet man flytter rett inn i! Inneholder entré/gang, åpen stue-kjøkken løsning, bad/vaskerom og 2 soverom. Fra ett av soverommene har man utgang til balkong med flott utsikt over havna. Egen biloppstillingsplass! I tillegg medfølger én bod i kjeller. Her kan man bo pent med alt av servicetilbud sentrum har å by på i gåavstand.
Velkommen til visning!
Pent oppusset 3-roms selveierleilighet i 2.etasje. Leiligheten ble oppgradert i 2020 med bl.a. nytt kjøkken, gipsvegger på de fleste rom, nytt gulv, downlights og maling av overflater. Sameiet er også skiftet undertak, retekket yttertak (med samme stein), skiftet takrenner og pipebeslag, samt pusset utvendige vegger. Fremstår i dag som en moderne leilighet man flytter rett inn i! Inneholder entré/gang, åpen stue-kjøkken løsning, bad/vaskerom og 2 soverom. Fra ett av soverommene har man utgang til balkong med flott utsikt over havna. Egen biloppstillingsplass! I tillegg medfølger én bod i kjeller. Her kan man bo pent med alt av servicetilbud sentrum har å by på i gåavstand.
Velkommen til visning!
NB: Knappen for å vise hele beskrivelsen har kun en visuell effekt.
NB: Knappen for å vise hele beskrivelsen har kun en visuell effekt.
Salgsoppgaven beskriver vesentlig og lovpålagt informasjon om eiendommen
Se komplett salgsoppgaveNærområdet
Aktiv Kristiansund
Annonseinformasjon
| FINN-kode | 447396743 |
|---|---|
| Sist endret | 27. jan. 2026 09:58 |
| Referanse | 1601250153 |
Annonsene kan være mangelfulle i forhold til lovpålagt opplysningsplikt. Før bindende avtale inngås oppfordres interessenter til å innhente komplett informasjon fra meglerforetaket, selger eller utleier.




























