Bildegalleri

Velkommen til Tidemands gate 31 - Her har vi gleden av å presentere en attraktiv leilighet med svært populært og etterspurt beliggenhet.
Frogner
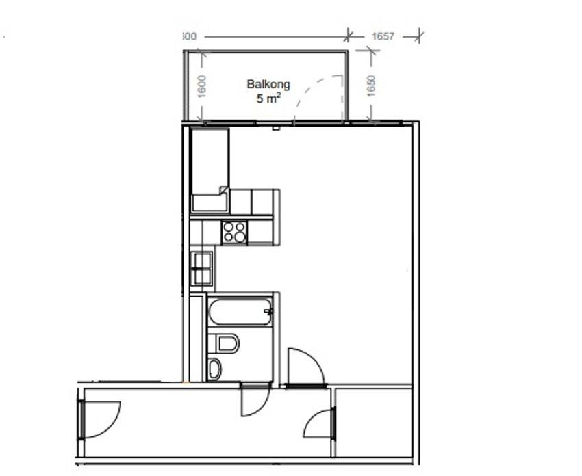
Attraktiv leilighet vendt mot bakgård | Heis | P-plass kan kjøpes | Borettslaget søker om balkong
Prisantydning4 690 000 kr
Nøkkelinfo
- Boligtype
- Leilighet
- Eieform
- Andel
- Internt bruksareal
- 44 m² (BRA-i)
- Bruksareal
- 44 m²
- Etasje
- 3
- Byggeår
- 1974
- Energimerking
- G - Rød
- Rom
- 1
- Tomteareal
- 838 m² (eiet)
Fasiliteter
Barnevennlig
Garasje/P-plass
Heis
Rolig
Sentralt
Turterreng
Visning
Alle våre visninger har påmelding. På denne måten sikrer vi at megler har god oversikt og tid til å imøtekomme alle interessenter på beste måte. Dette er veldig verdifullt for boligkjøpere og for oss. Det er enkelt å melde seg på, og du kan like enkelt melde deg av.
Kontakt også gjerne megler i forkant av visning dersom du har spørsmål.
VisningspåmeldingOm boligen
Velkommen til Tidemands gate 31 - Her har vi gleden av å presentere en attraktiv leilighet med svært populært og etterspurt beliggenhet, rett ved Vestkanttorget, med kort vei til trikk, hyggelige kafeer, butikker og flere grønne parker, alt innen kort gåavstand.
Kvaliteter:
- Attraktiv leilighet med heisadkomst
- Borettslaget søker om balkong mot bakgård
- Sovenisje i lukket rom med vindu og plass til dobbeltseng
- Mulighet for kjøp av bruksrett til garasjeplass for kr. 800 000,-
- Disponibel bod
- Kort avstand til Frognerparken med Frognerbadet og tennisbaner, Majorstuen, Briskeby og Frogner
Velkommen til visning!
NB: Knappen for å vise hele beskrivelsen har kun en visuell effekt.
NB: Knappen for å vise hele beskrivelsen har kun en visuell effekt.
Salgsoppgaven beskriver vesentlig og lovpålagt informasjon om eiendommen
Se komplett salgsoppgaveNyttige lenker
Nærområdet

PrivatMegleren Dyve & Partnere
Kun det beste på dine vegne
Annonseinformasjon
| FINN-kode | 447366377 |
|---|---|
| Sist endret | 30. jan. 2026 03:12 |
| Referanse | 159250817 |
Annonsene kan være mangelfulle i forhold til lovpålagt opplysningsplikt. Før bindende avtale inngås oppfordres interessenter til å innhente komplett informasjon fra meglerforetaket, selger eller utleier.





















