Bildegalleri

Velkommen til O. Schøyens veg - et påkostet rekkehus med alt på stell !
Tråstad
Påkostet og innholdsrikt rekkehus med gjennomgående god standard !
Prisantydning2 400 000 kr
Nøkkelinfo
- Boligtype
- Leilighet
- Eieform
- Andel
- Soverom
- 3
- Internt bruksareal
- 95 m² (BRA-i)
- Bruksareal
- 133 m²
- Eksternt bruksareal
- 38 m² (BRA-e)
- Balkong/Terrasse
- 50 m² (TBA)
- Etasje
- 2
- Byggeår
- 1964
- Energimerking
- Rom
- 4
- Tomteareal
- 10 147 m²
Fasiliteter
Balkong/Terrasse
Barnevennlig
Garasje/P-plass
Kjæledyr tillatt
Sentralt
Turterreng
Visning
torsdag, 19. mars
18:00 – 19:00
Alle våre visninger har påmelding. På denne måten sikrer vi at megler har god oversikt og tid til å imøtekomme alle interessenter på beste måte. Skulle ingen være påmeldt til klokken 12:00 visningsdagen, vil visningen ikke bli gjennomført. Passer ikke annonsert tidspunkt, ta kontakt så finner vi en løsning.
VisningspåmeldingOm boligen
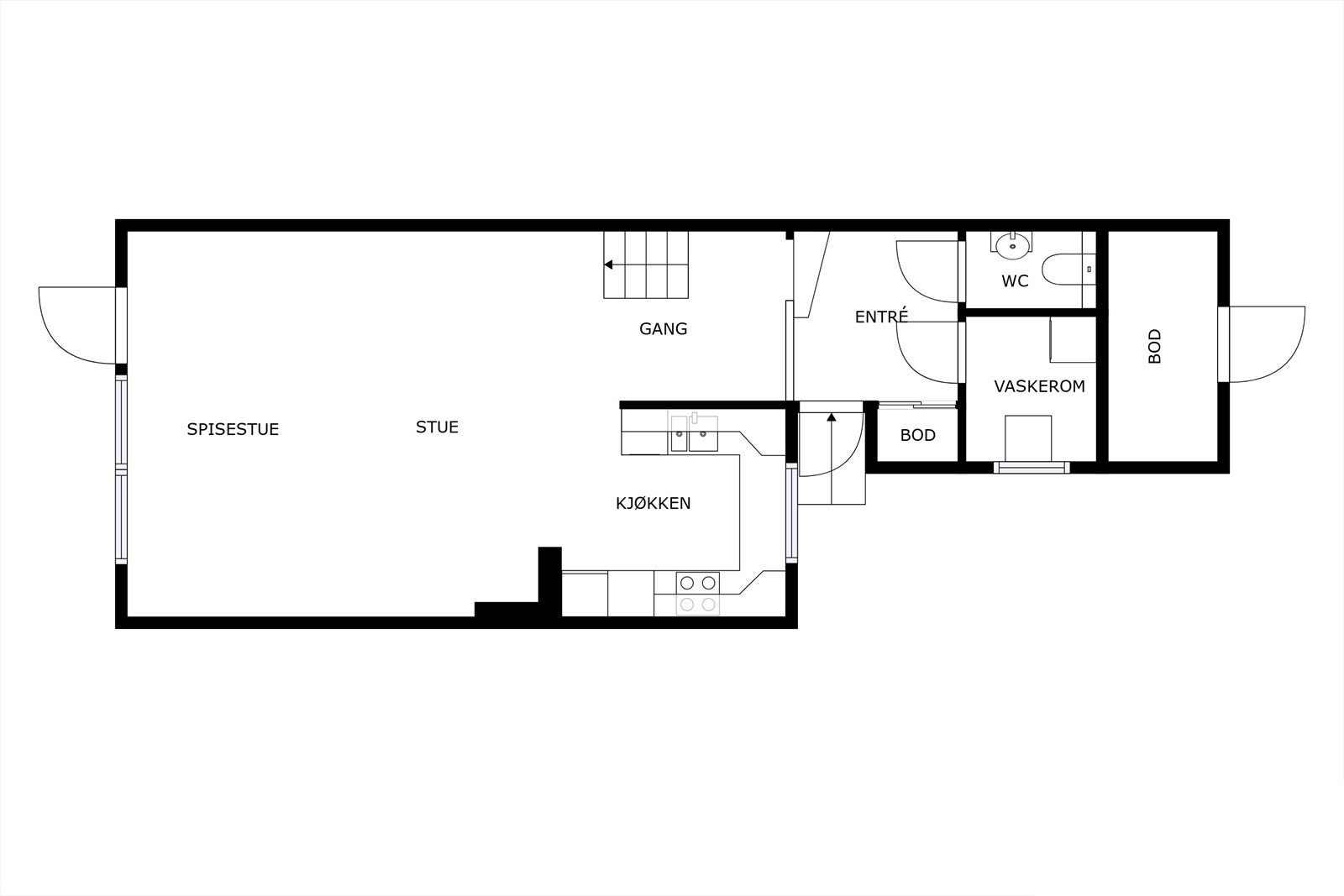
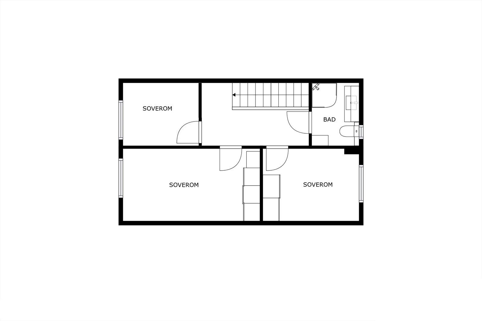
Innbydende og innflyttingsklart rekkehus på Tråstad klappet og klart for deg! Her er alt pusset opp og modernisert etter 2018 og leiligheten fremstår fresh og velholdt fra a-å. Gangavstand til sentrum av byen, flotte turområder, idrettsanlegg, KUSK, NTG, Science Park og alt av bymessige fasiliteter. Smart planløsning med wc og vaskerom tilknyttet gangen. Ellers luftig og åpen løsning nede med innbydende stue og klassisk pent kjøkken + utgang stor solrik terrasse. Oppe: 3 soverom, gang og lekkert flislagt bad. 2 tilhørende garasjer, den ene tilrettelagt for elbil-lader. Sportsbod rett utenfor døra.
Meld deg på en hyggelig visning - vi gleder oss til å se deg!
Bo bra i borettslag tilknyttet KOBBL!
- 3 soverom
- 2 wc
- Sentrumsnært
- Ledig omgående
- 2 garasjeplasser
Meld deg på en hyggelig visning - vi gleder oss til å se deg!
Bo bra i borettslag tilknyttet KOBBL!
- 3 soverom
- 2 wc
- Sentrumsnært
- Ledig omgående
- 2 garasjeplasser
NB: Knappen for å vise hele beskrivelsen har kun en visuell effekt.
NB: Knappen for å vise hele beskrivelsen har kun en visuell effekt.
Salgsoppgaven beskriver vesentlig og lovpålagt informasjon om eiendommen
Se komplett salgsoppgaveNyttige lenker
Nærområdet
KOBBL Eiendom
Annonseinformasjon
| FINN-kode | 447356470 |
|---|---|
| Sist endret | 05. mars 2026 11:21 |
| Referanse | GAR29.25114 |
Annonsene kan være mangelfulle i forhold til lovpålagt opplysningsplikt. Før bindende avtale inngås oppfordres interessenter til å innhente komplett informasjon fra meglerforetaket, selger eller utleier.







































