Bildegalleri

Sandvika
Velholdt enebolig med svært attraktiv beliggenhet i Sandvika - Pent opparbeidet tomt - Dobbelgarasje med bod.
Prisantydning5 500 000 kr
Nøkkelinfo
- Boligtype
- Enebolig
- Eieform
- Eier (Selveier)
- Soverom
- 3
- Internt bruksareal
- 204 m² (BRA-i)
- Bruksareal
- 251 m²
- Eksternt bruksareal
- 47 m² (BRA-e)
- Balkong/Terrasse
- 43 m² (TBA)
- Byggeår
- 1971
- Energimerking
- E - Gul
- Rom
- 5
- Tomteareal
- 917 m² (eiet)
Fasiliteter
Barnevennlig
Bredbåndstilknytning
Garasje/P-plass
Hage
Kjæledyr tillatt
Kabel-TV
Offentlig vann/kloakk
Parkett
Peis/Ildsted
Rolig
Sentralt
Turterreng
Lademulighet
Visning
For å delta på visning, ber vi om at du melder deg på. Da sikrer vi at du får nødvendig informasjon og at det er satt av tilstrekkelig med tid. Husk å lese salgsoppgaven før visningen, så du stiller forberedt.
Ønsker du kun å bli holdt orientert, kan du fra eiendommens hjemmeside få varsel om solgtpris, eller kontakte megler.
VisningspåmeldingOm boligen
Velkommen til Buevegen 6!
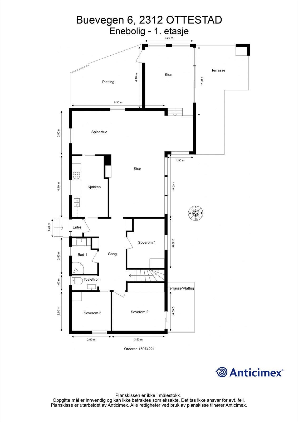
Flott eiendom beliggende i Sandvika i Ottestad. Her får du en velholdt og innholdsrik enebolig med praktisk og god planløsning. Hovedplanet inneholder 3 soverom, bad, toalettrom, stue/spisestue, TV-stue og et moderne kjøkken.
Fra TV-stuen er det utgang til overbygget uteplass med peis, og videre ut til den meget pent opparbeidede hagen. Underetasje innredet med kjellerstue, soverom, bad og vaskerom - se pkt. om ferdigattest i salgsoppgaven.
Eiendommen har dobbelgarasje med lademulighet og god lagringsplass. Svært barnevennlig område og det er kort avstand til kollektivtransport, skole og barnehage.
Flott eiendom beliggende i Sandvika i Ottestad. Her får du en velholdt og innholdsrik enebolig med praktisk og god planløsning. Hovedplanet inneholder 3 soverom, bad, toalettrom, stue/spisestue, TV-stue og et moderne kjøkken.
Fra TV-stuen er det utgang til overbygget uteplass med peis, og videre ut til den meget pent opparbeidede hagen. Underetasje innredet med kjellerstue, soverom, bad og vaskerom - se pkt. om ferdigattest i salgsoppgaven.
Eiendommen har dobbelgarasje med lademulighet og god lagringsplass. Svært barnevennlig område og det er kort avstand til kollektivtransport, skole og barnehage.
- Flott familiebolig med attraktiv beliggenhet
- Usjenert og flott opparbeidet tomt
- Taktekking fra 2021
- Dobbelgarasje med to boder - en er isolert
NB: Knappen for å vise hele beskrivelsen har kun en visuell effekt.
NB: Knappen for å vise hele beskrivelsen har kun en visuell effekt.
Salgsoppgaven beskriver vesentlig og lovpålagt informasjon om eiendommen
Se komplett salgsoppgaveNyttige lenker
Nærområdet
Krogsveen Hamar
Verdien av en god megler.
Annonseinformasjon
| FINN-kode | 447290339 |
|---|---|
| Sist endret | 22. jan. 2026 07:39 |
| Referanse | KR65.25248 |
Annonsene kan være mangelfulle i forhold til lovpålagt opplysningsplikt. Før bindende avtale inngås oppfordres interessenter til å innhente komplett informasjon fra meglerforetaket, selger eller utleier.






































